Spacious family living with large private grounds and strong commuter links.
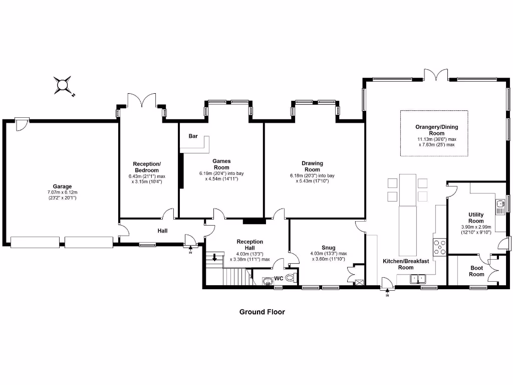
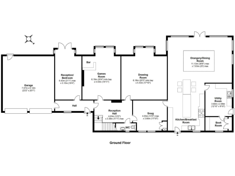
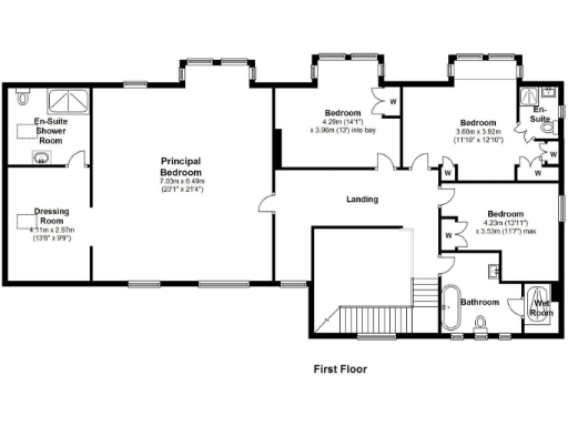
- Over 4,500 sq ft living space across about 1.2 acres of grounds
- Four bedrooms, two en-suites, principal suite with dressing room
- Showpiece kitchen-orangery with granite worktops and underfloor heating
- Insulated, powered double garage with internal access and electric gates
- Large private gardens, terraces and woodland glade; significant maintenance required
- EPC rating C; useful modern systems but not top energy band
- Council Tax Band G — relatively high ongoing cost
- Full fibre broadband and excellent mobile signal; very low local crime
Waverley is a substantial, newly renovated detached house set within approximately 1.2 acres of landscaped grounds on a quiet tree-lined road in Stocksfield. The property offers over 4,500 sq ft of flexible living space arranged across impressive reception rooms, a showpiece kitchen-orangery with underfloor heating, and four well-proportioned bedrooms including two en-suites. High-spec fixtures, full fibre broadband and sensory outdoor lighting add contemporary comfort to a countryside setting.
The house is arranged for family life and entertaining: an open-plan kitchen with granite worktops and integrated appliances flows to a glazed orangery and raised deck, while separate drawing and games rooms — both with multi-fuel stoves — provide distinct living zones. The principal and guest suites each include fitted wardrobes and en-suite facilities; a main bathroom features a freestanding bath and steam shower. Practical features include an insulated, powered double garage with internal access, utility and boot rooms, and extensive storage.
Externally the plot is a major asset. Remote electric gates lead to a broad driveway and the grounds wrap the house with mature lawns, terraces and a secluded woodland glade crisscrossed by paths. The scale and privacy of the gardens suit families who value outdoor space but will require ongoing maintenance given the plot size. The location benefits from very low local crime, excellent commuter links by road and rail, good local primary schools, and nearby amenities in Corbridge and Hexham.
Buyers should note material practicalities: the property is council tax Band G (relatively costly) and has an EPC rating of C. The sale is freehold and the house is being sold subject to any existing wayleaves, easements or rights of way. Overall, Waverley offers sizeable, well-finished accommodation and a rare large plot close to commuter links — ideal for families seeking generous indoor and outdoor living in a prosperous countryside setting.
 5 bedroom detached house for sale in Painshawfield House, 43 Painshawfield Road, Stocksfield, Northumberland, NE43 — £925,000 • 5 bed • 2 bath • 3731 ft²
 5 bedroom detached house for sale in Painshawfield House, 43 Painshawfield Road, Stocksfield, Northumberland, NE43 — £925,000 • 5 bed • 2 bath • 3731 ft² 4 bedroom detached house for sale in Silvascape, Stocksfield, Northumberland, NE43 — £1,300,000 • 4 bed • 3 bath • 2889 ft²
 4 bedroom detached house for sale in Silvascape, Stocksfield, Northumberland, NE43 — £1,300,000 • 4 bed • 3 bath • 2889 ft² 4 bedroom detached house for sale in Garden Cottage, Holeyn Hall Road, Wylam, Northumberland, NE41 — £1,200,000 • 4 bed • 2 bath • 3199 ft²
 4 bedroom detached house for sale in Garden Cottage, Holeyn Hall Road, Wylam, Northumberland, NE41 — £1,200,000 • 4 bed • 2 bath • 3199 ft² 4 bedroom detached house for sale in New Ridley Road, Stocksfield, Northumberland, ., NE43 — £650,000 • 4 bed • 2 bath • 1798 ft²
 4 bedroom detached house for sale in New Ridley Road, Stocksfield, Northumberland, ., NE43 — £650,000 • 4 bed • 2 bath • 1798 ft² 5 bedroom detached house for sale in Firsbrook, Wark, Hexham, Northumberland, NE48 — £550,000 • 5 bed • 3 bath • 2425 ft²
 5 bedroom detached house for sale in Firsbrook, Wark, Hexham, Northumberland, NE48 — £550,000 • 5 bed • 3 bath • 2425 ft² 2 bedroom terraced house for sale in Dale View Terrace, Stocksfield, NE43 7EB, NE43 — £180,000 • 2 bed • 1 bath • 881 ft²
 2 bedroom terraced house for sale in Dale View Terrace, Stocksfield, NE43 7EB, NE43 — £180,000 • 2 bed • 1 bath • 881 ft²






















































