Bright one-bedroom flat with private garden — well-connected, compact and low-maintenance.
Ground-floor one-bedroom with private garden and patio
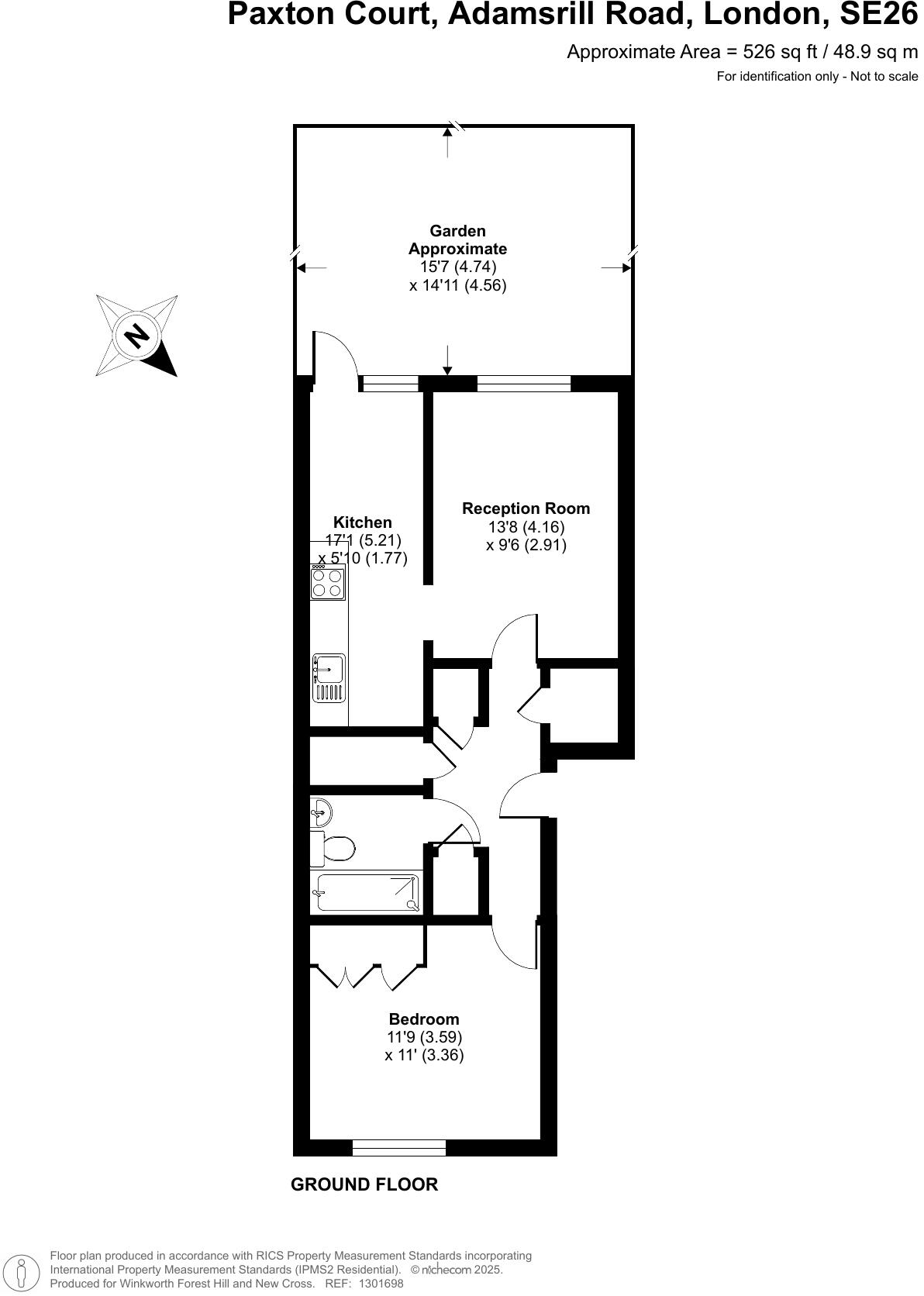
A compact ground-floor one-bedroom apartment with a private garden, offered at Guide Price £280,000–£300,000. The flat makes efficient use of about 526 sq ft with a separate kitchen, a bright reception room and a small private garden — a rare outdoor asset for a ground-floor apartment in this area. Large windows bring natural light into the main living space and the contemporary finishes give an immediate move-in feel.
This leasehold home has 88 years remaining and typical running costs for the block: service charge around £1,200pa and ground rent £10pa. The building dates from the late 1960s/early 1970s and while double glazing is installed, some elements may be original or ageing — buyers should allow for routine maintenance and possible future upgrades.
Location is a clear strength: convenient for Lower Sydenham (approx 0.5 miles) with Overground and National Rail connections at Forest Hill and Sydenham within about 0.9 miles. Local shops, cafes and parks including Horniman Gardens and Mayow Park are within easy reach, supporting a practical, well-connected lifestyle for commuters or first-time buyers.
Practical considerations: broadband speeds in the area are reported slow and local crime levels are high; both factors are important for safety and day-to-day living. This property will suit a buyer seeking a well-located, low-maintenance urban home or an investor looking for an entry-level London flat with private outdoor space. Survey and lease checks recommended before offer.
1 bedroom maisonette for sale in Chelsfield Gardens, London, SE26 — £400,000 • 1 bed • 1 bath • 685 ft²
1 bedroom flat for sale in Wood Vale, Forest Hill, London, SE23 — £415,000 • 1 bed • 1 bath • 633 ft²
2 bedroom flat for sale in Kirkdale, Sydenham, London, SE26 — £375,000 • 2 bed • 1 bath • 678 ft²
2 bedroom flat for sale in Kilmorie Road, Forest Hill, London, SE23 — £400,000 • 2 bed • 1 bath • 667 ft²
2 bedroom apartment for sale in Kangley Bridge Road, Sydenham, London, SE26 — £300,000 • 2 bed • 1 bath • 458 ft²
1 bedroom flat for sale in Mill Gardens, Sydenham, London, SE26 — £230,000 • 1 bed • 1 bath • 509 ft²


















































