RM12 4HS - 2 bed culdesac two bed in Mansard Close, RM12 4HS

View on Property Piper

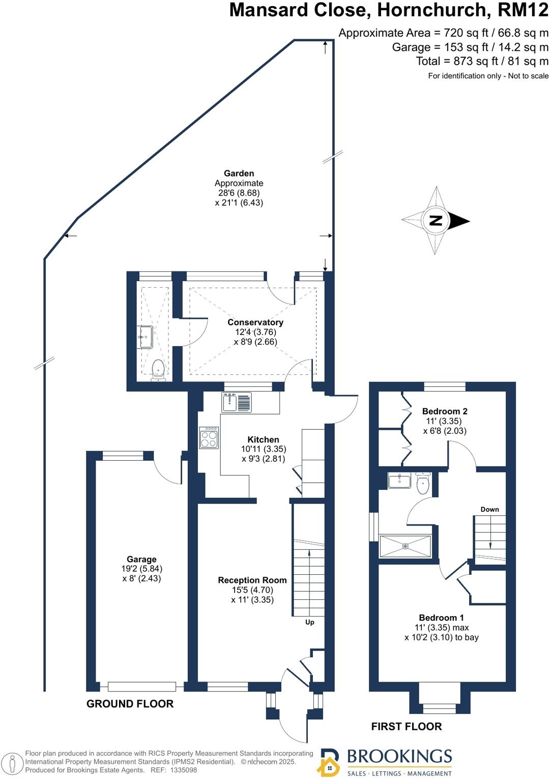
2 bedroom semi-detached house for sale in Mansard Close, Hornchurch, RM12

Summary - 30 MANSARD CLOSE HORNCHURCH RM12 4HS

2 bed 1 bath Semi-Detached

Well-located two-bed semi with garage, conservatory and parking — ideal first-time buy..
Two bedrooms with a modern shower room
Attached garage plus driveway parking for two cars
Conservatory opening directly onto a rear garden
Modern kitchen with integrated appliances and glossy cabinetry
Freehold, built circa 1996–2002; double glazed throughout
Approximately 720 sq ft; overall size described as average
Small plot and modest footprint limit rear garden space
Single bathroom only; suitable for small households or couples
Set at the end of a quiet cul-de-sac in Hornchurch, this two-bedroom semi-detached house offers an accessible first home with practical outdoor space and parking. The bright conservatory opens onto a modest rear garden, extending living space and creating an easy flow for entertaining or relaxed evenings.

Inside, a modern kitchen and recently fitted shower room keep day-to-day living straightforward, while double glazing and gas central heating provide efficiency and comfort. The attached garage and driveway for two cars add genuine convenience in a busy suburban setting.

The property is freehold, built around 1996–2002, and sits within a very affluent, low-crime neighbourhood with excellent mobile and broadband performance — helpful for home working. Good local schools, frequent buses and nearby amenities make this a practical choice for first-time buyers or small families.

Buyers should note the home is an average overall size (approximately 720 sq ft) on a small plot with a single bathroom. While well-presented in key areas, the modest footprint and limited outdoor space may suit those prioritising location and convenience over long-term expansion.

Property Details

Image Descriptions

Floorplan Description

Rooms

Textual Property Features

Target Audience

AI Tags

Detected Visual Features

EPC Details

Nearby Schools

Nearest Bars And Restaurants

,,,,}

Nearest General Shops

,,}

Nearest Grocery shops

,,}

Nearest Supermarkets

,,}

Nearest Religious buildings

,,}

Nearest Medical buildings

,,,}

Nearest Airports

,}

Nearest Leisure Facilities

,,,,}

Nearest Tourist attractions

,,}

Nearest Train stations

,,,,}

Nearest Bus stations and stops

,,,,}

Nearest Hotels

,,}

Tags

Local Market Stats

AirBnB Data

Similar Properties

Meta

High Res Images

Compatible Images

Low res Images

Thumbnails

Raw Images

High Res Floorplan Images

Compatible Floorplan Images

Low res Floorplan Images

FloorplanImages Thumbnail

Raw Floorplan Images