Spacious family townhouse with south garden, two en‑suites and garage in sought-after Flitch Green..
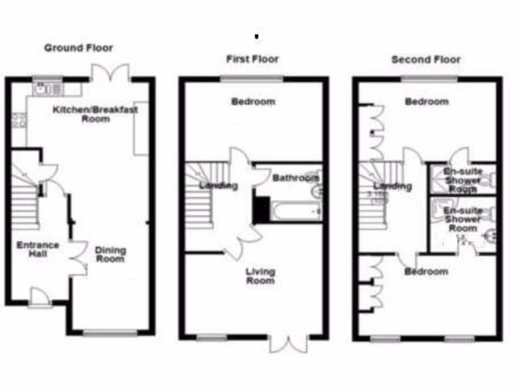
Three double bedrooms with two en-suites and family bathroom
Large open-plan kitchen/dining/family room with granite worktops
South-facing enclosed rear garden with patio, lawn and decking
Spacious first-floor living room with Juliet balcony
Driveway for two vehicles plus single garage en-bloc
Freehold tenure; fast broadband and low flood risk
Three-storey layout may not suit limited mobility buyers
Council tax band above average for the area
Bright, well-proportioned three-bedroom end terrace townhouse arranged over three floors in Flitch Green, Little Dunmow. The home centres on an open-plan kitchen/dining/family space with granite worktops and French doors onto an established south-facing garden — a practical layout for everyday family life and entertaining. Two double bedrooms have en-suites; a spacious first-floor living room with Juliet balcony provides flexible living space.
Practical features include driveway parking for two, a single garage en-bloc, and built-in wardrobes in the principal and second bedrooms. The property is freehold, sits in a quiet small-town setting with good local schools nearby, and benefits from fast broadband and low flood risk. The plot is compact and easily maintained, suiting busy families.
Buyers should note the house is a three-storey layout, which may be less suitable for those with limited mobility. Council tax is above average for the area, and the garage is en-bloc rather than integral. Overall, this is a well-presented modern townhouse offering roomy accommodation and outdoor space in a desirable, affluent neighbourhood.
4 bedroom town house for sale in Worrin Road, Flitch Green, Dunmow, Essex, CM6 — £400,000 • 4 bed • 3 bath • 1546 ft²
4 bedroom semi-detached house for sale in Tomlinson Road, Flitch Green, CM6 — £390,000 • 4 bed • 3 bath • 1260 ft²
3 bedroom terraced house for sale in Tanton Road, Flitch Green, Dunmow, CM6 — £425,000 • 3 bed • 2 bath • 835 ft²
3 bedroom semi-detached house for sale in Cromwell Road, Flitch Green, Dunmow, Essex, CM6 — £325,000 • 3 bed • 2 bath • 1061 ft²
3 bedroom end of terrace house for sale in Ranulf Road, Flitch Green, Dunmow, CM6 — £350,000 • 3 bed • 2 bath • 691 ft²
2 bedroom end of terrace house for sale in Flitch Lane, Dunmow, CM6 — £350,000 • 2 bed • 1 bath • 670 ft²














































































