Ready-for-conversion investment in Lewisham with planning permission and outdoor space.
Ground-floor commercial unit — over 1,000 sq ft (1034 sqft)
Planning approved to create one-bedroom + studio (DC/24/135178)
New build, newly renovated and energy-efficient specification
Private outside space and included garage
Leasehold with c.998 years remaining
Average service charge c.£1,500 per year
Medium flood risk — budget for mitigation and insurance
Requires conversion fit-out to complete residential change
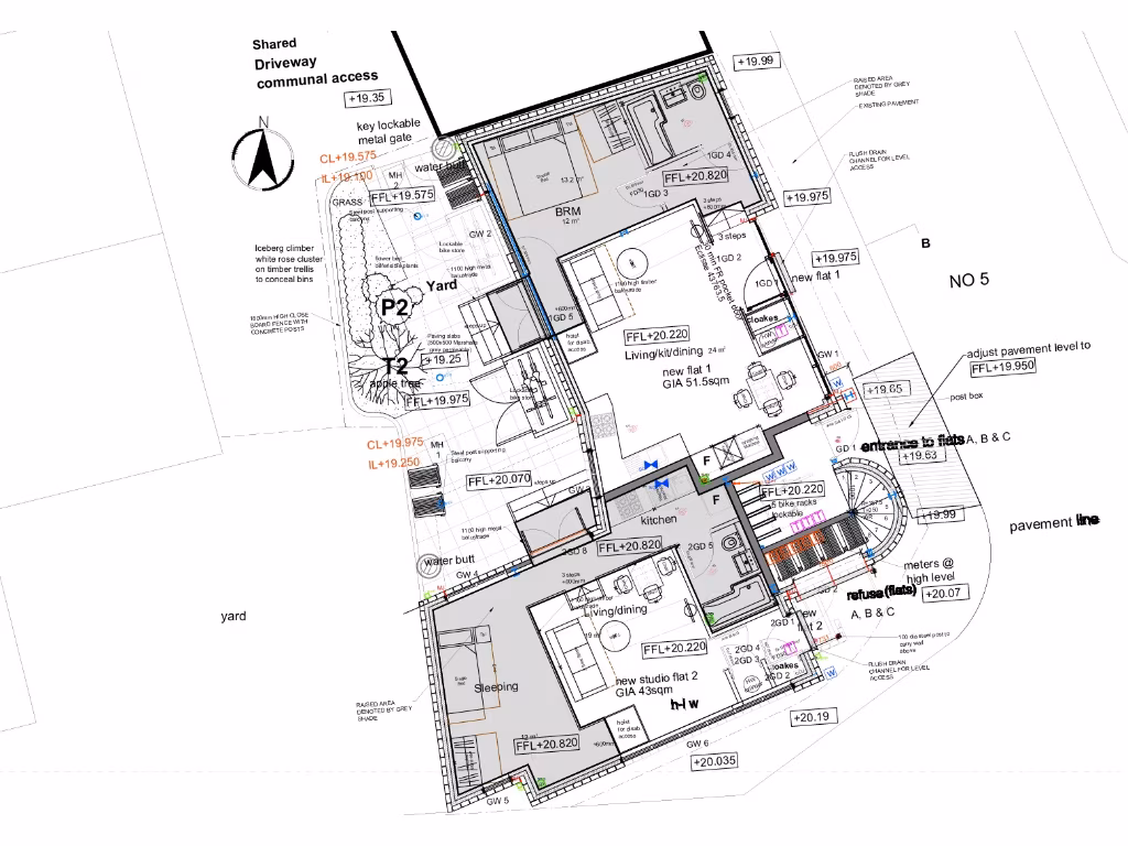
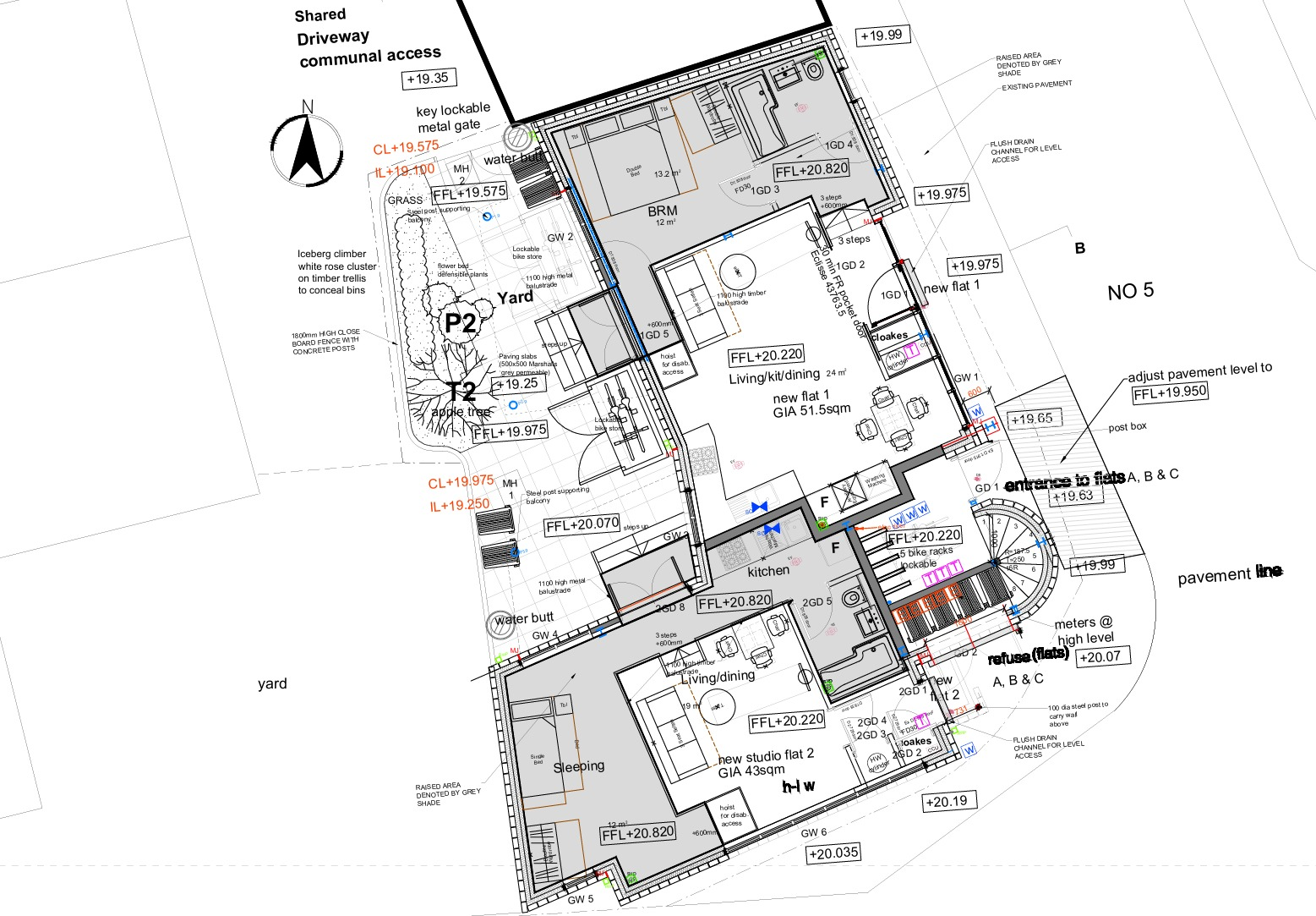
This ground-floor commercial unit at Mercy Terrace offers a rare, ready-to-convert asset in a busy Lewisham neighbourhood. At just over 1,000 sq ft the open-plan layout and new-build specification provide a solid starting point for a range of uses or a straight conversion to residential units under the approved planning (DC/24/135178).
Planning permission is already granted to create two flats (one-bedroom and studio), making this an attractive project for buy-to-let investors or developers seeking quick delivery. The property is newly renovated and energy efficient, so conversion works can focus on internal subdivision and fit-out rather than major remedial building work.
Notable practical points are straightforward: the unit is leasehold (approximately 998 years remaining) with an average service charge of £1,500, and there is a medium flood risk to consider when budgeting insurance and ground-floor protections. The space includes private outside space and a garage, and benefits from strong local transport links and a lively parade of amenities promising tenant demand once converted.
This is a pragmatic investment proposition: low-crime, established tech-worker catchment, fast broadband and excellent mobile signal support modern renting profiles. Buyers should allow budget for the conversion fit-out and standard ground-floor flood mitigation measures, but the existing planning approval significantly reduces upfront planning risk.
3 bedroom apartment for sale in Mercy Terrace, London, SE13 — £475,000 • 3 bed • 2 bath • 715 ft²
2 bedroom apartment for sale in Mercy Terrace, London, Se13, SE13 — £375,000 • 2 bed • 2 bath • 569 ft²
Commercial property for sale in Deptford High Street, London, SE8 — £300,000 • 1 bed • 1 bath • 1400 ft²
Commercial property for sale in Deptford High Street, London, SE8 — £550,000 • 1 bed • 1 bath • 2361 ft²
Commercial property for sale in Deptford High Street, London, SE8 — £300,000 • 1 bed • 1 bath • 600 ft²
3 bedroom terraced house for sale in Lewisham Way, London, SE14 — £900,000 • 3 bed • 3 bath • 2071 ft²


















































