WV11 1RZ - 3 bedroom end of terrace house for sale in Victoria Road, W…

View on Property Piper

3 bedroom end of terrace house for sale in Victoria Road, Wednesfield, Wolverhampton, West Midlands, WV11

Summary - 31 Victoria Road WV11 1RU WV11 1RZ

3 bed 1 bath End of Terrace

Chain-free three-bedroom home near New Cross Hospital, ideal for first-time buyers or investors.
Walking distance to New Cross Hospital and local amenities
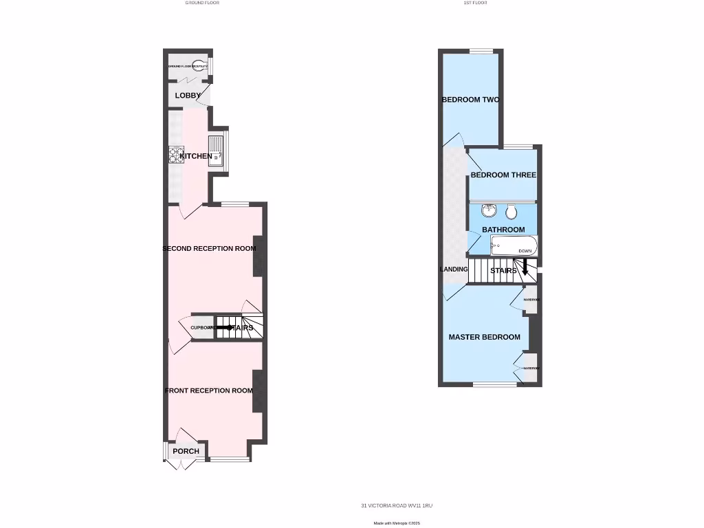
This end-of-terrace three-bedroom home sits within easy walking distance of New Cross Hospital and local amenities, making it ideal for first-time buyers or investors seeking good rental potential. The house offers two reception rooms, a modern kitchen, ground-floor WC/utility and a family bathroom on the first floor. Two double bedrooms plus a single nursery/study provide flexible living space.

Externally there is a small enclosed front patio and a larger rear garden with patio and lawn — a useful outdoor area for children or future improvement. Practical comforts include gas central heating, double glazing and very cheap council tax. Mobile coverage and full-fibre broadband are available, supporting modern working-from-home needs.

Important: a structural survey completed in November 2024 recorded known movement. Prospective buyers should seek full technical advice and factor potential remedial costs into any offer. The property is sold freehold and chain free, which can speed completion for a buyer prepared to act.

Overall this property presents a straightforward purchase for someone wanting a ready-to-live home with scope to add value. It suits buyers wanting proximity to healthcare employment hubs, landlords targeting stable rental demand, or a first home with room to adapt and modernise.

Property Details

Brochure Descriptions

Image Descriptions

Floorplan Description

Rooms

Textual Property Features

Target Audience

AI Tags

Detected Visual Features

EPC Details

Nearby Schools

Nearest Bars And Restaurants

,,,,}

Nearest General Shops

,,}

Nearest Grocery shops

,,}

Nearest Supermarkets

,,}

Nearest Religious buildings

,,}

Nearest Medical buildings

,,,}

Nearest Airports

}

Nearest Leisure Facilities

,,,,}

Nearest Tourist attractions

,,}

Nearest Train stations

,,,,}

Nearest Bus stations and stops

,,,,}

Nearest Hotels

,,}

Tags

Local Market Stats

Similar Properties

Meta

High Res Images

Compatible Images

Low res Images

Thumbnails

Raw Images

High Res Floorplan Images

Compatible Floorplan Images

Low res Floorplan Images

FloorplanImages Thumbnail

Raw Floorplan Images