**Standout Features:**
- Contemporary 2-bedroom apartment
- Prime city-center location
- Spacious open-plan living and modern kitchen
- Private balcony with stunning views
- Off-street parking and gym access
- Excellent potential for rental income
**Potential Downsides:**
- High crime rate in the area
- Leasehold tenure
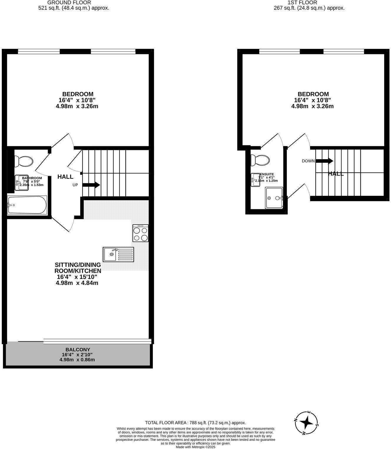
Discover urban living at its finest in this contemporary two-bedroom apartment located in the heart of a multicultural student neighborhood. Priced at £200,000, this modern home boasts a stylish open-plan kitchen and living area, perfect for entertaining or casual living. Floor-to-ceiling windows in both bedrooms flood the space with natural light and provide fantastic city views, while a private balcony offers a serene outdoor escape.
Set in a desirable locale, you're just steps away from essential amenities including restaurants, shops, and excellent transport links. The property's rental potential is undeniable, ideal for investors looking to capitalize on strong demand in the area. Although the neighborhood reports a high crime rate, the apartment’s luxury features and prime location make it an exceptional find. Don’t wait—schedule your viewing today and envision your future in this standout property!
2 bedroom flat for sale in Mann Island, Liverpool, L3 — £200,000 • 2 bed • 2 bath • 646 ft²
2 bedroom apartment for sale in Duke Street, Liverpool, L1 — £400,000 • 2 bed • 2 bath • 1454 ft²
1 bedroom apartment for sale in The Strand, Liverpool, Merseyside, L2 — £120,000 • 1 bed • 1 bath • 664 ft²
2 bedroom apartment for sale in Old Hall Street, Liverpool, Merseyside, L3 — £190,000 • 2 bed • 2 bath • 753 ft²
2 bedroom apartment for sale in Crump Street, Liverpool, Merseyside, L1 — £260,000 • 2 bed • 2 bath • 725 ft²
2 bedroom apartment for sale in Kenyons Steps, Liverpool, Merseyside, L1 3BH, L1 — £240,000 • 2 bed • 2 bath • 624 ft²






























































