Large garden, open field views and good broadband for countryside living.
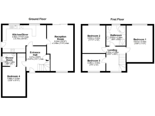
Four double bedrooms and two bathrooms, practical family layout
Set between Alford and the Lincolnshire coast, this freehold four-bedroom detached house sits on a large plot with long rear and front views over paddocks and open fields. The accommodation is practical: a large reception room with sliding doors to the garden, a generous kitchen/diner, a family bathroom plus an en-suite shower to the ground-floor bedroom. Off-street parking for multiple vehicles and a substantial lawned garden with patio, summer house and workshop add usable outdoor space for families and hobby gardeners.
The house benefits from double glazing and solid brick walls with internal insulation; broadband is reported fast and crime levels are low. Heating is provided by a boiler and radiators using bottled LPG (the original particulars also referenced oil-fired heating), so buyers should check the current fuel arrangement and servicing. The layout is comfortable as-is, but the property also offers clear scope for updating and cosmetic modernisation to increase value.
This location suits buyers seeking a rural lifestyle—close to both coast and countryside, with good primary and secondary schooling in nearby Alford and Mablethorpe. Note this is a remoter hamlet setting in an area with relative deprivation scores; services and amenities are limited, and mobile signal is average. Prospective purchasers should arrange a survey to confirm mechanical, structural and service details before exchange.
4 bedroom detached house for sale in Bridgeways, Alford, LN13 — £330,000 • 4 bed • 4 bath • 1330 ft²
4 bedroom detached house for sale in Rawnsley Close, Alford, LN13 — £289,995 • 4 bed • 2 bath • 1318 ft²
4 bedroom detached house for sale in South Street, Alford, LN13 — £425,000 • 4 bed • 2 bath • 1932 ft²
4 bedroom detached house for sale in East Street, Alford, LN13 — £480,000 • 4 bed • 2 bath • 2655 ft²
5 bedroom detached bungalow for sale in Tothby Lane, Alford, LN13 — £360,000 • 5 bed • 2 bath • 1700 ft²
4 bedroom detached bungalow for sale in Coles Avenue, Alford, LN13 — £315,000 • 4 bed • 1 bath • 1599 ft²


















































































































































