Move-in ready home close to station and High Street shops.
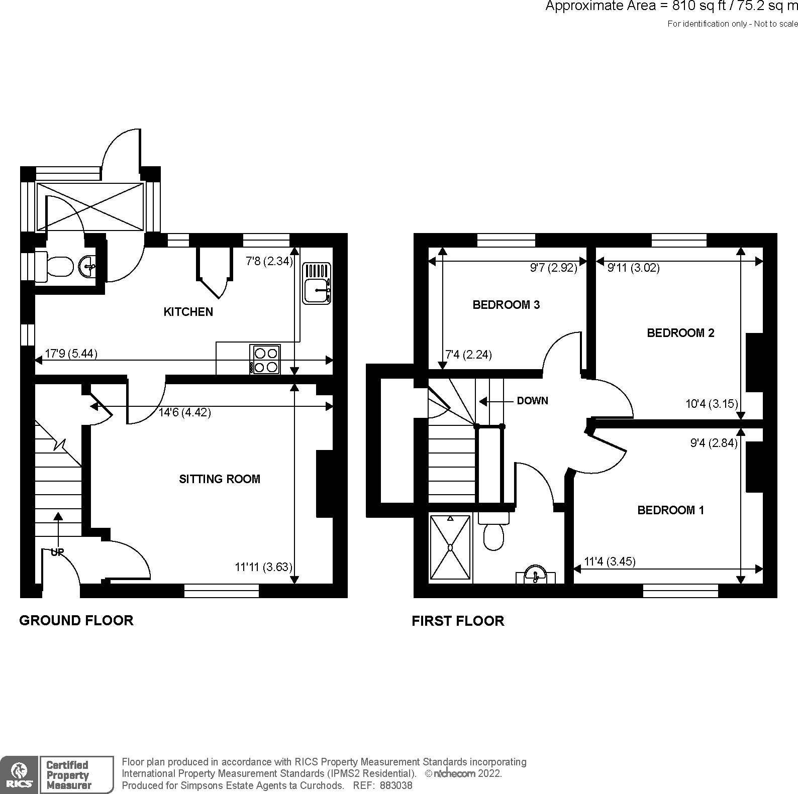
- Three bedrooms, one family bathroom, about 810 sq ft
- Newly refurbished interior with integrated kitchen appliances
- Decent rear garden and off-street parking to the front
- Walking distance to Esher station and High Street amenities
- Solid brick construction; no confirmed wall insulation
- Compact internal layout; small-to-average overall size
- Above-average local crime rate; consider security measures
- Chain free and suitable for immediate occupation or letting
This recently refurbished three-bedroom mid-terrace offers a contemporary finish across 810 sq ft, ideal for a small family or buy-to-let investor. The ground floor has a bright reception room and an upgraded kitchen with integrated appliances and a handy utility/WC. Upstairs are three bedrooms and a family bathroom, arranged for practical everyday living.
Outside, the property benefits from off-street parking to the front and a decent rear garden for children or evening entertaining. Esher station and the High Street are both within walking distance, and local schools rated Good or better make the location convenient for families.
Buyers should note the home is compact for a three-bedroom house and the single bathroom may suit a smaller household better than a large family. The building is traditional solid-brick construction with no confirmed wall insulation and the crime rate in the area is above average; factor potential retrofit and security improvements into plans and budgets.
Chain-free and newly modernised, this property is ready to move into or let immediately. It represents practical value in a sought-after KT10 location, with scope for further improvement if a buyer wants to increase space efficiency or energy performance.
2 bedroom terraced house for sale in Farm Road, Esher, KT10 — £525,000 • 2 bed • 1 bath • 697 ft²
2 bedroom end of terrace house for sale in Farm Road, Esher, KT10 — £550,000 • 2 bed • 1 bath • 746 ft²
3 bedroom terraced house for sale in Lower Green Road, Esher, Surrey, KT10 — £600,000 • 3 bed • 2 bath • 1000 ft²
4 bedroom semi-detached house for sale in Station Road, Esher, KT10 — £1,250,000 • 4 bed • 2 bath • 1809 ft²
2 bedroom semi-detached house for sale in Farm Road, Esher, Surrey, KT10 — £500,000 • 2 bed • 1 bath • 722 ft²
3 bedroom terraced house for sale in Mill Road, Esher, Surrey, KT10 — £450,000 • 3 bed • 1 bath • 1056 ft²










































