Single-storey family home with generous garden and parking near town amenities.
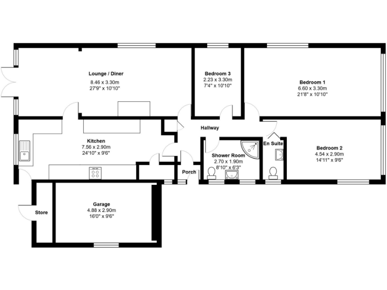
- Detached three-bedroom bungalow on a large private plot
- Sunny south-facing rear garden with patio and brick store
- Ample off-road parking plus single garage
- Bright lounge/diner with French doors to the garden
- Single family bathroom and separate WC (limited wet-room provision)
- Mid-20th-century build — likely scope for modernisation
- EPC C; double glazing present, installation date unknown
- Freehold, low crime area, fast broadband and excellent mobile signal
This three-bedroom detached bungalow on Fisher Road offers a peaceful, single-storey layout ideal for families or downsizers seeking easy, accessible living. Positioned on a generous plot with a sunny, south-facing rear garden, the home provides private outdoor space for children, pets and entertaining, plus a useful brick store and single garage.
Inside, the bright lounge/diner with French doors creates a pleasant social hub that opens onto the patio. The principal bedroom is spacious and there are two further comfortable bedrooms. Heating is gas-fired with radiators and the property currently holds an EPC C rating — practical for everyday living but with scope to improve energy performance further.
Practical positives include ample off-road parking, private driveway and freehold tenure. Notable drawbacks are the single family bathroom (plus a separate WC), and the bungalow’s mid-20th-century construction which means parts of the home may benefit from updating and modernisation. The double glazing is present, but installation date is unknown.
Buyers should note services and appliances have not been tested here; a professional survey is recommended to confirm condition and running costs. Given its size, plot and town-fringe location with good local schools and easy access to the Norfolk coast, the property suits families seeking a comfortable, adaptable home with garden space and parking.
4 bedroom detached bungalow for sale in Queens Road, Fakenham, NR21 — £450,000 • 4 bed • 3 bath • 2000 ft²
3 bedroom detached bungalow for sale in Mallard Close, Fakenham, NR21 — £290,000 • 3 bed • 2 bath • 1506 ft²
3 bedroom detached bungalow for sale in Mallard Close, Fakenham, NR21 — £290,000 • 3 bed • 1 bath • 814 ft²
3 bedroom semi-detached house for sale in Digby Drive, Fakenham, Norfolk, NR21 — £255,000 • 3 bed • 1 bath • 828 ft²
3 bedroom detached bungalow for sale in William Road, Fakenham, NR21 — £360,000 • 3 bed • 1 bath • 1445 ft²
3 bedroom detached house for sale in Driftlands, Fakenham, NR21 — £300,000 • 3 bed • 1 bath • 1260 ft²














































































