Modern two-bed top-floor flat with parking — ideal first-time buy or simple investment..
Top-floor two-bedroom apartment with balcony-style living window
Modern gas boiler, gas central heating and double glazing
Allocated off-street parking space in cul-de-sac location
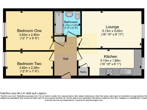
Built 2007 onwards; approximately 626 sq ft (average sized)
Leasehold: 106 years remaining
Very low council tax
Area has high crime rates and very deprived local conditions
Good local primary schools; fast broadband and excellent mobile signal
A well-presented two-bedroom top-floor apartment offering sensible space and modern fixtures, ideal for a first-time buyer or buy-to-let. The living room opens to a balcony-style aspect, and both bedrooms are doubles — practical for sharers or couples. Fitted kitchen, contemporary bathroom, gas central heating and double glazing keep running costs reasonable, and an allocated off-street parking space adds convenience.
The property is leasehold with 106 years remaining, built from 2007 onwards, and sits in a quiet cul-de-sac with good access to Derby city centre and major routes (A511/A50). Broadband speeds and mobile signal are strong, and nearby primary schools have Good Ofsted ratings, supporting everyday family needs.
Buyers should note the property sits in an area with high crime levels and significant deprivation; purchasers should consider local safety measures and insurance implications. The flat is average-sized at about 626 sq ft and while well maintained, those wanting larger rooms or a quieter neighbourhood may find it constrained. Council tax is very low, which offsets some local costs.
Overall this apartment represents an accessible purchase with modern fittings and commuter-friendly links. It suits first-time buyers seeking move-in-ready accommodation or investors looking for straightforward tenancy potential, provided they factor in local area challenges when deciding.
2 bedroom apartment for sale in Halycon, Ashbourne Road, Derby City Centre, DE22 — £110,000 • 2 bed • 1 bath • 646 ft²
2 bedroom flat for sale in Parliament Street, Derby, Derbyshire, DE22 — £110,000 • 2 bed • 1 bath • 538 ft²
2 bedroom flat for sale in Carrington Street, Derby, DE1 — £160,000 • 2 bed • 2 bath • 616 ft²
2 bedroom apartment for sale in Atlantic Way, City Point, DE24 — £120,000 • 2 bed • 2 bath • 614 ft²
2 bedroom apartment for sale in Jackdaw Close, Derby, DE22 — £110,000 • 2 bed • 1 bath • 555 ft²
2 bedroom apartment for sale in Ashwood Close,, DE24 — £110,000 • 2 bed • 1 bath • 323 ft²


























































