**Standout Features:**
- Two-bedroom first-floor apartment, built in 2006
- Bright living room with Juliette balcony
- Modern fitted kitchen with integrated appliances
- Allocated parking and communal gardens
- Walking distance to Walkden train station and town centre
- Close proximity to local schools, including 'Outstanding' rated Bridgewater Primary School
- Low council tax band B
**Potential Downsides:**
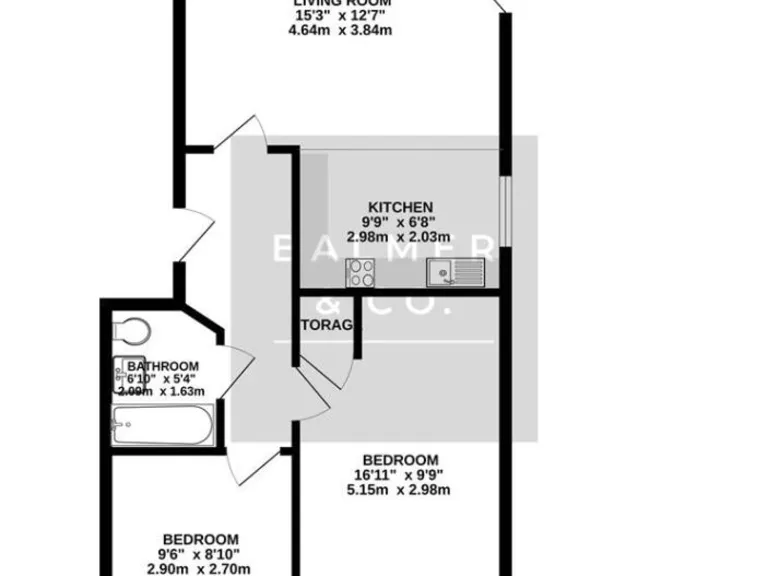
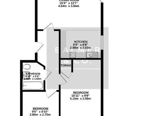
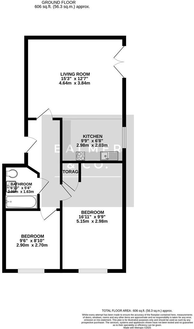
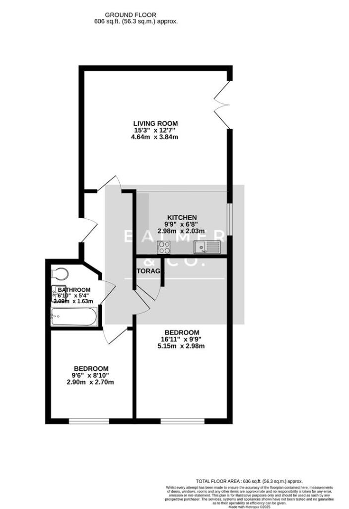
- Small overall size (606 sq ft) may not suffice for larger families
- Limited views, primarily overlooking parked cars
- Average broadband and mobile signal
This contemporary two-bedroom apartment, ideally located near Walkden town centre, offers a perfect blend of convenience and modern living. The secure communal entrance leads to a bright and inviting living room, boasting a Juliette balcony for natural light. The modern fitted kitchen features integrated appliances, making it an efficient space for cooking. The master bedroom provides ample storage with fitted cupboard space, complemented by a second double bedroom, ideal for guests or as a small office. The property benefits from allocated parking and access to well-maintained communal gardens, making it a great choice for first-time buyers, small families, or investors seeking rental potential.
Although the apartment's size is on the smaller side, it offers proximity to essential amenities, excellent local schools, and public transport links, enhancing its appeal. Schedule your viewing today and imagine calling this well-presented space your home!
2 bedroom flat for sale in Hatherton Court, Worsley, Manchester, Greater Manchester, M28 — £125,000 • 2 bed • 1 bath • 786 ft²
2 bedroom flat for sale in Atkin Street, Worsley, Manchester, M28 — £128,000 • 2 bed • 1 bath • 730 ft²
2 bedroom flat for sale in Worsley Gardens, Mountain Street, Worsley, Manchester, M28 — £95,000 • 2 bed • 1 bath • 596 ft²
2 bedroom flat for sale in 5-7 Atkin Street, Worsley, Manchester, M28 — £120,000 • 2 bed • 1 bath • 593 ft²
2 bedroom house for sale in Worsley Gardens, Mountain Street, Worsley, M28 — £90,000 • 2 bed • 1 bath • 614 ft²
2 bedroom apartment for sale in Everside Close, Worsley, Manchester, GB, M28 3EY, M28 — £100,000 • 2 bed • 1 bath • 602 ft²


















































































































