Historic farmhouse with income, huge plot and sea views near Woolacombe.
• Five-bedroom main house with adaptable interconnecting annexe area
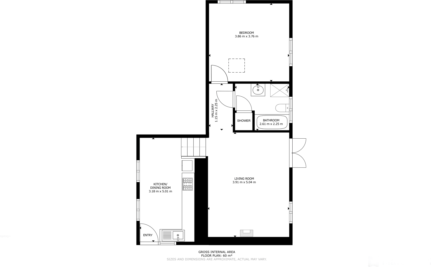
• One-bedroom holiday cottage producing reliable supplementary income
• Multiple outbuildings with full planning permission for residential conversion
• Huge plot with paddocks, gardens and sweeping countryside and sea views
• Separate home office/studio with broadband and electrics
• Parts of estate derelict; conversions will require significant build costs
• Tucked-away rural location; average mobile signal, fast broadband available
• Council tax rated expensive; isolated hamlet setting
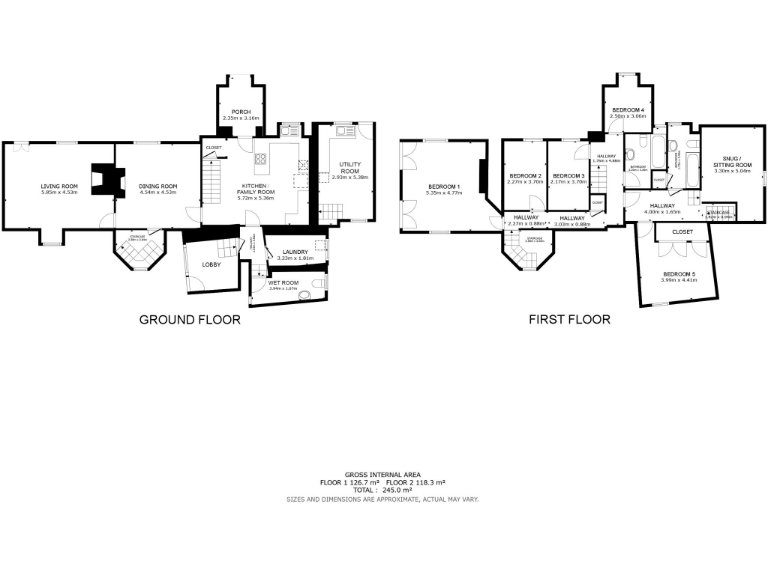
A rare North Devon farmhouse dating from 1622, Yarde Farm combines period character with modern comforts and multiple income streams. The main five-bedroom house is beautifully presented and versatile, with an interconnecting wing that can function as an annexe. A one-bedroom holiday cottage already produces strong supplementary income, and several outbuildings—including a shippon barn and a Dutch barn—have full planning permission for conversion into additional dwellings.
The plot is extensive, offering sweeping landscaped gardens, paddocks and expansive sea and countryside views just minutes from Woolacombe’s sandy beaches. Practical outbuildings include a large garage, separate home office/studio with broadband, and various storage barns. Off-street parking and direct access to local footpaths and the South West Coast Path add lifestyle appeal for families and holiday visitors.
Buyers should note this is a substantial rural holding: parts of the estate are derelict and will require investment to convert despite planning consents. Although many buildings have permission for residential use, conversion work, servicing and associated costs will be necessary. The location is tucked-away and peaceful but relatively isolated; mobile signal is average and council tax is higher than typical.
This property suits growing families seeking a character home with space for multigenerational living, buyers wanting established holiday-let income, or developers looking to realise the value of multiple planning consents. The combination of immediate income, historic charm and significant development potential makes this an uncommon coastal opportunity.
6 bedroom detached house for sale in Mortehoe, Woolacombe, Devon, EX34 — £2,000,000 • 6 bed • 3 bath • 645 ft²
9 bedroom detached house for sale in Bittadon, Barnstaple, Devon, EX31 — £1,000,000 • 9 bed • 8 bath • 5512 ft²
4 bedroom detached house for sale in Great Torrington, Great Torrington, Devon, EX38 — £1,250,000 • 4 bed • 3 bath • 4280 ft²
11 bedroom detached house for sale in Bittadon, Barnstaple, Devon, EX31 — £1,300,000 • 11 bed • 9 bath • 5512 ft²
5 bedroom detached house for sale in Pippacott, Marwood,, EX31 — £1,250,000 • 5 bed • 1 bath • 3767 ft²
5 bedroom detached house for sale in Trew Farmhouse, Higher Clovelly, Bideford, EX39 — £875,000 • 5 bed • 2 bath • 4138 ft²


















































































































































































































































