Ready-to-live three-bedroom with garage and driveway near schools and shops.
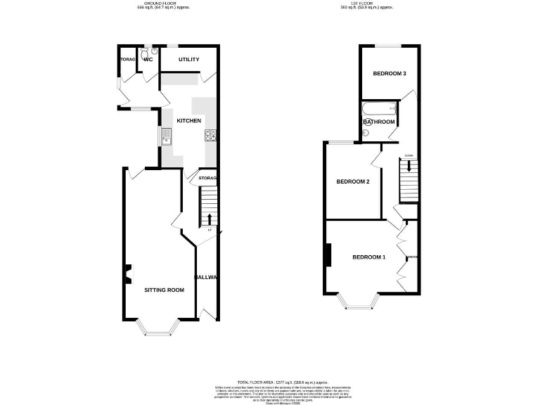
Spacious open-plan lounge-diner with prominent bay window
Large master bedroom with full-width built-in wardrobes
Driveway parking for multiple cars plus single garage
Low-maintenance enclosed rear patio, low upkeep
uPVC double glazing and mains gas central heating present
Solid brick construction likely without wall insulation
Local area shows high crime and high deprivation levels
Requires modest updating to improve energy efficiency and finish
This three-bedroom semi-detached house on Loke Road combines period character with practical family living. The large open-plan lounge-diner and bay-front master bedroom provide generous, light-filled spaces suited to daily family life and entertaining. The fitted kitchen, utility and downstairs cloakroom add useful functionality for busy households.
Outside, the property offers driveway parking for multiple cars and a single garage, plus a low-maintenance enclosed rear patio — easy to manage for families and those who prefer minimal garden upkeep. Modern conveniences include uPVC double glazing, mains gas central heating, fast broadband and excellent mobile signal, supporting working-from-home and streaming needs.
Buyers should note material drawbacks plainly: the house is built with older solid brick walls likely without cavity insulation, so thermal upgrades may be needed to improve energy efficiency. The local area has high recorded crime levels and high deprivation, which may affect buyer choices and resale considerations. Overall, the property suits families seeking space in a convenient town location who are comfortable with modest updating and being close to local schools and amenities.
3 bedroom semi-detached house for sale in Riversway, King's Lynn, PE30 — £190,000 • 3 bed • 1 bath • 824 ft²
3 bedroom semi-detached house for sale in Blackford, King's Lynn, PE30 — £260,000 • 3 bed • 1 bath • 543 ft²
3 bedroom terraced house for sale in Wootton Road, Gaywood, King's Lynn, PE30 — £210,000 • 3 bed • 2 bath • 786 ft²
3 bedroom semi-detached house for sale in Queens Avenue, KING'S LYNN, Norfolk, PE30 — £200,000 • 3 bed • 1 bath • 842 ft²
3 bedroom semi-detached house for sale in Daseleys Close, King's Lynn, PE30 — £254,950 • 3 bed • 2 bath • 1058 ft²
3 bedroom semi-detached house for sale in Suffield Way, King's Lynn, PE30 — £265,000 • 3 bed • 1 bath • 1119 ft²






























































































































