Bright contemporary house overlooking communal greenery, ideal for growing families.
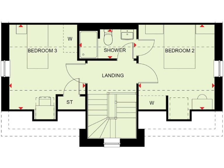
- Four bedrooms across three storeys with en suite and shower room
- Photovoltaic panels contribute to lower energy costs
- Garage plus two off-street parking spaces
- Overlooks green open space; cul-de-sac location for quiet setting
- Small overall size for four-bed (approx. 928 sq ft) — compact rooms
- New-build details/CGIs and measurements may differ from finished plot
- Services and appliances untested; recommend independent survey
- Area classified as older suburban character despite family-friendly schools
This three-storey new-build offers contemporary living across four bedrooms with photovoltaic panels, garage and two parking spaces. Positioned at the end of a quiet cul-de-sac and overlooking a green open space, it brings light and privacy with a modest garden and practical layout.
The house is compact for a four-bedroom (approximately 928 sq ft) so rooms feel efficiently planned rather than expansive; check the quoted dimensions and CGI guidance as they may not reflect the finished plot. The development sits on Ipswich’s outskirts with quick access to the waterfront, good local schools and fast broadband — useful for working from home and family life.
Buyers should note standard new-build caveats: measurements are for guidance, services and appliances have not been tested and purchasers are advised to commission their own survey. The area is very low crime and very affluent, but local demographic classifications indicate an older suburban character, which may influence community amenities.
Overall this property will suit a family seeking a modern, low-maintenance home with energy-saving PVs and parking, or a buyer looking for a practical, well-connected house to personalise. Expect to verify final specifications and service installations before purchase.
4 bedroom detached house for sale in Oxlip Blvd,
Ipswich,
Suffolk,
IP1 6FA, IP1 — £465,000 • 4 bed • 1 bath • 1367 ft²
4 bedroom house for sale in Henley Gate, Ipswich, IP1 — £480,000 • 4 bed • 2 bath • 934 ft²
4 bedroom detached house for sale in Henley Gate, Ipswich, IP1 — £535,000 • 4 bed • 2 bath • 1156 ft²
4 bedroom detached house for sale in Henley Gate, Ipswich, IP1 — £610,000 • 4 bed • 3 bath • 1258 ft²
4 bedroom house for sale in Henley Gate, Ipswich, IP1 — £465,000 • 4 bed • 2 bath • 934 ft²
4 bedroom detached house for sale in Henley Gate, Ipswich, IP1 — £525,000 • 4 bed • 2 bath • 1209 ft²










































