Modern, low-maintenance two-bedroom home sold under Section 106 for eligible local buyers..
- Section 106 affordable sale at 80% market value (eligibility required)
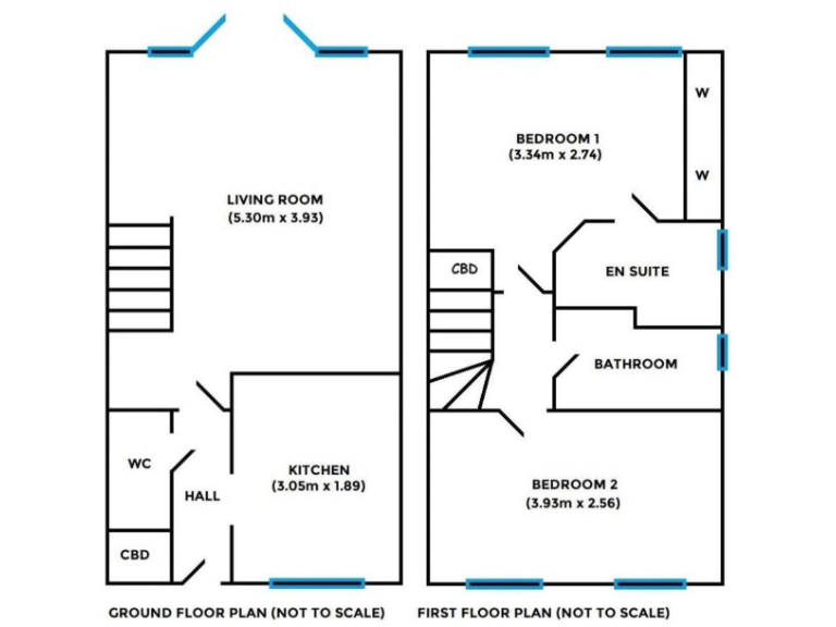
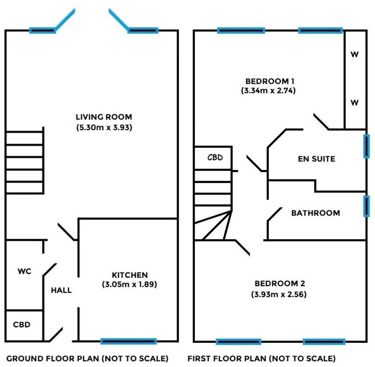
- Two bedrooms, principal with en-suite; family bathroom upstairs
- Open-plan kitchen/diner with patio doors to rear garden
- Driveway parking for two cars; enclosed, easy-care rear garden
- Small overall size (~496 sq ft) — compact living throughout
- Slow broadband; average mobile signal for the area
- Views over adjacent open space; low local crime
- Freehold tenure; low council tax
A compact, modern two-bedroom semi-detached home arranged over two floors, ideal for a first step on the property ladder. The ground floor features an open-plan kitchen/dining area with patio doors to an easy-care rear garden, plus a cloakroom for everyday convenience. The principal bedroom has an en-suite and there is a family bathroom upstairs.
This is a Section 106 (affordable housing) property sold at 80% of open market value. Buyers must meet Mid Devon eligibility rules (local connection and income/need criteria). Mid Devon Council will confirm eligibility prior to sale — purchasers should check they meet the scheme’s requirements before arranging a viewing.
Practical positives include driveway parking for two cars, an enclosed rear garden, low council tax and low local crime. The house is compact (approximately 496 sq ft) so it will suit buyers needing a low-maintenance, modest footprint rather than larger family accommodation. Broadband speeds are reported as slow and mobile signal is average.
Located on the edge of Cullompton, the home sits with views over open space and near local shops, primary schools rated Good, and road/rail links (M5 and Tiverton Parkway within reach). The property is freehold and presented in a modern style — move-in ready for many buyers, subject to Section 106 eligibility.
2 bedroom end of terrace house for sale in Greystone Walk, Cullompton, Devon, EX15 — £188,000 • 2 bed • 2 bath • 710 ft²
3 bedroom semi-detached house for sale in Dartmoor Way, Cullompton, EX15 1UH, EX15 — £250,000 • 3 bed • 1 bath • 829 ft²
2 bedroom semi-detached house for sale in Culm Lea, Cullompton, Devon, EX15 — £230,000 • 2 bed • 1 bath • 612 ft²
2 bedroom semi-detached house for sale in Lapwing Close, Cullompton, EX15 1UX, EX15 — £210,000 • 2 bed • 1 bath • 430 ft²
2 bedroom end of terrace house for sale in Parlour Mead, Cullompton, Devon, EX15 — £245,000 • 2 bed • 2 bath • 721 ft²
3 bedroom semi-detached house for sale in Gatehouse Close, Cullompton, EX15 1JJ, EX15 — £250,000 • 3 bed • 1 bath • 702 ft²


























































