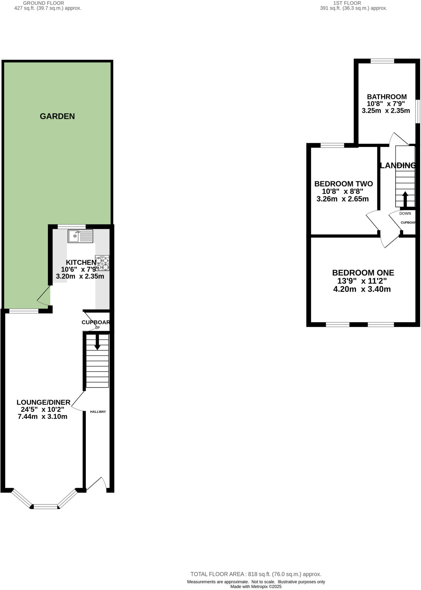
Period two-bedroom terrace with long garden, excellent transport links and school catchments..
Chain-free two-bedroom Edwardian terrace with period features
Approx 45–50ft well-kept rear garden, good outdoor space
14–24ft reception area; high ceilings and bay window character
Modern fitted kitchen and modern first-floor bathroom
Solid brick walls assumed without insulation; consider retrofit costs
Heating reported as electric room heaters—confirm system and costs
Small plot size and located in an area with higher crime rates
Close to Bush Hill Park station, A10 and M25 road links
This two-bedroom Edwardian terrace on Clive Road offers comfortable family living within easy reach of Bush Hill Park station and Enfield Town. The home combines period character — bay windows, high ceilings and a feature fireplace — with updated elements such as a modern fitted kitchen and a first-floor bathroom.
The layout is practical: a long reception room, two good-sized bedrooms and an approximately 45–50ft well-kept rear garden provide usable space for family life and outdoor play. The property is offered chain-free and sits within the catchment of several well-regarded primary and secondary schools, including Bush Hill Park and George Spicer.
Buyers should note a few important points: the building is a solid-brick Edwardian terrace likely without cavity wall insulation, the plot is modest in size, and the area records higher-than-average crime levels. Heating is reported as electric room heaters (billing and performance differ from gas central heating), so confirm the exact heating system and running costs during viewing.
This home will suit families seeking good transport links to central London and strong local schools, or buyers wanting a period property with scope to improve energy efficiency and personalise interiors. Chain-free status and a long garden add practical appeal, while sensible renovation could increase comfort and value.
3 bedroom end of terrace house for sale in Clive Road, Enfield, EN1 — £475,000 • 3 bed • 1 bath • 835 ft²
3 bedroom terraced house for sale in Landseer Road, Enfield, EN1 — £475,000 • 3 bed • 1 bath • 955 ft²
2 bedroom terraced house for sale in Charles Street, Enfield, EN1 — £425,000 • 2 bed • 1 bath • 787 ft²
2 bedroom terraced house for sale in Clive Road, Enfield, EN1 — £399,950 • 2 bed • 1 bath • 840 ft²
3 bedroom terraced house for sale in Landseer Road, Enfield, EN1 — £467,500 • 3 bed • 1 bath • 722 ft²
3 bedroom terraced house for sale in Edenbridge Road, Enfield, EN1 — £595,000 • 3 bed • 1 bath • 637 ft²






























































































