HP23 6JQ - 4 bedroom detached house for sale in Abbeydawn Rise, Choles…

View on Property Piper

4 bedroom detached house for sale in Abbeydawn Rise, Cholesbury Road, HP23

Summary - ABBEYDAWN KENNELS, CHOLESBURY ROAD HP23 6JQ

4 bed 3 bath Detached

**Standout Features:**
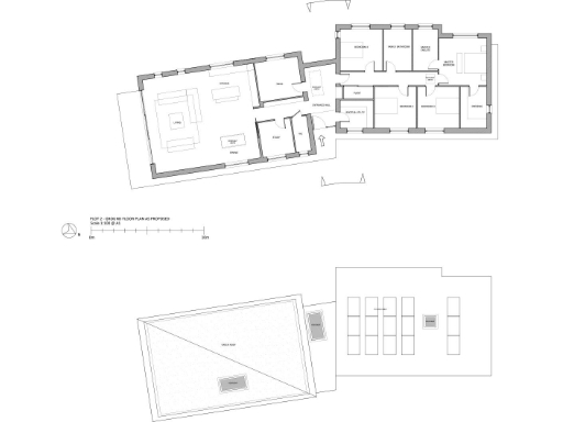
- Large plot size of 2205 m² (23734 sq ft)
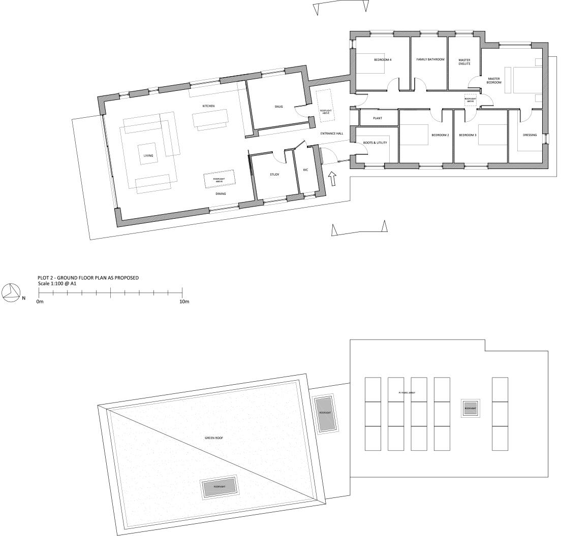
- Approved plans for a custom four-bedroom home (GIA: 246 m² / 2647 sq ft)
- Generous garden space and large terrace
- Three off-street parking spaces
- Tranquil countryside setting near Tring
- Opportunity for complete customization
- Chain free, Freehold tenure
- Extremely low crime rate in a highly affluent area

**Potential Downsides:**
- No immediate mobile signal
- Limited availability of only two plots in the development

**Summary:**
Discover Abbeydawn Rise, a rare opportunity to create your dream home in a serene and affluent countryside setting, just outside the historic market town of Tring. This exceptional development features approved plans for a distinctive four-bedroom detached residence, complete with generous garden space and a large terrace, allowing you to customize layouts according to your lifestyle preferences. With a considerable plot size of 2205 m² and three private parking bays, this offers ample room for both family living and entertaining. Enjoy the comfort of a new build in a tranquil hamlet, whilst remaining well-connected to London via direct rail services.

The surrounding Chiltern Hills provide stunning views and endless outdoor recreational opportunities, perfect for family living or peaceful retreats. Take advantage of the chance to work with design and build professionals to tailor your bespoke home from layout to materials, ensuring a personalized sanctuary uniquely yours. With only two plots available, this exclusive property promises privacy and potential for considerable future value. Don’t miss this limited opportunity—explore the possibilities at Abbeydawn Rise today!

Property Details

Brochure Descriptions

Image Descriptions

Floorplan Description

Rooms

Textual Property Features

Detected Visual Features

Nearby Schools

Nearest Bars And Restaurants

,,,,}

Nearest General Shops

,,}

Nearest Grocery shops

,,}

Nearest Supermarkets

,,}

Nearest Religious buildings

,,}

Nearest Medical buildings

,,,}

Nearest Airports

}

Nearest Leisure Facilities

,,,,}

Nearest Tourist attractions

,,}

Nearest Train stations

,,,,}

Nearest Bus stations and stops

,,,,}

Nearest Hotels

,,}

Tags

Local Market Stats

Meta

High Res Images

Compatible Images

Low res Images

Thumbnails

Raw Images

High Res Floorplan Images

Compatible Floorplan Images

Low res Floorplan Images

FloorplanImages Thumbnail

Raw Floorplan Images