Characterful three-bed family home near Enfield Town and rail links, with garage and garden..
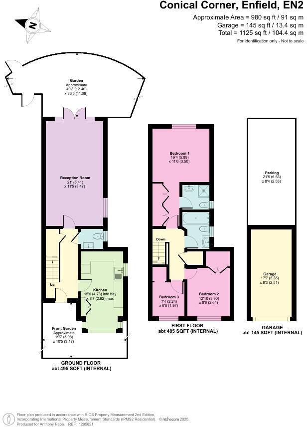
Detached three-bedroom house with vaulted master and en-suite
Garage and side access providing off-street parking and storage
Private rear garden with patio, lawn and planting areas
15ft integrated kitchen/diner and reception with French doors
Built 1930–49; solid brick walls (no assumed insulation)
Double glazing fitted before 2002 — likely due for replacement
Average broadband; excellent mobile signal for remote working
Local crime level very high — consider security and insurance costs
Set on a quiet turning in the Chase Green Conservation Area, this three-bedroom detached home blends period character with modern living. The ground floor offers a 15ft integrated kitchen/diner, a generous reception room with French doors to the rear garden, and a handy cloakroom — practical spaces for everyday family life.
Upstairs the master bedroom benefits from a vaulted ceiling and en-suite; two further bedrooms and a contemporary family bathroom complete the sleeping accommodation. A private rear garden, patio and garage provide outdoor space and secure parking — rare for the area and useful for family storage or bikes.
Important practical points: the house dates from the 1930–49 period with solid brick walls (no built-in cavity insulation assumed) and double glazing installed before 2002. These features mean future buyers should plan for energy-efficiency upgrades (insulation, window replacement) to reduce running costs. Broadband speeds are average and crime levels are very high locally, which may affect security considerations and insurance premiums.
Overall, this well-presented home will suit families who value character, good local schools and easy access to Enfield Town and rail links. It offers immediate liveability with clear potential for improvement to increase comfort and long-term value.
5 bedroom semi-detached house for sale in Chase Side, Enfield, EN2 — £900,000 • 5 bed • 3 bath • 1741 ft²
3 bedroom end of terrace house for sale in Chase Side, Enfield, EN2 — £725,000 • 3 bed • 1 bath • 1165 ft²
5 bedroom semi-detached house for sale in Chase Green Avenue, Enfield, EN2 — £1,150,000 • 5 bed • 2 bath • 2262 ft²
4 bedroom detached house for sale in Chase Ridings, Enfield, EN2 — £830,000 • 4 bed • 2 bath • 1273 ft²
2 bedroom terraced house for sale in Chase Side, Enfield, EN2 — £550,000 • 2 bed • 1 bath • 628 ft²
3 bedroom semi-detached house for sale in Chase Court Gardens, Enfield, EN2 — £800,000 • 3 bed • 1 bath • 1118 ft²


















































































































