Bright extended layout with garden and solar panels, ideal for growing families.
Four generous double bedrooms including 25ft top-floor principal room
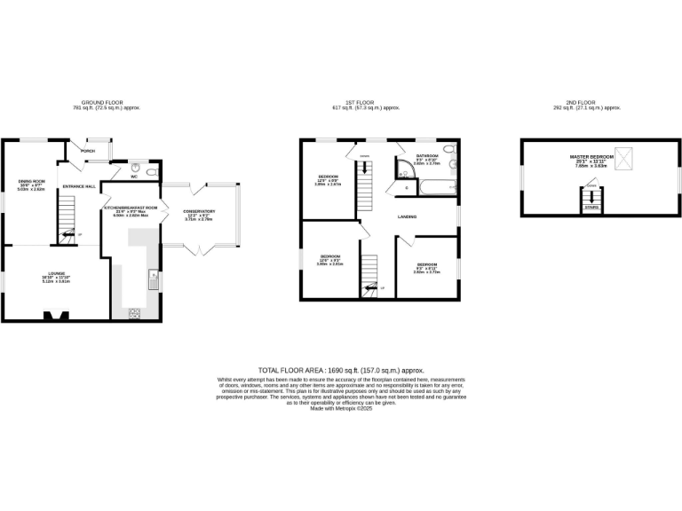
This extended detached home on Fakenham Road offers genuinely generous, flexible family accommodation over three floors. The 21ft kitchen/breakfast room and adjoining 12ft conservatory create a bright hub for everyday life and entertaining, while a separate dining room (converted from the original garage) and 16ft lounge provide distinct living zones.
Four double bedrooms include an impressive 25ft top-floor principal room, giving space and privacy for family members or a home office. The mature, enclosed rear garden and off-street parking on the driveway add practical outdoor and parking benefits. Solar panels and an EPC rating of C help reduce running costs.
Buyers should note there is one main bathroom serving four bedrooms, which may affect larger families or those wanting ensuite facilities. The kitchen notes potential damp in one area; this should be inspected and, if necessary, remedied. The garage conversion removes original garage storage and may limit vehicle storage unless the driveway is used.
Located near good local schools, amenities and with fast broadband and excellent mobile signal, this property suits growing families seeking a roomy, well-located home with scope to personalise further.
4 bedroom detached house for sale in Shepherd Way, Taverham, NR8 — £475,000 • 4 bed • 2 bath • 1703 ft²
4 bedroom detached house for sale in Shelley Drive, Taverham, NR8 — £450,000 • 4 bed • 2 bath • 1648 ft²
4 bedroom detached house for sale in Taverham Road, Taverham, NR8 — £750,000 • 4 bed • 3 bath • 1322 ft²
4 bedroom chalet for sale in Victoria Road, Taverham, NR8 — £375,000 • 4 bed • 2 bath • 1202 ft²
4 bedroom detached house for sale in The Covey, Taverham, Norwich, NR8 — £400,000 • 4 bed • 2 bath • 1300 ft²
4 bedroom detached house for sale in Springfield Road, Taverham, Norwich, NR8 — £350,000 • 4 bed • 2 bath • 1375 ft²










































































