Large garden and open-plan living for growing families close to schools and transport.
Chain-free new-build with 10-year NHBC Buildmark warranty
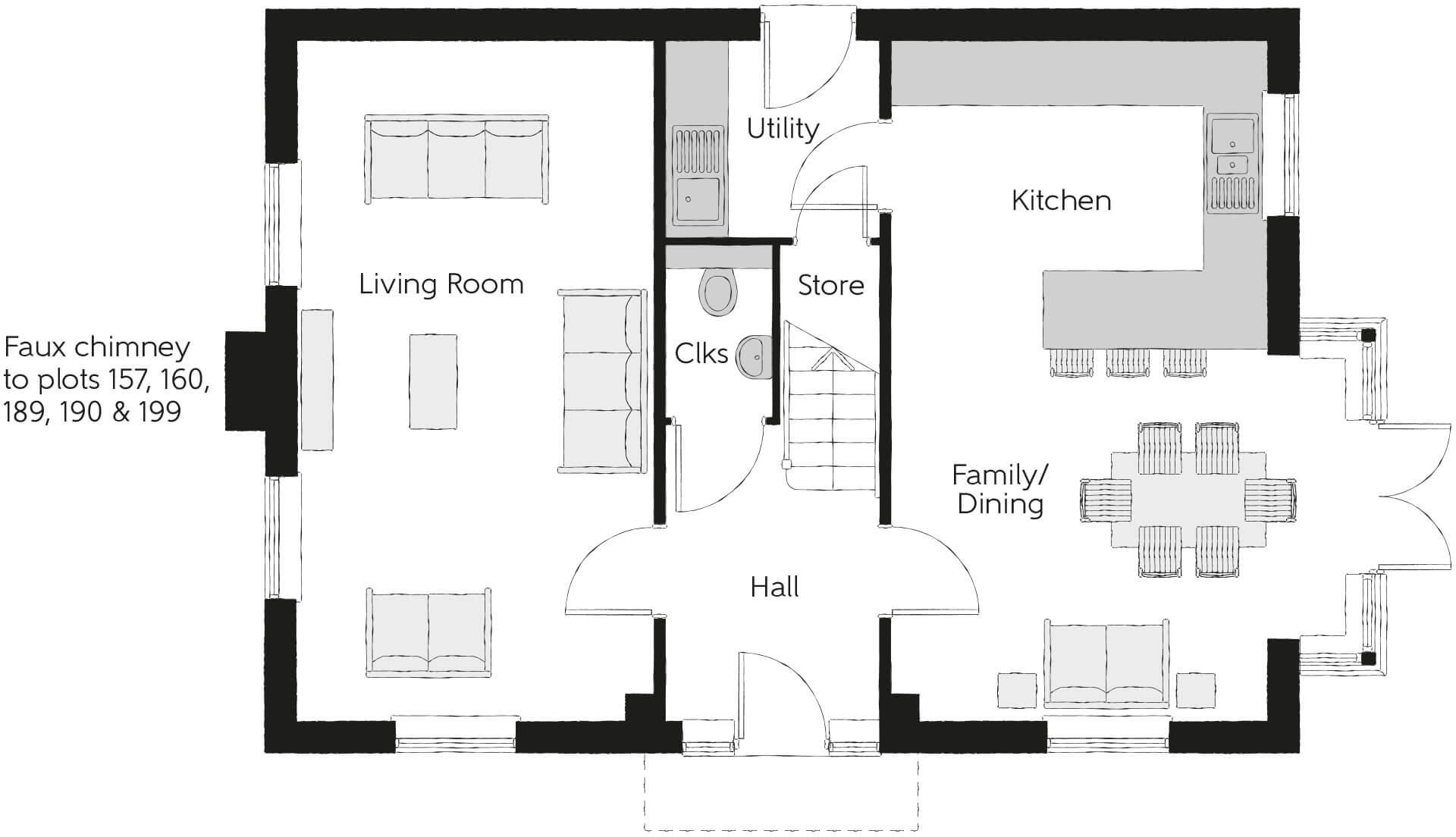
A contemporary, chain-free 4-bedroom detached new build in Kings Hill, finished by an award-winning builder and covered by a 10-year NHBC Buildmark policy. The Bowyer offers 1,338 sq ft of flexible living with a dual-aspect living room, open-plan kitchen/dining/family space, utility room and a feature bay with French doors that open onto a large rear garden.
Designed for family life and commuting professionals, the layout includes three double-sized bedrooms, an en-suite to the principal bedroom, two landing storage cupboards and a practical downstairs cloakroom. The U-shaped kitchen with breakfast bar and the separate utility help keep everyday life organised, while plentiful natural light and thoughtful storage make the home low-maintenance on day one.
Location benefits include fast broadband, nearby schools rated Outstanding–Good, landscaped communal spaces and on-site retail within the wider Aviation Park scheme. The plot is notably large for the development, providing real outside space for children and gardening.
Notable costs and considerations: council tax sits at band F and will be relatively high; there is an Estate Management Charge of £648.25. The immediate area records above-average crime compared with national figures and this home sits on a small-town/town-fringe setting rather than a rural location. Buyers should also note the property is new build, so longer-term settling and landscaping works may continue in the wider development.
 4 bedroom detached house for sale in Park Drive,
Kings Hill,
ME19 4NF
, ME19 — £599,995 • 4 bed • 1 bath • 1338 ft²
 4 bedroom detached house for sale in Park Drive,
Kings Hill,
ME19 4NF
, ME19 — £599,995 • 4 bed • 1 bath • 1338 ft² 4 bedroom detached house for sale in Park Drive,
Kings Hill,
ME19 4NF
, ME19 — £599,995 • 4 bed • 1 bath • 1338 ft²
 4 bedroom detached house for sale in Park Drive,
Kings Hill,
ME19 4NF
, ME19 — £599,995 • 4 bed • 1 bath • 1338 ft² 4 bedroom detached house for sale in Park Drive,
Kings Hill,
ME19 4NF
, ME19 — £564,995 • 4 bed • 1 bath • 1197 ft²
 4 bedroom detached house for sale in Park Drive,
Kings Hill,
ME19 4NF
, ME19 — £564,995 • 4 bed • 1 bath • 1197 ft² 4 bedroom detached house for sale in Park Drive,
Kings Hill,
ME19 4NF
, ME19 — £569,995 • 4 bed • 1 bath • 1197 ft²
 4 bedroom detached house for sale in Park Drive,
Kings Hill,
ME19 4NF
, ME19 — £569,995 • 4 bed • 1 bath • 1197 ft² 4 bedroom detached house for sale in Park Drive,
Kings Hill,
ME19 4NF
, ME19 — £589,995 • 4 bed • 1 bath • 1271 ft²
 4 bedroom detached house for sale in Park Drive,
Kings Hill,
ME19 4NF
, ME19 — £589,995 • 4 bed • 1 bath • 1271 ft² 4 bedroom detached house for sale in Park Drive,
Kings Hill,
ME19 4NF
, ME19 — £589,995 • 4 bed • 1 bath • 1271 ft²
 4 bedroom detached house for sale in Park Drive,
Kings Hill,
ME19 4NF
, ME19 — £589,995 • 4 bed • 1 bath • 1271 ft²














































































