Freehold riverside flat with garage and two balconies, ideal for downsizers.
Stunning uninterrupted River Dart and sea views
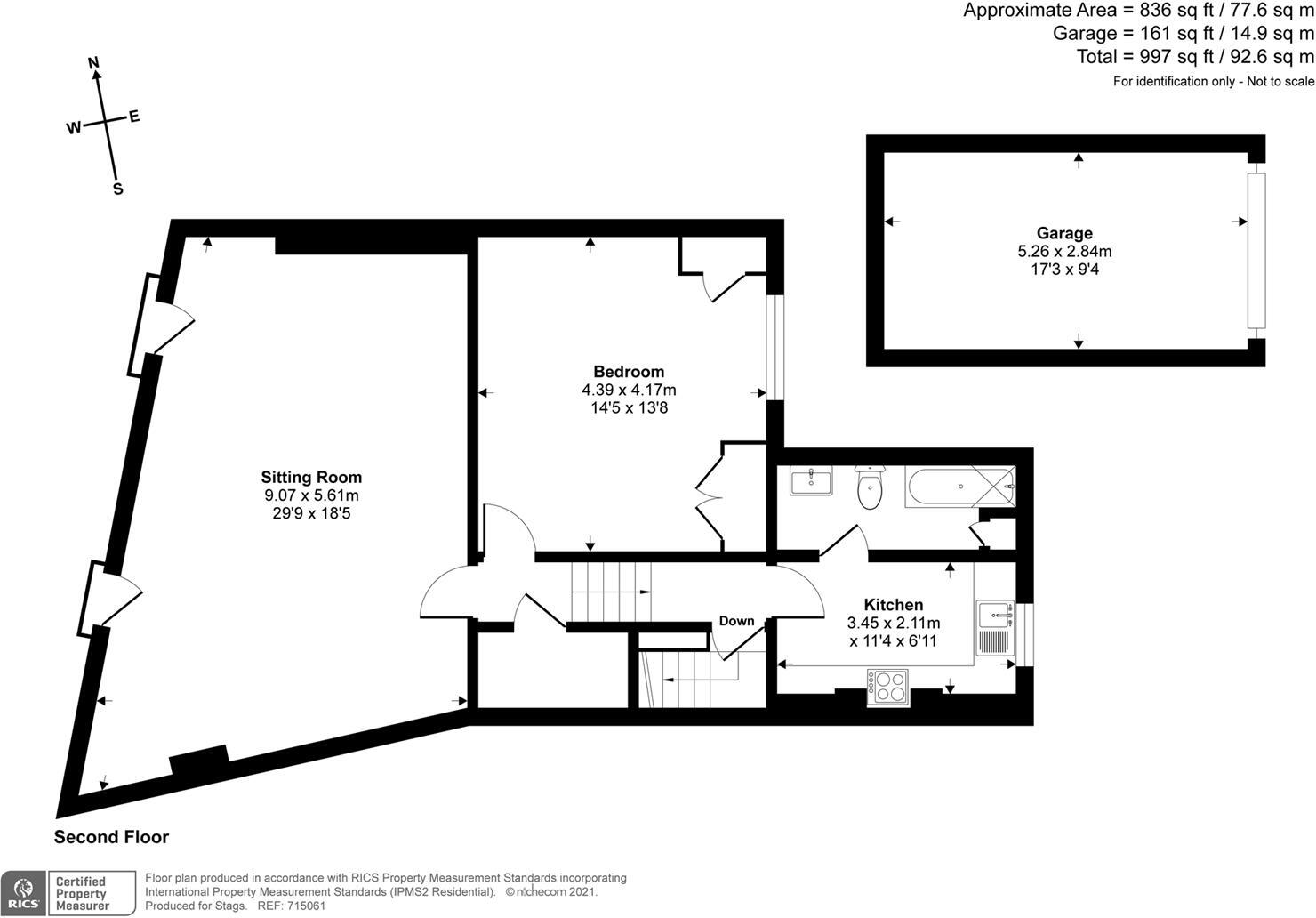
This bright second-floor apartment occupies a prime position on Dartmouth’s South Embankment, offering uninterrupted river views towards Dartmouth Castle and out to sea. The living room opens onto two balconies, maximising light and the waterfront aspect, while the large double bedroom and separate study deliver comfortable, flexible accommodation for downsizers or professional couples.
Practical benefits include a freehold title, a nearby private garage, mains gas central heating and ultrafast broadband. The central town location places shops, cafes and leisure facilities a short walk away, yet the property sits in a low-crime, affluent area with low flood risk.
Buyers should note some material points: the apartment has an EPC rating of D and the building’s cavity walls were built without insulation (assumed), so improving energy efficiency may be desirable. No holiday letting is permitted. The building’s Victorian origins give character and high ceilings, but also mean communal areas and the fabric could need ongoing maintenance.
Offered chain-free, this freehold riverside apartment suits anyone seeking an easy-to-manage, characterful home with exceptional waterfront outlooks and the convenience of garage parking in the town centre.
3 bedroom apartment for sale in Above Town, Dartmouth, TQ6 — £700,000 • 3 bed • 2 bath • 953 ft²
1 bedroom apartment for sale in South Town, Dartmouth, TQ6 — £250,000 • 1 bed • 1 bath • 427 ft²
2 bedroom flat for sale in Above Town, Dartmouth, TQ6 — £490,000 • 2 bed • 1 bath • 817 ft²
1 bedroom apartment for sale in 7a Ridge Hill, Dartmouth, Devon, TQ6 — £375,000 • 1 bed • 2 bath • 911 ft²
2 bedroom flat for sale in Raleigh Street, Dartmouth, TQ6 — £215,000 • 2 bed • 1 bath • 706 ft²
1 bedroom flat for sale in North Embankment, Dartmouth, TQ6 — £280,000 • 1 bed • 1 bath • 744 ft²


















































