Character home close to town and the mainline station, ideal for first-time buyers.
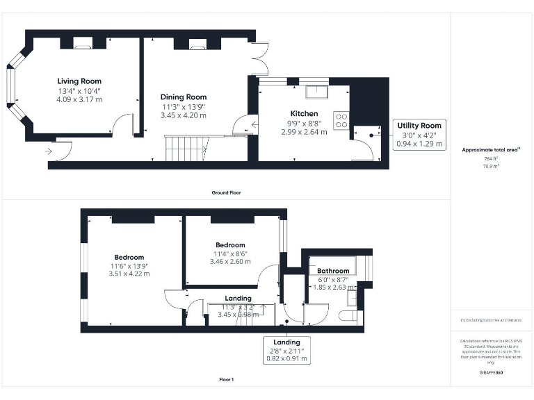
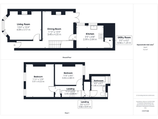
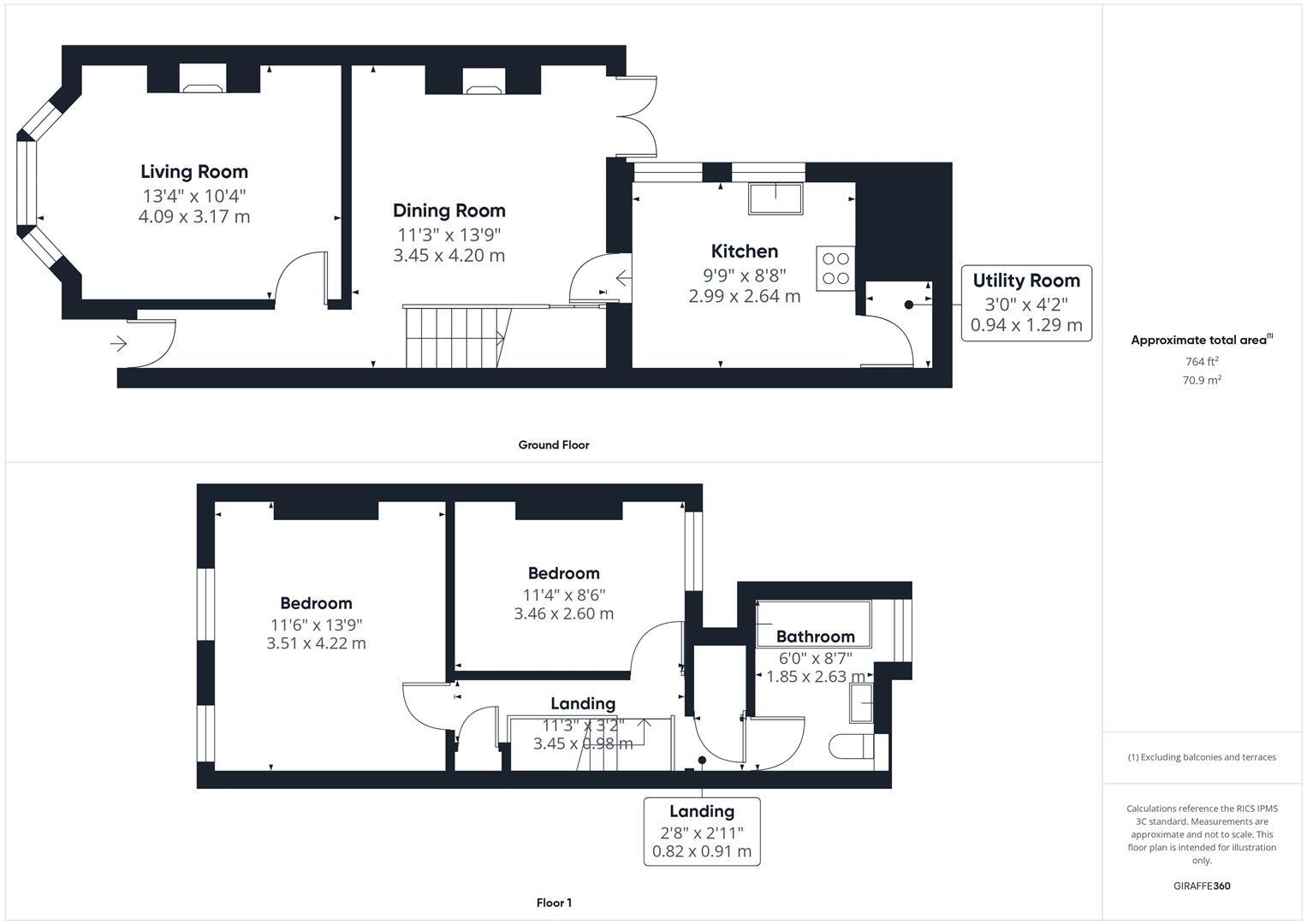
- Two double bedrooms and family bathroom
- Bay-fronted living room with feature fireplace
- Separate dining room with French doors to garden
- Good-sized, private rear garden with patio and decking
- Side driveway/off-street parking included
- Built before 1900; solid brick walls likely uninsulated
- Double glazing fitted before 2002; energy upgrades advisable
- Area has above-average crime and local deprivation noted
A period two-bedroom semi-detached house in central Aylesbury, a short walk from the town centre and mainline station (Marylebone c.1 hour). The property retains Victorian character — bay window and feature fireplace — alongside practical living: separate living and dining rooms, kitchen with utility area, and a long, private rear garden with patio and decking.
The layout suits first-time buyers, commuters or a small family seeking convenience and potential. Two double bedrooms and a family bathroom sit on the first floor with loft access and built-in cupboards. Off-street parking to the side adds everyday practicality and the plot gives scope for landscaping or modest rear extension (subject to consent).
Buyers should note the house was constructed before 1900 with solid brick walls probably lacking modern cavity insulation, and double glazing dated to before 2002. The area has above-average crime and pockets of deprivation, so purchasers should weigh neighbourhood factors. Overall this is an affordable, characterful home offering comfortable central living and clear potential for updating and energy-efficiency improvements.
2 bedroom terraced house for sale in Ardenham Street, Aylesbury, Buckinghamshire, HP19 — £280,000 • 2 bed • 1 bath • 653 ft²
3 bedroom semi-detached house for sale in Buckingham Road, Aylesbury, Buckinghamshire, HP19 — £365,000 • 3 bed • 1 bath • 937 ft²
2 bedroom terraced house for sale in Buckingham Road, Aylesbury, HP19 — £250,000 • 2 bed • 1 bath • 567 ft²
2 bedroom semi-detached house for sale in Lansdowne Road, HP20 — £310,000 • 2 bed • 1 bath • 881 ft²
2 bedroom terraced house for sale in Roberts Drive, Aylesbury, HP19 — £270,000 • 2 bed • 1 bath • 514 ft²
2 bedroom terraced house for sale in Highbridge Road, Aylesbury, Buckinghamshire, HP21 — £318,500 • 2 bed • 1 bath • 1002 ft²














































