PO8 8QS - 2 bedroom bungalow for sale in Albretia Avenue, Cowplain, P…

View on Property Piper

2 bedroom bungalow for sale in Albretia Avenue, Cowplain, PO8 8QS, PO8

Summary - 11, Albretia Avenue PO8 8QS

2 bed 1 bath Bungalow

**Standout Features:**
- Chain-free, freehold bungalow
- Two bedrooms with potential for a third
- Full-width conservatory and modern kitchen
- Ample off-street parking with integral garage
- Private rear garden suitable for entertaining

**Concerns:**
- High local crime rate and area deprivation
- Cavity walls without insulation (assumed)

Discover the charm of this inviting two-bedroom detached bungalow in Cowplain, perfectly positioned in a tranquil neighborhood. Boasting a full-width conservatory that fills the home with light, this property features a modern kitchen and a recently updated shower room, making it ideal for comfortable living. The interior layout is designed for both relaxation and social gatherings, with a spacious lounge that invites ambiance from the gas fireplace.

While the property offers a decent-sized private garden for outdoor entertaining, potential buyers should be mindful of the high local crime rates and area challenges.

This bungalow, constructed in the mid-20th century, presents a fantastic opportunity for first-time buyers or investors seeking a low-maintenance home with room for personal renovation touches. With off-road parking and a garage, practicality is at your doorstep, complemented by essential amenities and reputable local schools nearby. Don’t miss your chance to make this cozy retreat your own!

Property Details

Brochure Descriptions

Image Descriptions

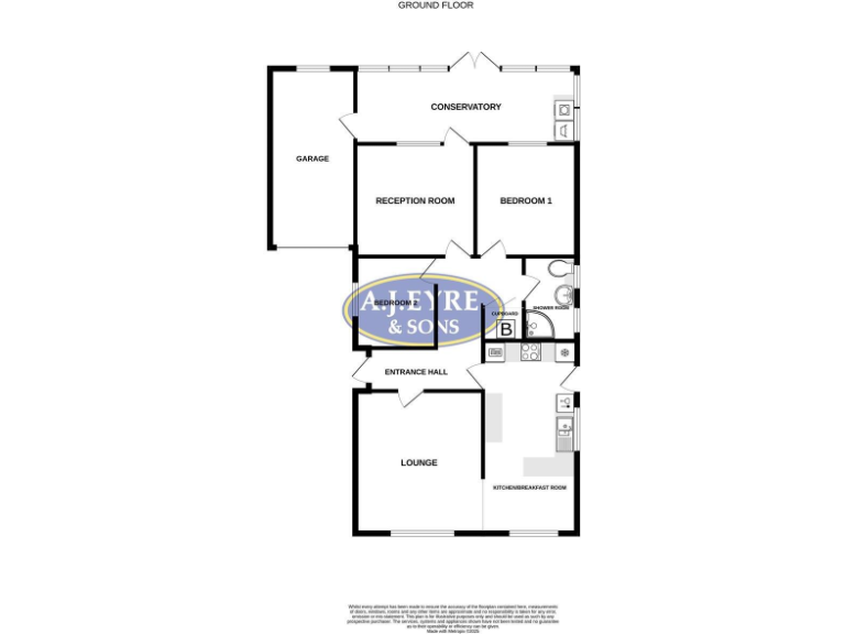
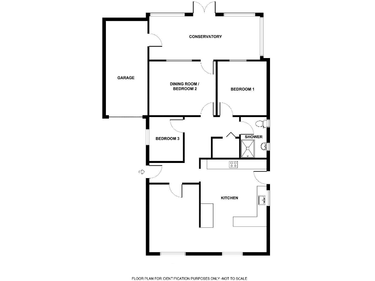
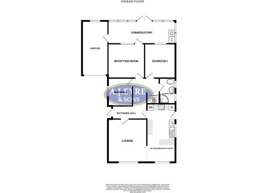
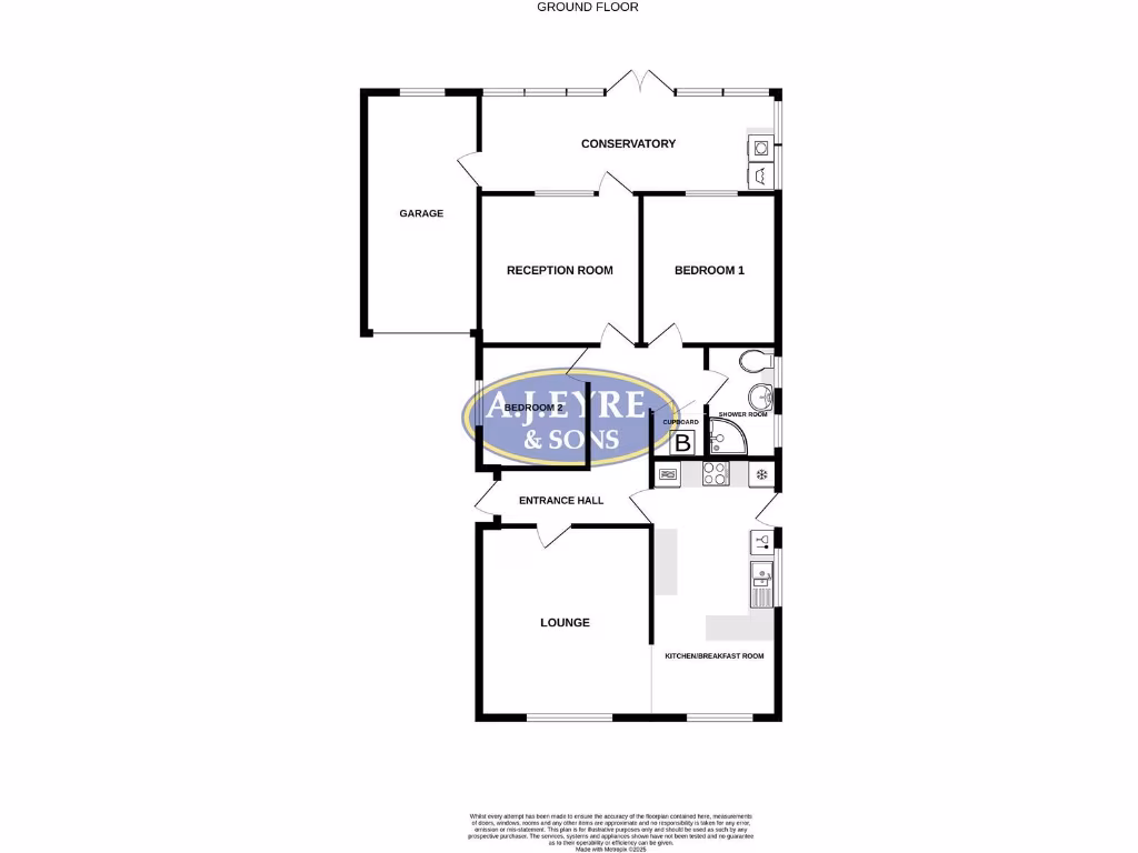
Floorplan Description

Rooms

Textual Property Features

Detected Visual Features

EPC Details

Nearby Schools

Nearest Bars And Restaurants

,,,,}

Nearest General Shops

,,}

Nearest Grocery shops

,,}

Nearest Supermarkets

,,}

Nearest Religious buildings

,,}

Nearest Medical buildings

,,,}

Nearest Airports

}

Nearest Leisure Facilities

,,,,}

Nearest Tourist attractions

,,}

Nearest Train stations

,,,,}

Nearest Bus stations and stops

,,,,}

Nearest Hotels

,,}

Tags

Local Market Stats

Similar Properties

Meta

High Res Images

Compatible Images

Low res Images

Thumbnails

Raw Images

High Res Floorplan Images

Compatible Floorplan Images

Low res Floorplan Images

FloorplanImages Thumbnail

Raw Floorplan Images