**Standout Features:**
- Immaculately presented one-bedroom first-floor apartment
- Bright and spacious open-plan kitchen/living/dining area
- Contemporary bathroom and modern fixtures throughout
- Allocated off-street parking and communal bike store
- Long lease with 107 years remaining
- No forward chain for quick purchase
- Located near Tuckton, Southbourne Grove, and award-winning beaches
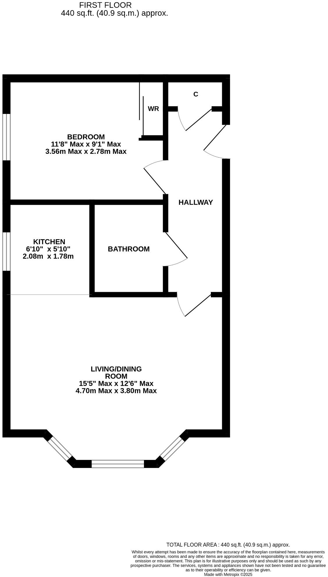
This modern and stylish first-floor apartment presents the perfect opportunity for first-time buyers and investors alike, with a well-designed layout spread across 440 sq ft. The heart of the home features a bright open-plan kitchen/living/dining room, bathed in natural light from a bay window—ideal for relaxing and entertaining. The contemporary kitchen is equipped with integrated appliances, a trendy breakfast bar, and ample storage, making it both functional and attractive.
The generous double bedroom boasts a chic design, complete with a fitted wardrobe, while the modern bathroom includes a bath and shower combination for your convenience. Additional benefits include gas central heating, double glazing, and an allocated parking space in a well-kept communal area.
Nestled in a desirable residential neighborhood, this apartment offers easy access to local amenities, picturesque river walks, and stunning beaches. With no forward chain, you can quickly move into this delightful property and enjoy the beachside lifestyle in Southbourne. Don't miss out on this exclusive opportunity—schedule your viewing today!
1 bedroom flat for sale in Woodside Road, Bournemouth, BH5 — £160,000 • 1 bed • 1 bath • 415 ft²
1 bedroom apartment for sale in Southbourne Road, Southbourne, Bournemouth, BH6 5AD, BH6 — £160,000 • 1 bed • 1 bath • 388 ft²
1 bedroom apartment for sale in Newstead Road, Bournemouth, Dorset, BH6 — £196,000 • 1 bed • 1 bath • 500 ft²
1 bedroom flat for sale in Southbourne, BH6 — £164,500 • 1 bed • 1 bath • 357 ft²
1 bedroom flat for sale in Vixen Lodge, 46 Foxholes Road, Southbourne, BH6 — £180,000 • 1 bed • 1 bath • 367 ft²
1 bedroom flat for sale in Southbourne Road, Southbourne, BH6 — £168,500 • 1 bed • 1 bath • 441 ft²


















































