Newly renovated, secure flat with long lease and strong commuter links.
Allocated off-street parking in gated development
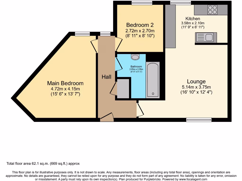
This recently renovated two-bedroom apartment sits in a gated development on Anson Street, offering secure, low-maintenance living with allocated off-street parking. The open-plan living area with Juliet balcony brings natural light into an average-sized, modern layout suited to first-time buyers or buy-to-let landlords seeking immediate rental appeal.
The property benefits from an exceptionally long lease (779 years) and modest ground rent of £155. It’s well connected — Patricroft station is under half a mile away and the M60, Trafford Centre and local bus routes provide fast links into Manchester and surrounding employment hubs.
Practical points are straightforward: the flat is electric-heated via wall-mounted room heaters rather than a central gas system, and the area is classified as very deprived which may influence long-term capital growth. Newly fitted carpets and a refurbished bathroom reduce immediate maintenance needs, but the property’s average size and standard ceiling heights mean space is functional rather than grand.
For buyers wanting commuter convenience, low running costs (cheap council tax) and a turn-key apartment, this delivers clear value. Investors should note local area deprivation and plan tenancy strategies accordingly; first-time buyers will appreciate the move-in condition and long lease security.
2 bedroom flat for sale in Lawnhurst Avenue, Manchester, Greater Manchester, M23 — £175,000 • 2 bed • 1 bath • 700 ft²
2 bedroom flat for sale in Potato Wharf, Manchester, M3 — £250,000 • 2 bed • 1 bath • 675 ft²
2 bedroom apartment for sale in 1 Isaac Way, Manchester, M4 — £210,000 • 2 bed • 2 bath • 708 ft²
2 bedroom apartment for sale in 13 Slate Wharf, Manchester, M15 — £297,500 • 2 bed • 2 bath • 750 ft²
1 bedroom apartment for sale in Advent Way, Manchester, Greater Manchester, M4 — £155,000 • 1 bed • 1 bath • 518 ft²
2 bedroom apartment for sale in 30 Clifton Road, Manchester, M30 — £205,000 • 2 bed • 2 bath • 626 ft²






























































