SN1 4BZ - 3 bedroom house for sale in Avenue Road, Swindon, SN1

View on Property Piper

3 bedroom house for sale in Avenue Road, Swindon, SN1

Summary - 30 AVENUE ROAD SWINDON SN1 4BZ

3 bed 1 bath House

Character-filled three-bed Old Town home with modern kitchen and rear garden..
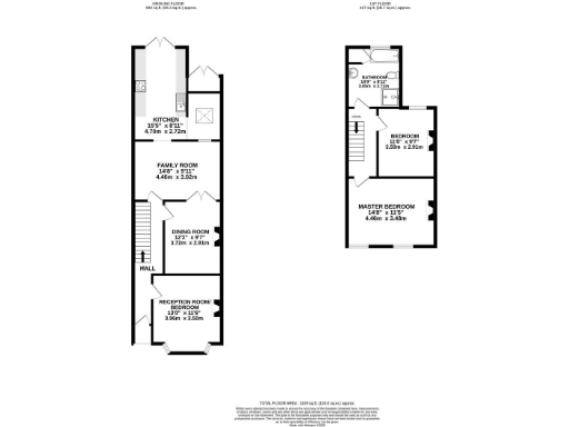
Victorian red-brick mid-terrace with bay window and high ceilings
Three bedrooms, flexible ground-floor layout (bay room used as bedroom)
Modern kitchen and mains gas boiler with radiators
Spacious four-piece family bathroom on first floor
Rear garden laid mainly to lawn with patio and gated access
Small plot and average overall size for period terrace
Double glazing present; install date unknown, may need future update
Freehold; established onward chain
A red-brick Victorian mid-terrace in the heart of Old Town, this three-bedroom house balances period character with practical modern comforts. High ceilings, bay window and original brickwork give the home a classic feel while a modern kitchen and mains gas central heating add everyday convenience. The ground floor offers flexible living — a bay-fronted reception currently used as a third bedroom, a formal dining room and a multi-use family room opening onto the rear garden.

Upstairs there are two double bedrooms and a spacious four-piece family bathroom, a relatively rare layout in terraces of this era. The rear garden is mainly lawn with a patio path and gated pedestrian access, and the property sits in a low-crime area with good local schools and fast broadband — appealing to families and professionals.

Practical points to note: the plot is small and the home is an average-sized terrace (approx. 1,109 sq ft). There is a single family bathroom and some period elements may need upkeep; double glazing is confirmed but install date is unknown. Sold freehold with an established onward chain, the house suits buyers seeking a character home with sensible modern upgrades close to town amenities.

Property Details

Brochure Descriptions

Image Descriptions

Floorplan Description

Rooms

Textual Property Features

Target Audience

AI Tags

Detected Visual Features

EPC Details

Nearby Schools

Nearest Bars And Restaurants

,,,,}

Nearest General Shops

,,}

Nearest Grocery shops

,,}

Nearest Supermarkets

,,}

Nearest Religious buildings

,,}

Nearest Medical buildings

,,,}

Nearest Leisure Facilities

,,,,}

Nearest Tourist attractions

,,}

Nearest Train stations

,,,,}

Nearest Bus stations and stops

,,,,}

Nearest Hotels

,,}

Tags

Local Market Stats

AirBnB Data

Similar Properties

Meta

High Res Images

Compatible Images

Low res Images

Thumbnails

Raw Images

High Res Floorplan Images

Compatible Floorplan Images

Low res Floorplan Images

FloorplanImages Thumbnail

Raw Floorplan Images