Light-filled one-bedroom near university, hospitals and local shops.
Allocated basement parking space included
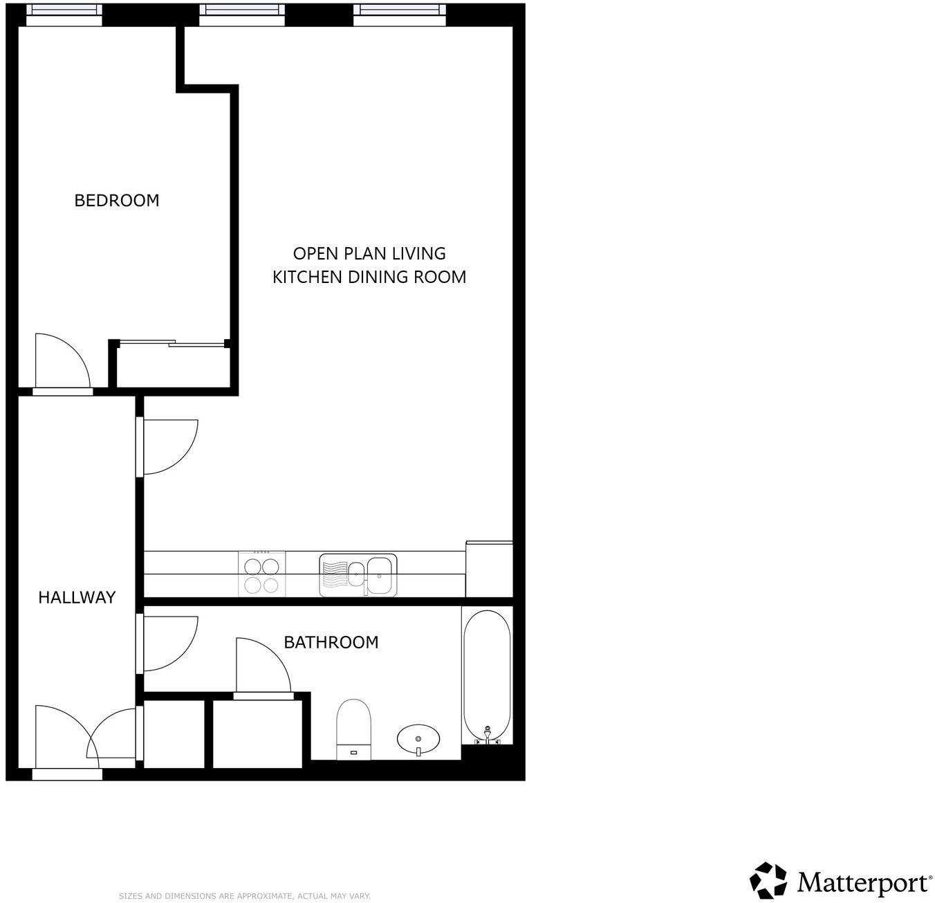
This bright first‑floor flat in a converted red‑brick building offers immediate move‑in appeal for a first‑time buyer. The large open‑plan living/kitchen/dining room benefits from very high ceilings, tall sash‑style windows and exposed brickwork, creating a spacious, airy feel despite a compact overall footprint. A southerly aspect gives good natural light through the day.
Practical features include an allocated basement parking space, built‑in mirrored wardrobe in the double bedroom, modern bathroom and double glazing throughout. The property sits on a long lease (114 years remaining) with an EPC rating of B, making it straightforward to mortgage and economical to run for its size.
Material considerations are clear: heating is provided by a communal scheme so you may have less individual control and pay communal heating charges. Service charges are around £2,900 per year with a small ground rent of £250, and the building is in an area with above‑average crime rates — factor in potential insurance and security costs. The flat is leasehold and part of a large conversion, so communal upkeep affects costs and timelines for works.
This apartment suits a first‑time buyer wanting character and light-filled living close to city amenities, university and hospitals, or an investor seeking a straightforward buy‑to‑let in a popular rental neighbourhood. The combination of period charm, high ceilings and allocated parking gives good rental and resale appeal, provided communal costs and location factors are accepted.
1 bedroom flat for sale in Dover Street, Leicester, LE1 — £85,000 • 1 bed • 1 bath • 418 ft²
1 bedroom flat for sale in Bradgate Street, LEICESTER, Leicestershire, LE4 — £135,000 • 1 bed • 1 bath • 551 ft²
1 bedroom flat for sale in Cowper Street, Knighton Fields, Leicester, LE2 — £130,000 • 1 bed • 1 bath • 700 ft²
1 bedroom ground floor flat for sale in Princess Road West, Leicester, LE1 — £130,000 • 1 bed • 1 bath • 366 ft²
1 bedroom house for sale in Watkin Road, Leicester, LE2 — £130,000 • 1 bed • 1 bath • 614 ft²
1 bedroom apartment for sale in Wheatsheaf Way, Knighton Fields, Leicester, LE2 — £105,000 • 1 bed • 1 bath • 517 ft²


































































