**Standout Features:**
- Prime high street location with strong foot traffic
- Large retail unit (2,253 sq ft) with existing tenant
- Off-street parking available
- Recent construction (2007 onwards) with double-glazed windows
- Renovation potential with rustic interior and exposed beams
**Potential Concerns:**
- Property reported above-average crime rates
- Dated interior requiring renovation
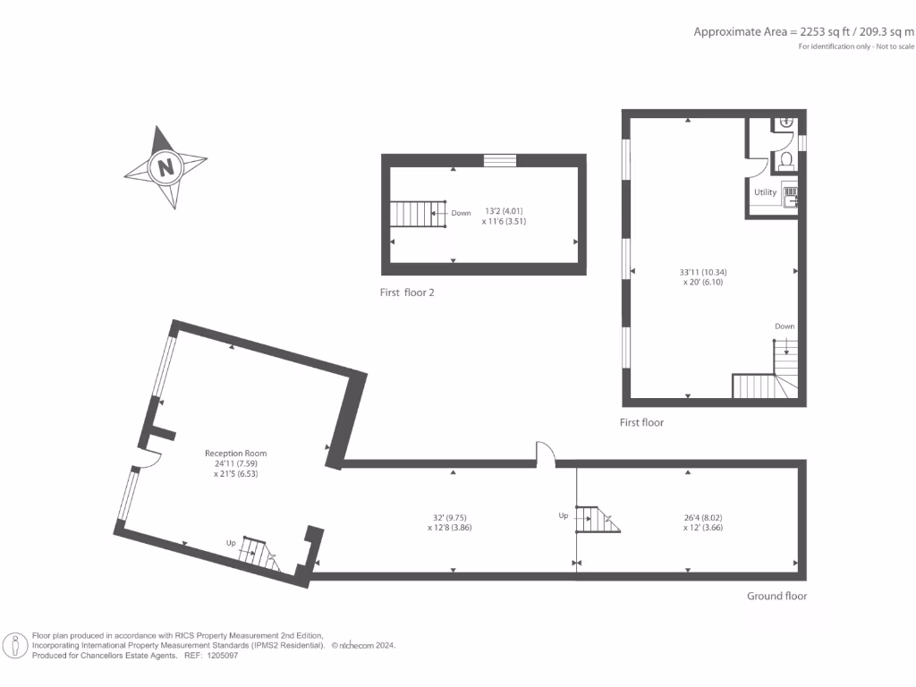
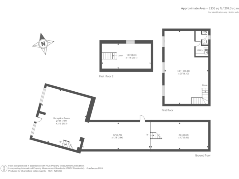
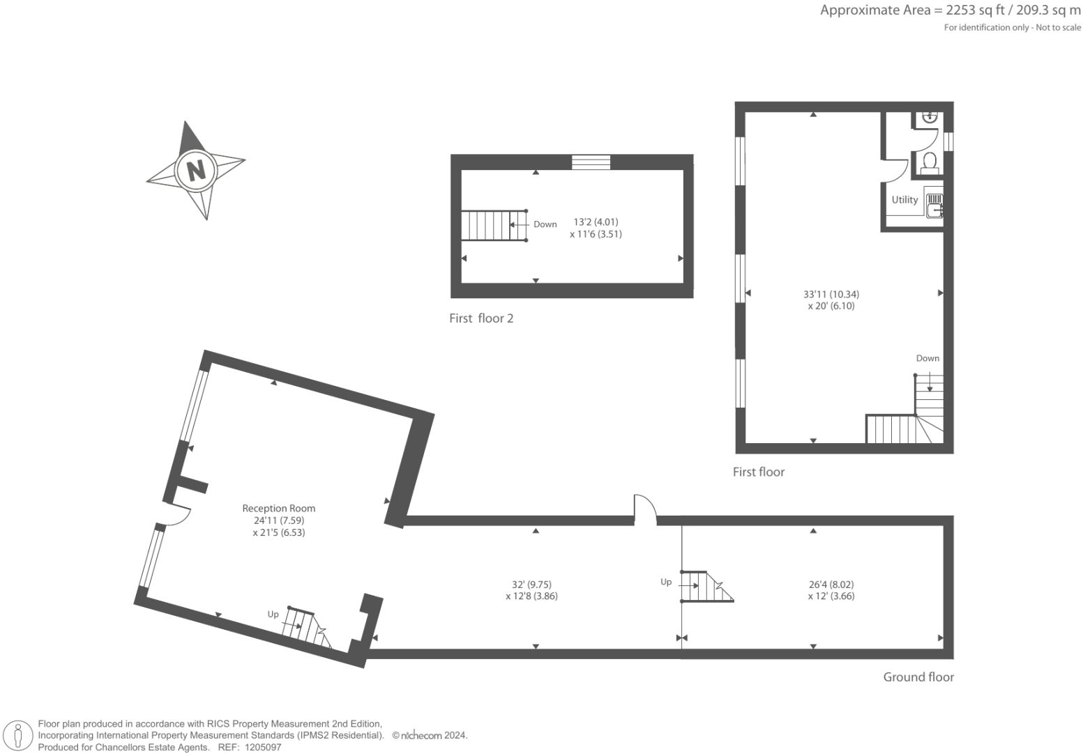
This sizeable retail unit in the heart of Witney presents an exceptional investment opportunity, especially attractive for savvy investors seeking a tenant-in-situ. At 2,253 square feet, the space features a charming traditional stone façade and large interiors with exposed beams, offering numerous commercial or multi-use conversion potentials. With off-street parking and excellent mobile and broadband connectivity, this property is equipped for modern business needs.
The surrounding area is vibrant and affluent, boasting numerous amenities, schools with strong Ofsted ratings, and a bustling community atmosphere. Despite a dated interior that calls for some renovation efforts, this property’s unique features and strategic location make it a valuable asset. Don’t miss out on this rare chance to secure a prime commercial space in a highly regarded area—opportunities like this don't last long!
Office for sale in 37 & 37a High Street, Witney, Oxfordshire OX28 6HP, OX28 — £575,000 • 1 bed • 1 bath • 2495 ft²
Office for sale in Church Green, Witney, OX28 — £340,000 • 1 bed • 1 bath • 2164 ft²
2 bedroom flat for sale in Priory Mill Lane, Witney, OX28 — £350,000 • 2 bed • 3 bath • 1596 ft²
Terraced house for sale in High Street, Witney, Oxfordshire, OX28 — £180,000 • 1 bed • 1 bath • 1550 ft²
1 bedroom apartment for sale in Woodford Way, Witney, OX28 — £160,000 • 1 bed • 1 bath • 500 ft²
Studio flat for sale in Glovers Walk, Witney, Oxfordshire, OX28 — £195,000 • 1 bed • 1 bath • 500 ft²










































