Ready-to-move starter home with EV charging and tandem parking included.
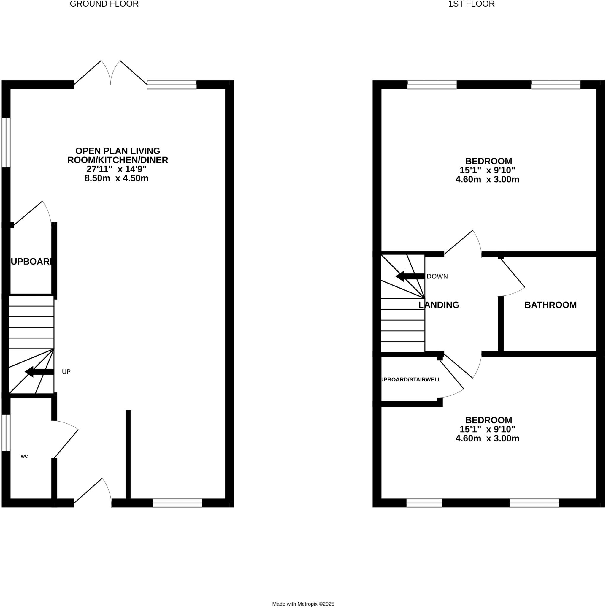
Open-plan living room/kitchen/diner for flexible ground-floor living
Enclosed rear garden with paved patio seating area
Driveway parking for two cars in tandem with EV charging point
Gas central heating with boiler and radiators
Approximately 709 sq ft; two bedrooms, one first-floor bathroom
Small plot size and modest overall footprint
Located in an area of higher deprivation; consider local context
Offered freehold and chain-free
Step into an affordable, low-maintenance two-bedroom home on a modern development in Hayle. The open-plan living room/kitchen/diner creates a bright, flexible ground floor space, while an enclosed rear garden and paved patio provide private outdoor space for summer evenings. Practical extras include gas central heating, an EV charging point and tandem driveway parking for two cars.
This property suits a first-time buyer or small household seeking a ready-to-move-in home with low running costs. The single first-floor bathroom and compact plot reflect the house's modest size, but the layout maximises usable space across approximately 709 sq ft. Broadband is fast and mobile signal is excellent, supporting home working and streaming.
Local amenities and good schools are within easy reach, and the house is offered freehold with no onward chain. Be aware the home sits in an area with higher social deprivation scores and the plot is small, so buyers wanting large gardens or extensive privacy should consider viewing to assess fit. Overall, this is a practical, well-presented starter home with modern conveniences and parking included.
2 bedroom semi-detached house for sale in Sparrow Close, Hayle, Cornwall, TR27 — £275,000 • 2 bed • 1 bath • 814 ft²
2 bedroom terraced house for sale in Green Parc Road, Hayle, Cornwall, TR27 — £240,000 • 2 bed • 1 bath • 732 ft²
2 bedroom semi-detached house for sale in Sparrow Close, Hayle- A well presented two bedroom semi-detached home, TR27 — £285,000 • 2 bed • 1 bath • 365 ft²
3 bedroom semi-detached house for sale in Crun Melyn Parc, Hayle, Cornwall, TR27 — £280,000 • 3 bed • 1 bath • 703 ft²
2 bedroom terraced house for sale in Nanpusker Close, Angarrack, Hayle, Cornwall, TR27 — £180,000 • 2 bed • 1 bath • 608 ft²
4 bedroom detached house for sale in Penmare Court, Hayle, Cornwall, TR27 4RD, TR27 — £375,000 • 4 bed • 2 bath • 1066 ft²


























































