CV32 6LL - House for sale in Castel Froma Care Home, 93 Lillington Roa…

View on Property Piper

House for sale in Castel Froma Care Home, 93 Lillington Road, Leamington Spa, CV32 6LL, CV32

Summary - 93, LILLINGTON ROAD, LEAMINGTON SPA CV32 6LL

1 bed 1 bath House

**Standout Features:**
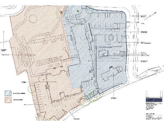
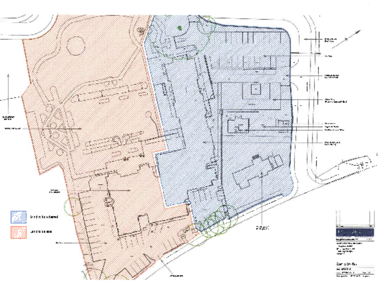
- Large 12,563 sq ft Victorian building set on a 1.5-acre plot
- Previously used as a care home; potential for residential development
- High-profile location in a prestigious neighborhood, 1 mile from Leamington Spa town center
- Extensive grounds with mature gardens, established borders, and off-street parking
- Not listed, offering flexibility for renovations or redevelopment
- Planning permission indicating suitability for residential projects

**Summary:**
Introducing a remarkable opportunity to acquire a historic Victorian building, formerly a care home, nestled on a sprawling 1.5-acre site just 1 mile from the vibrant center of Leamington Spa. This impressive structure spans over 12,563 sq ft and features enchanting architectural details which provide an airy and spacious layout ripe for transformation. With previous allocation for residential development within the Warwick District Local Plan, the potential for lucrative returns or creating a family estate is enormous.

The idyllic grounds feature well-maintained lawns surrounded by mature trees, promising a peaceful retreat in a highly desirable residential area. Families will appreciate the proximity to excellent local schools, including North Leamington School, recognized for its outstanding education. Although this unique property is chain-free and allows for bespoke modifications, interested parties are encouraged to act swiftly—opportunities like this in such a prime location are rare and highly sought after. Secure your future today with this property offering both tranquility and development potential.

Property Details

Brochure Descriptions

Image Descriptions

Floorplan Description

Rooms

Textual Property Features

Detected Visual Features

Nearby Schools

Nearest Bars And Restaurants

,,,,}

Nearest General Shops

,,}

Nearest Grocery shops

,,}

Nearest Supermarkets

,,}

Nearest Religious buildings

,,}

Nearest Medical buildings

,,,}

Nearest Airports

}

Nearest Leisure Facilities

,,,,}

Nearest Tourist attractions

,,}

Nearest Train stations

,,,,}

Nearest Bus stations and stops

,,,,}

Nearest Hotels

,,}

Tags

Local Market Stats

AirBnB Data

Similar Properties

Meta

High Res Images

Compatible Images

Low res Images

Thumbnails

Raw Images

High Res Floorplan Images

Compatible Floorplan Images

Low res Floorplan Images

FloorplanImages Thumbnail

Raw Floorplan Images