Ideal for growing families seeking sizeable period living close to transport and schools.
Walled, gated frontage with mono‑block driveway and substantial garage
Traditional sandstone villa with high ceilings and bay windows
Large kitchen, rear extension and sunlit conservatory
Master bedroom includes an en‑suite; fourth bedroom on top floor
Open fireplace in formal lounge and decorative period cornicing
Excellent mobile reception and fast broadband speeds on site
Council tax banding described as expensive — check costs
Local area classified as very deprived; tenure not provided, verify
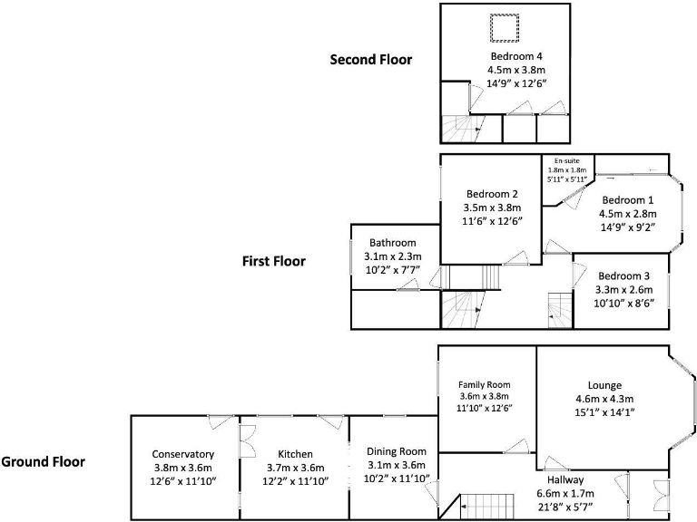
Set on one of Mount Vernon Avenue’s more desirable streets, this traditional sandstone villa offers generous living space across three levels, ideal for growing families who need room to spread out. Period features such as high ceilings, a bay-windowed lounge with an open fire and decorative cornicing sit alongside practical additions: a rear extension, conservatory, mono-block driveway and a substantial garage providing storage and parking.
The layout supports family life and entertaining, with multiple reception rooms, a large kitchen opening to the conservatory and a private rear garden. The master bedroom benefits from an en-suite while a fourth bedroom occupies the top floor, useful as a teenager’s room or guest suite. Good commuter links are close by — Blairhill station and main motorways are easily accessible.
Buyers should note material facts plainly: the property sits in a very deprived local area and council tax is high. Tenure details are not provided and should be confirmed by purchasers. Mobile signal and broadband speeds are excellent, but prospective buyers may want to budget for updating or long‑term maintenance typical of a period home.
Overall this is a substantial family home combining period character with practical, modern living spaces. It will suit buyers seeking space, good transport links and period detail, willing to verify tenure and consider any necessary updates.
4 bedroom detached house for sale in Hamilton Grove, Mount Vernon, G32 9QL, G32 — £360,000 • 4 bed • 3 bath • 578 ft²
4 bedroom semi-detached house for sale in Garfield Avenue, Bellshill, ML4 — £285,000 • 4 bed • 3 bath • 1305 ft²
4 bedroom maisonette for sale in Wood Street, Coatbridge, ML5 — £269,995 • 4 bed • 2 bath • 1462 ft²
4 bedroom semi-detached house for sale in 20 New Road, Glenboig, Coatbridge, North Lanarkshire, ML5 — £310,000 • 4 bed • 1 bath • 1235 ft²
2 bedroom end of terrace house for sale in Kirkinner Road, Mount Vernon, Glasgow, G32 — £169,000 • 2 bed • 1 bath • 721 ft²
3 bedroom semi-detached house for sale in Linlithgow Gardens, Glasgow, G32 — £230,000 • 3 bed • 1 bath • 1148 ft²














































































































































































