BN43 5WP - 4 bedroom cottage for sale in Connaught Avenue, Shoreham by…

View on Property Piper

4 bedroom cottage for sale in Connaught Avenue, Shoreham by Sea, BN43

Summary - 108 Connaught Avenue BN43 5WP

4 bed 2 bath Cottage

**Standout Features:**
- Unique Grade II listed thatched cottage with historical charm
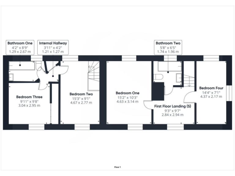
- Four spacious bedrooms and two bathrooms
- Three versatile reception rooms
- Mature, well-maintained garden
- Located within walking distance to Shoreham High Street
- Successful holiday let potential
- No ongoing chain with good school catchment area

**Summary:**
Discover this enchanting four-bedroom thatched cottage in the heart of Shoreham by Sea, brimming with character and historical allure. Built in the late 17th century, this Grade II listed property showcases charming period features, including exposed beams and original fireplaces, creating a warm and inviting atmosphere throughout. Ideal for family living or an astute investment, the versatile layout offers three generous reception spaces that could cater to gatherings or quiet evenings alike.

Nestled on level ground and just a stroll from the scenic River Adur and the South Downs, this delightful home also benefits from proximity to local amenities, with Shoreham High Street offering ample shopping and dining options within easy reach. The large garden, complete with mature shrubs and a timber summerhouse, provides a perfect retreat for relaxation or outdoor activities.

While the property has wonderful charm and potential for modern updates, it comes with the constraints of listed status, making renovations or extensions challenging. However, with good schools nearby and a low-crime area, this cottage is an exceptional opportunity for families or investors looking for a successful holiday let. Act quickly, as properties of this unique character are rarely available for long!

Property Details

Brochure Descriptions

Image Descriptions

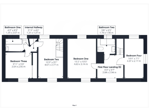
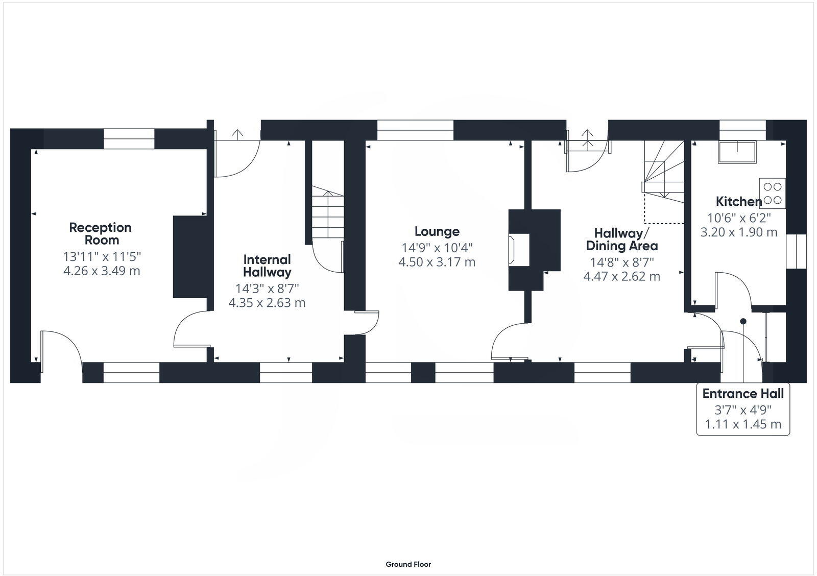
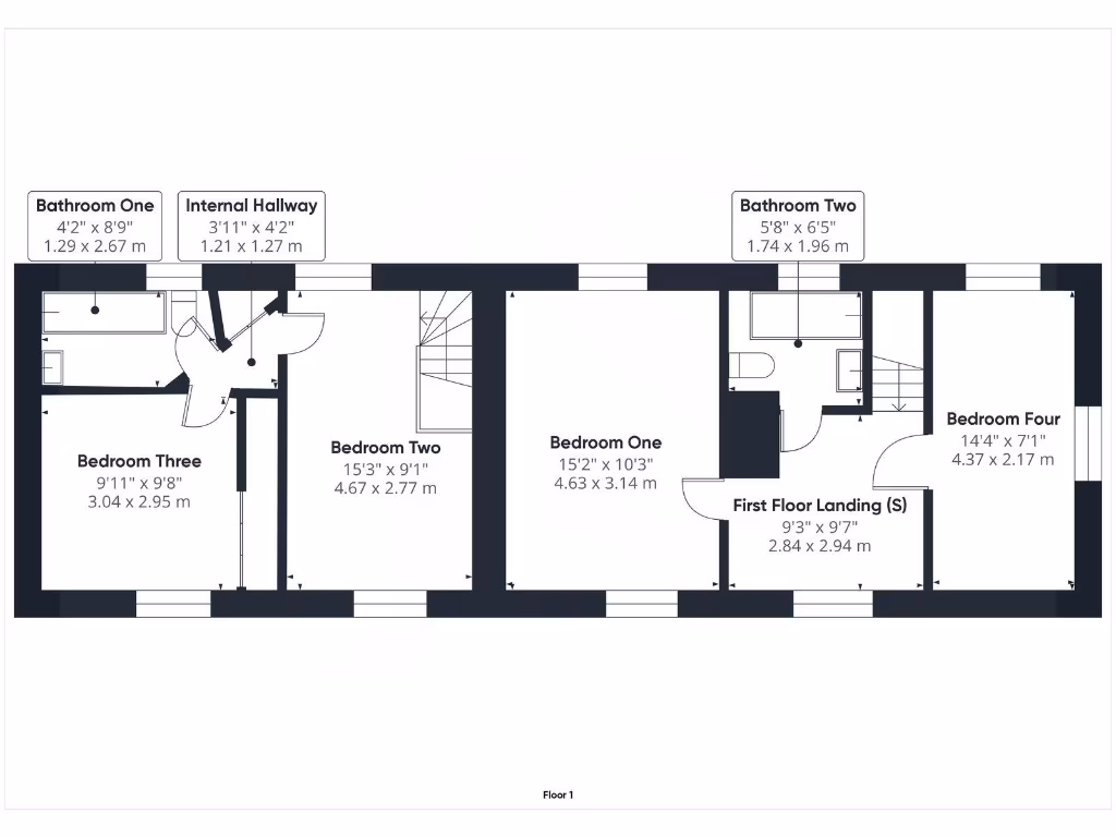
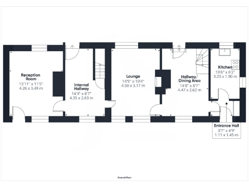
Floorplan Description

Rooms

Textual Property Features

Detected Visual Features

EPC Details

Nearby Schools

Nearest Bars And Restaurants

,,,,}

Nearest General Shops

,,}

Nearest Grocery shops

,,}

Nearest Supermarkets

,,}

Nearest Religious buildings

,,}

Nearest Medical buildings

,,,}

Nearest Leisure Facilities

,,,,}

Nearest Tourist attractions

,,}

Nearest Train stations

,,,,}

Nearest Bus stations and stops

,,,,}

Nearest Hotels

,,}

Tags

Local Market Stats

AirBnB Data

Similar Properties

Meta

High Res Images

Compatible Images

Low res Images

Thumbnails

Raw Images

High Res Floorplan Images

Compatible Floorplan Images

Low res Floorplan Images

FloorplanImages Thumbnail

Raw Floorplan Images