Quiet family living with a private west garden and renovation potential.
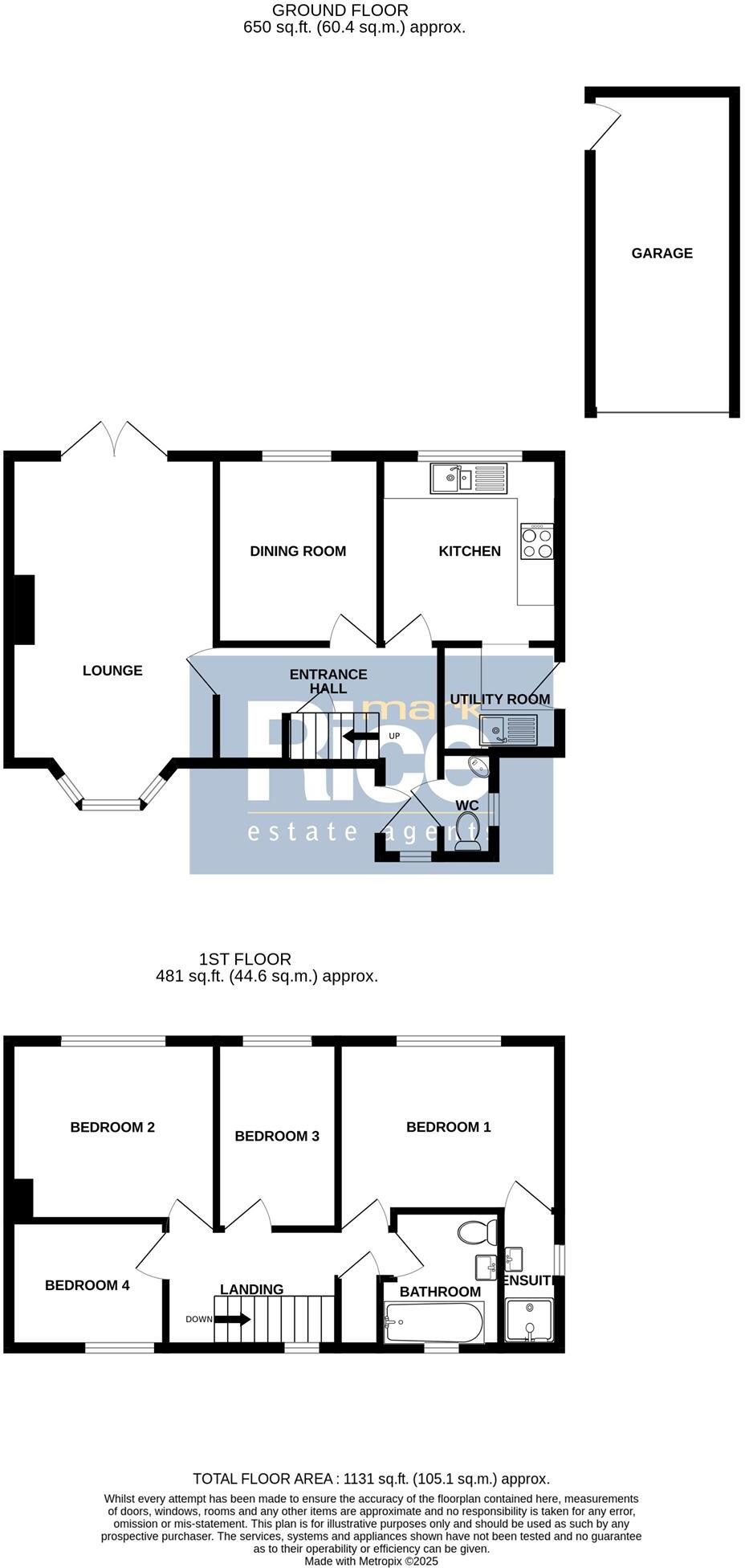
Four bedrooms with en-suite to master
No forward chain — quicker completion possible
West-facing fully enclosed rear garden with patio
Single garage plus tandem off-street parking
Oil central heating and double glazing present
1980s kitchen and general redecoration needed
Overall small footprint; efficient room layout
Council Tax Band C; village location with good broadband
This four-bedroom detached house sits on a corner plot in a quiet no-through road of Folkingham, offered with no onward chain. The layout suits family life with a lounge, separate dining room, breakfast kitchen, ground-floor cloakroom and a useful utility room. The master bedroom benefits from an en-suite; a family bathroom serves the other bedrooms.
The garden is fully enclosed and west-facing, providing afternoon and evening sun and a large patio for outdoor family use. Off-street tandem parking leads to a single garage with power and lighting. Local broadband and mobile signal are strong, and the village location gives easy access to nearby Sleaford and Bourne and local primary schools.
Practical aspects: the house has oil central heating and double glazing but clearly needs modernisation—particularly the 1980s kitchen and general decor. The property is suitable for a buyer wanting to update finishes and systems; oil heating may mean higher running costs compared with gas. The garage has a manual up-and-over door and there is a modest overall footprint, so space is efficient rather than expansive.
This home will suit a family or buyer seeking village living with good connectivity, a private garden and straightforward renovation potential. Council Tax Band C keeps ongoing charges moderate, and the no-chain situation supports a quicker move if required.
5 bedroom detached house for sale in Kime Close, Sleaford, NG34 — £410,000 • 5 bed • 3 bath • 1816 ft²
4 bedroom detached house for sale in Church Lane, Folkingham, Sleaford, NG34 — £270,000 • 4 bed • 2 bath • 2125 ft²
4 bedroom detached house for sale in Bourne Road, Folkingham, SLEAFORD, NG34 — £375,000 • 4 bed • 2 bath
4 bedroom detached house for sale in Malvern Close, Sleaford, NG34 — £335,000 • 4 bed • 1 bath • 1482 ft²
4 bedroom detached house for sale in North Fen Road, Helpringham, NG34 — £340,000 • 4 bed • 2 bath • 1673 ft²
3 bedroom detached house for sale in St. Andrews Close, Helpringham, Sleaford, NG34 — £360,000 • 3 bed • 1 bath • 1344 ft²






















































