**Standout Features:**
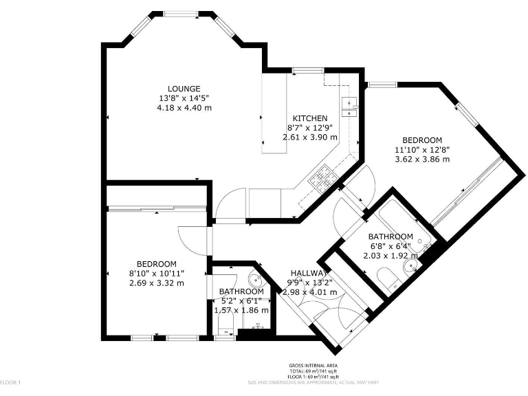
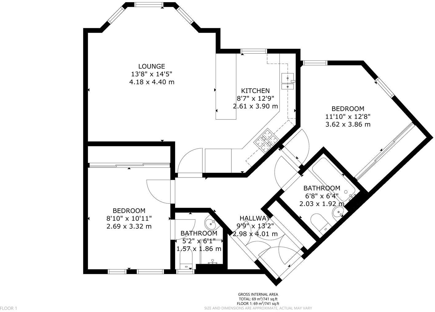
- **Spacious living**: Ground floor flat with two double bedrooms, including en-suite.
- **Well-presented**: Immaculate interiors throughout.
- **Comfort**: Fitted wardrobes, two bathrooms, and a spacious lounge.
- **Allocated parking**: Convenient off-street parking for one vehicle.
- **Tranquil setting**: Located in the semi-rural Roebuck Park Estate, close to country park walks.
- **Community feel**: Part of a small independent block for added privacy and community.
**Concerns:**
- **No garden or outdoor space**.
- **Slow broadband speeds** and average mobile signal.
Discover the charm of this beautifully presented ground floor flat nestled in the peaceful Roebuck Park Estate, Hailsham. Offering two generously sized double bedrooms, including a principal suite with en-suite, this home is perfect for first-time buyers, small families, or retirees seeking comfort and convenience. The thoughtful layout features a welcoming lounge and functional kitchen area, ensuring practical yet stylish living.
With allocated parking included, you’ll enjoy easy access to local amenities, bus routes, and serene country walks right outside your door. Although it lacks private outdoor space, the inviting community and low crime rates enhance the allure of this property. Don't miss your chance to secure this gem—ideal for those looking for a contemporary and cozy abode in a semi-rural setting!
2 bedroom flat for sale in Luscombe Avenue, Hellingly, BN27 — £235,000 • 2 bed • 1 bath • 792 ft²
2 bedroom apartment for sale in Luscombe Avenue, Hellingly, BN27 — £215,000 • 2 bed • 2 bath • 729 ft²
2 bedroom flat for sale in Bradley Drive, Hellingly, Hailsham, BN27 — £200,000 • 2 bed • 2 bath • 638 ft²
2 bedroom ground floor flat for sale in Summerfields Avenue, Hailsham BN27 3AW, BN27 — £180,000 • 2 bed • 1 bath • 517 ft²
1 bedroom apartment for sale in Garden Flat, Quinnell Drive, Hailsham, BN27 — £195,000 • 1 bed • 1 bath • 469 ft²
2 bedroom flat for sale in Western Road, Hailsham, BN27 — £195,000 • 2 bed • 1 bath • 724 ft²














































































