Secure, low-maintenance two-bedroom ground-floor apartment in Cheam village — parking and gated entry..
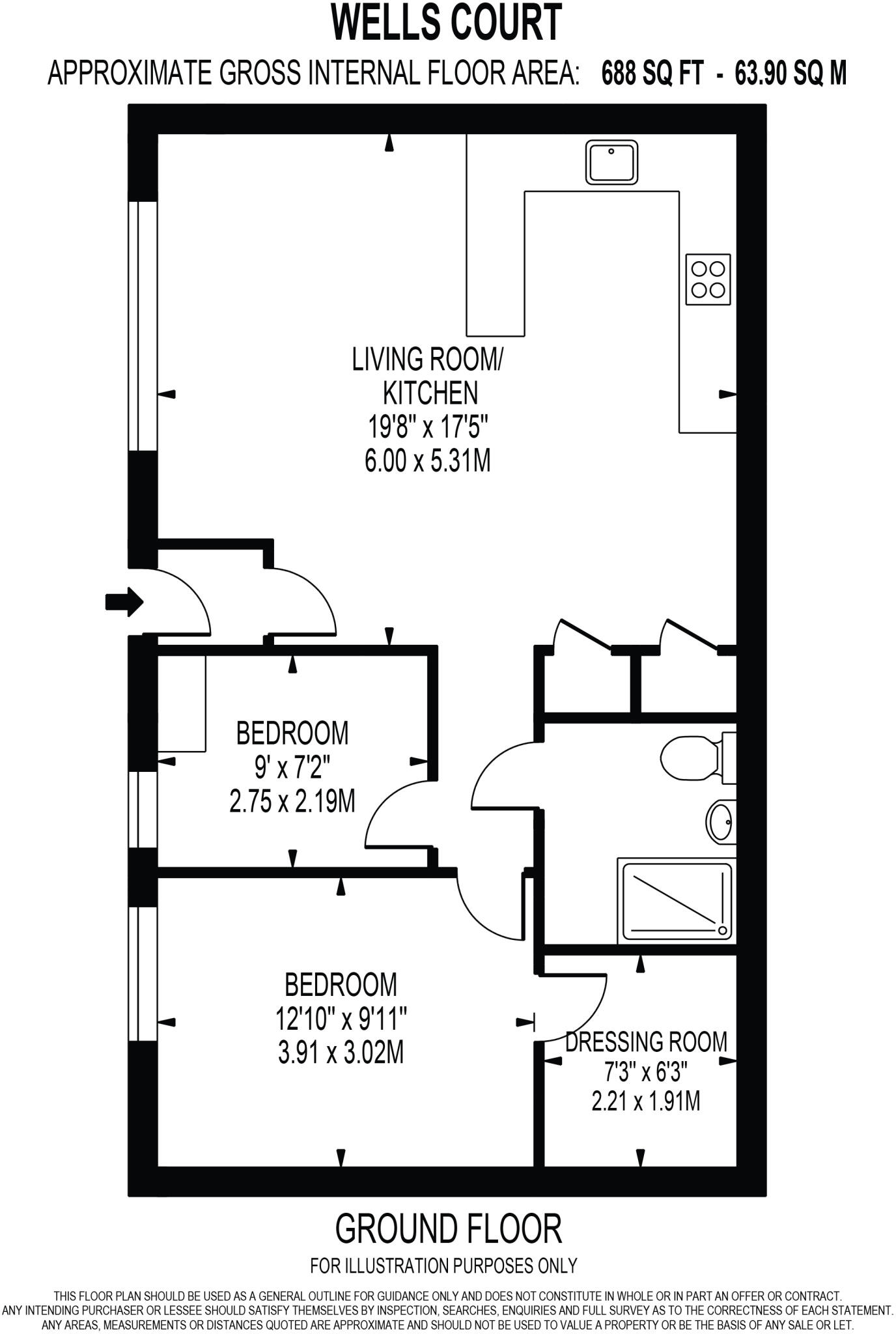
Ground-floor two-bedroom apartment, approx 688 sq ft
Open-plan living/kitchen — bright, well-proportioned main living space
Principal bedroom with dressing room; one bathroom
Secure gated development with private parking/garage
Leasehold — 107 years 6 months remaining
Service charge ≈ £2,000pa; ground rent £200pa
No private garden; communal outside space only
EPC C, mains gas heating, average broadband speeds
Set within a gated courtyard in Cheam village, this ground-floor two-bedroom apartment offers low-maintenance living with secure parking. The open-plan living/kitchen creates a bright, usable hub for everyday life and entertaining, while the principal bedroom benefits from a dedicated dressing room. At about 688 sq ft the layout is compact but well-proportioned for a couple, small family or buy-to-let investor.
Practical details are straightforward: double glazing, mains gas central heating with a boiler and radiators, and an EPC rating of C. The development is modern (circa 1996–2002) and neatly maintained with mature planting and communal paved parking/turning. Local amenities, good schools and transport links to Epsom and London make the location a strong convenience selling point.
Buyers should note material tenure and running costs: the property is leasehold with 107 years remaining, a maintenance charge of about £2,000 per year and a ground rent of £200 per year. There is no significant private garden indicated and outside space is communal, which may matter to buyers seeking private outdoor space.
This apartment suits purchasers wanting a secure, low-upkeep home close to village facilities or investors seeking a centrally located rental. The accommodation is ready to occupy but buyers who prioritise outdoor space or very long leases should consider whether the layout and tenure meet their long-term needs.
2 bedroom apartment for sale in Cheam Mansions, Station Way, Cheam, Sutton, SM3 — £375,000 • 2 bed • 1 bath • 921 ft²
2 bedroom apartment for sale in Whyte Mews, Anne Boleyn's Walk, Cheam, Sutton, SM3 — £550,000 • 2 bed • 1 bath • 915 ft²
2 bedroom apartment for sale in Malden Road, Cheam, SM3 — £500,000 • 2 bed • 2 bath • 861 ft²
2 bedroom apartment for sale in Malden Road, Cheam, SM3 — £525,000 • 2 bed • 2 bath • 1044 ft²
3 bedroom apartment for sale in Malden Road, Cheam - WITH PRIVATE GARDEN, SM3 — £635,000 • 3 bed • 2 bath • 1270 ft²
2 bedroom apartment for sale in Malden Road, Cheam - WITH PRIVATE BALCONY, SM3 — £515,000 • 2 bed • 2 bath • 893 ft²






























































