SR8 4NG - 3 bedroom terraced house for sale in South Terrace, Horden,…

View on Property Piper

3 bedroom terraced house for sale in South Terrace, Horden, Peterlee, Durham, SR8 4NG, SR8

Summary - 13 SOUTH TERRACE PETERLEE SR8 4NG

3 bed 1 bath Terraced

**Standout Features:**
- **Three spacious bedrooms:** Perfect for families or investors.
- **Current rental income:** Tenant in-situ paying £550 per month.
- **Freehold property:** Independence and long-term value.
- **Victorian charm:** Traditional brick façade with modern interior touches.
- **Convenient location:** Close to local amenities and easy access to the A19.

**Concerns:**
- **Property condition:** Requires maintenance and potential updates; specifics not detailed.
- **High crime rate:** Might affect appeal depending on buyer priorities.
- **Small plot size:** Limited outdoor space may not suit everyone.

This charming three-bedroom terraced home on South Terrace in Horden offers a unique opportunity for investors or first-time buyers looking for a rental-ready property. With a secure tenant in place paying £550 per month, the property promises steady rental income. The home features a traditional Victorian brick façade, modern interiors, and ample living space across five rooms, including a welcoming lounge, dining room, and functional kitchen.

Conveniently located just a mile from the bustling center of Peterlee, you will have easy access to shops, restaurants, and major transportation routes for effortless commuting. While the property does exhibit potential maintenance needs and is situated in an area of high crime, its freehold status and rental potential make it an attractive investment.

Don’t miss this chance to own a piece of real estate in a growing area—inquire today and envision the possibilities this property holds for your future!

Property Details

Image Descriptions

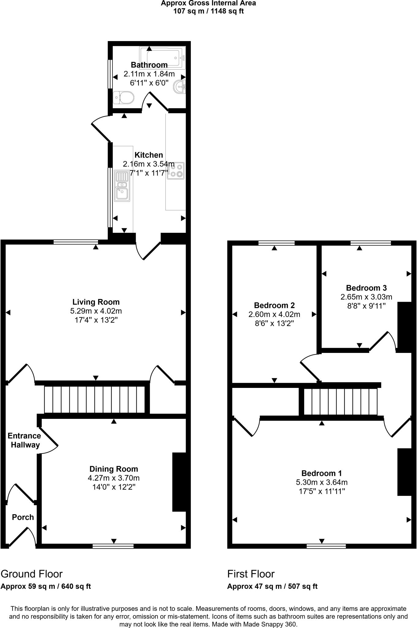
Floorplan Description

Rooms

Textual Property Features

Detected Visual Features

EPC Details

Nearby Schools

Nearest Bars And Restaurants

,,,,}

Nearest General Shops

,,}

Nearest Grocery shops

,,}

Nearest Supermarkets

,,}

Nearest Religious buildings

,,}

Nearest Medical buildings

,,,}

Nearest Leisure Facilities

,,,,}

Nearest Tourist attractions

,,}

Nearest Train stations

,,,,}

Nearest Bus stations and stops

,,,,}

Nearest Hotels

,,}

Tags

Local Market Stats

Similar Properties

Meta

High Res Images

Compatible Images

Low res Images

Thumbnails

Raw Images

High Res Floorplan Images

Compatible Floorplan Images

Low res Floorplan Images

FloorplanImages Thumbnail

Raw Floorplan Images