**Standout Features:**
- Spacious three-bedroom semi-detached property.
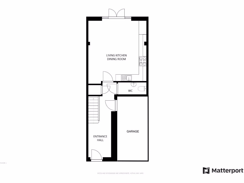
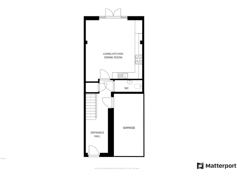
- Modern open-plan living kitchen/dining area with abundant natural light.
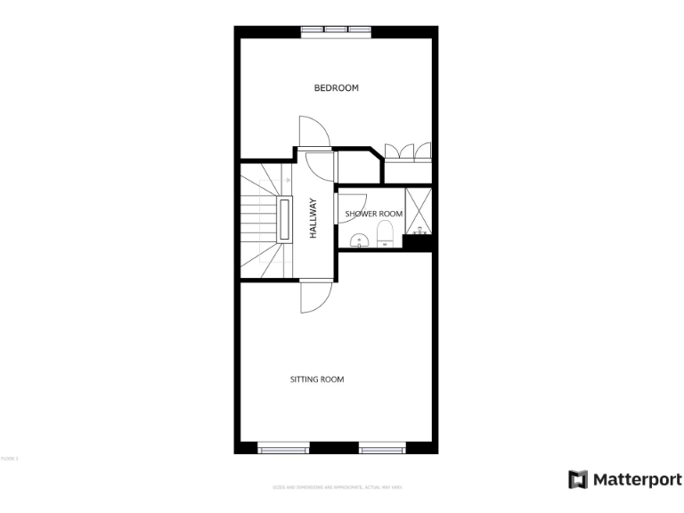
- Master bedroom with en-suite; two additional double bedrooms.
- Ground floor WC and family bathroom on the second floor.
- Driveway and garage offering potential for conversion.
- Private rear garden and convenient location near local amenities and parks.
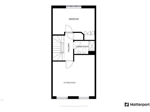
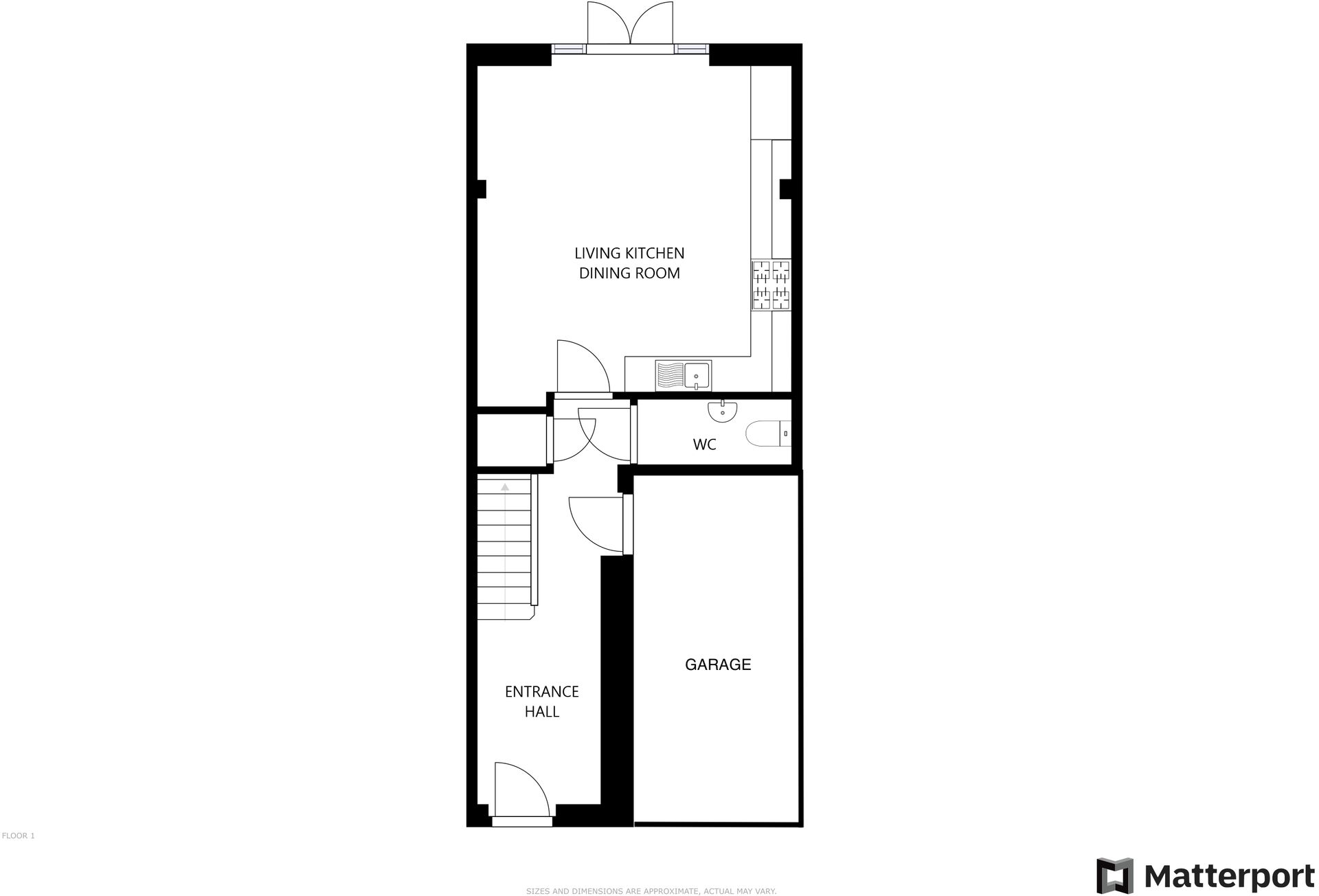
**Concise Summary:**
Nestled in a quiet Stoneygate development, this large three-bedroom semi-detached property is perfect for families looking for a modern, stylish home. The ground floor boasts a bright open-plan living kitchen/dining area, ideal for entertaining, enhanced by double glazed French doors and skylights flooding the space with natural light. Upstairs, enjoy a spacious sitting room, three generously sized bedrooms—including a principal bedroom with an en-suite—and additional shower facilities, making morning routines seamless for everyone.
Outside, the driveway and garage provide ample parking while offering the potential for further accommodation with a possible conversion. The property features a manageable rear garden—a perfect space for family enjoyment. Located conveniently near Leicester City Centre, top-rated schools, and vibrant shopping in Stoneygate and Clarendon Park, this home represents a wise investment for first-time buyers or growing families.
It's a must-see property that blends contemporary charm with functional living—schedule your viewing today to explore its possibilities!
3 bedroom terraced house for sale in Scholars Walk, Leicester, LE2 — £425,000 • 3 bed • 3 bath • 1238 ft²
3 bedroom semi-detached house for sale in Corbridge Close, Leicester, LE4 — £300,000 • 3 bed • 2 bath • 684 ft²
4 bedroom detached house for sale in Dovedale Road, Stoneygate, Leicester, LE2 — £465,000 • 4 bed • 1 bath • 1033 ft²
3 bedroom semi-detached house for sale in Oakfield Road, Stoneygate, Leicester, LE2 — £350,000 • 3 bed • 2 bath • 979 ft²
5 bedroom detached house for sale in Dovedale Road, Stoneygate, LE2 — £750,000 • 5 bed • 3 bath • 2228 ft²
3 bedroom detached house for sale in Elmfield Avenue, Leicester, LE2 — £439,000 • 3 bed • 2 bath • 1173 ft²










































































































