**Standout Features:**
- Versatile three-storey terraced house with commercial premises.
- Prime location just meters from the beach and shopping streets.
- Recently renovated to an excellent standard with original features and high-end fittings.
- Freehold status offering unique investment potential or living space.
- Potential for conversion of upper floors into residential units (subject to consents).
- Low council tax and excellent mobile signal.
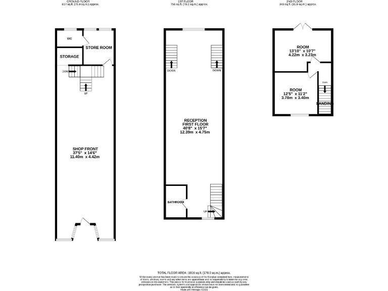
This impressive terraced house on London Road, St. Leonards-On-Sea, presents a rare opportunity for savvy investors or first-time buyers looking for a unique property with dual potential. The well-maintained commercial space on the ground floor showcases a large bright storefront with original wooden flooring, exposed brick walls, and large windows inviting natural light. The grand staircase leads to a spacious first floor reception area featuring a stylish kitchen and a luxurious bathroom, while the supplementary upper two floors offer ample room for conversion into residential living, enhancing its investment appeal.
Perfectly positioned in a bustling area just moments from local amenities—including shops, cafes, and healthcare services—this property balances charm and practicality. Although the area registers higher crime rates, the property’s proximity to the beach and vibrant community atmosphere adds to its allure. With such a well-presented, versatile structure and potential for future rental income, opportunities like this are rare in the desirable St. Leonards locale. Don't miss out—consider envisioning your own unique space in this prime location today!
2 bedroom terraced house for sale in London Road, St. Leonards-On-Sea, TN37 — £500,000 • 2 bed • 1 bath • 1916 ft²
3 bedroom terraced house for sale in Shepherd Street, St. Leonards-On-Sea, TN38 — £500,000 • 3 bed • 1 bath • 1161 ft²
3 bedroom terraced house for sale in White Rock, Hastings, TN34 — £595,000 • 3 bed • 2 bath • 2370 ft²
3 bedroom terraced house for sale in Queens Road, Hastings, TN34 — £595,000 • 3 bed • 2 bath • 2550 ft²
4 bedroom terraced house for sale in Mercatoria, St. Leonards-on-sea, TN38 0EB, TN38 — £450,000 • 4 bed • 3 bath • 1148 ft²
2 bedroom apartment for sale in Grand Parade, St Leonards-on-sea, TN38 — £425,000 • 2 bed • 2 bath • 1625 ft²


































































































