Private gated plot with generous living space and versatile layout for families.
Three double bedrooms, including a ground-floor bedroom
Large dining kitchen with granite worktops by Adam Tebbs
Conservatory with underfloor heating, lots of natural light
Gated block-paved driveway and larger-than-average detached garage
Private, enclosed rear garden with mature borders and lawn
Two bathrooms: ground-floor bathroom and first-floor shower room
Freehold, chain-free sale; constructed c.1996–2002
Council Tax Band E (above average)
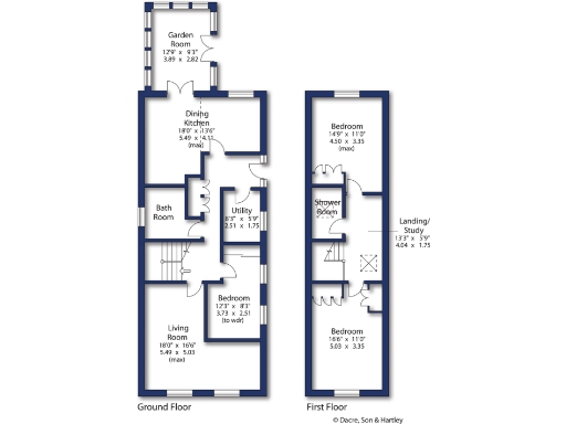
This substantial three-double-bedroom detached bungalow in the heart of Menston offers flexible family living over two levels, ideal for households needing ground-floor accommodation with extra upstairs space. The well-planned layout centres on a large dining kitchen by Adam Tebbs with granite worktops, a separate utility and a bright conservatory with underfloor heating that connects directly to the private rear garden.
The ground floor includes a double bedroom and a full bathroom, while two further double bedrooms and a shower room sit on the first floor — the landing with Velux windows can be used as a study or play area. Oak flooring, fitted wardrobes and quality joinery throughout give the house a well-maintained, modern feel; double glazing and gas central heating are installed.
Outside, the gated block-paved driveway provides secure parking for several cars and leads to a larger-than-average detached garage. The enclosed rear garden is private, lawned and bordered by mature shrubs and stone walling, offering safe outdoor space for children and pets.
Practical points to note: the home is chain-free and freehold, constructed around 1996–2002, with Council Tax at Band E. While the property provides convenient single-storey options, two bedrooms and a shower room occupy the first floor, so buyers seeking exclusively single-level living should check the layout in person.
3 bedroom bungalow for sale in Ellar Gardens, Menston, Ilkley, West Yorkshire, LS29 — £675,000 • 3 bed • 2 bath • 1173 ft²
2 bedroom bungalow for sale in Derry Hill Gardens, Menston, Ilkley, West Yorkshire, LS29 — £315,000 • 2 bed • 1 bath • 797 ft²
2 bedroom semi-detached bungalow for sale in Derry Hill Gardens, Menston, Ilkley, LS29 — £325,000 • 2 bed • 1 bath • 920 ft²
2 bedroom semi-detached bungalow for sale in Derry Hill Gardens, Menston, LS29 — £375,000 • 2 bed • 1 bath • 797 ft²
4 bedroom detached house for sale in Wentworth Close, Menston, LS29 — £700,000 • 4 bed • 2 bath • 1856 ft²
4 bedroom detached house for sale in Bradford Road, Menston, Ilkley, West Yorkshire, LS29 — £450,000 • 4 bed • 1 bath • 957 ft²


















































































































