Bright, commuter-friendly coach house close to St Ives town and busway.
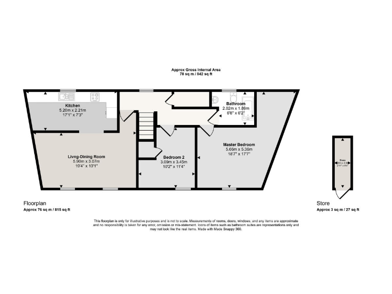
842 sq ft coach house with two double bedrooms
Set over 842 sq ft, this well-presented two double bedroom coach house sits on a popular St Ives estate with countryside on the doorstep. The first-floor living/dining space and good-sized bedrooms give a flexible layout suited to first-time buyers or couples wanting low-maintenance living with convenient commuter links to Cambridge and Huntingdon.
Practical positives include two allocated off-street parking spaces, freehold tenure, fast broadband and excellent mobile signal. The property is a short walk through a nature reserve to the town centre and close to Guided Bus stops for direct links to Cambridge.
Be clear on limitations: the plot is small with no substantial private garden, there is a single bathroom, and the property is mid-terrace. Local recorded crime is above average for the area. Buyers should verify measurements and have services and appliances checked as part of their due diligence.
Offered with no forward chain and a guide price of £260,000–£270,000, this coach house presents an attractive, move-in-ready option for first-time purchasers or professionals seeking easy commuting and a town-with-nature setting.
2 bedroom apartment for sale in Clark Drive, St. Ives, Cambridgeshire, PE27 6AD, PE27 — £180,000 • 2 bed • 1 bath • 785 ft²
3 bedroom town house for sale in Garner Drive, St. Ives, PE27 — £350,000 • 3 bed • 2 bath • 1200 ft²
2 bedroom apartment for sale in Garner Drive, St. Ives, Cambridgeshire, PE27 — £250,000 • 2 bed • 2 bath • 1250 ft²
2 bedroom coach house for sale in Parkway, Hinchingbrooke Park, Huntingdon, PE29 — £215,000 • 2 bed • 1 bath • 749 ft²
1 bedroom apartment for sale in Knights Way, St. Ives, PE27 — £190,000 • 1 bed • 1 bath • 509 ft²
3 bedroom end of terrace house for sale in Dunnock Way, St. Ives, Cambridgeshire, PE27 — £325,000 • 3 bed • 2 bath • 866 ft²






















































































































































