Modern family townhouse with garage, parking and excellent storage near top schools.
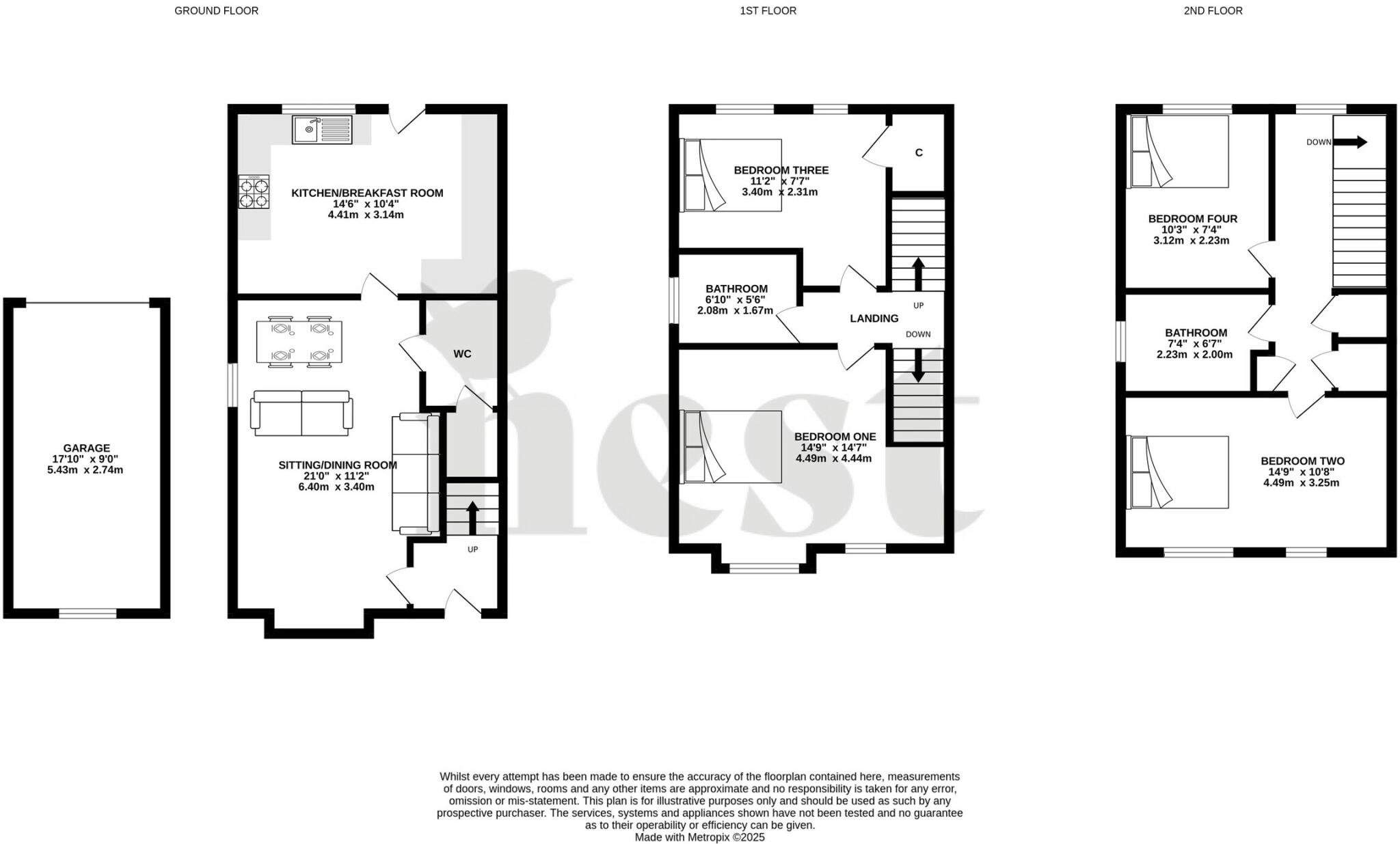
Four double bedrooms across three floors
Set on the edge of Yeovil, this modern three-storey townhouse offers practical family living across four double bedrooms and two bathrooms. The ground floor flows from a bright bay-fronted living room into a dedicated dining area and contemporary kitchen that opens to an enclosed rear garden — ideal for children and low-maintenance summer gatherings.
Storage is a standout: three large cupboards on the top landing plus built-in wardrobes and useful utility space in the kitchen. The property benefits from gas central heating, double glazing and a single garage with an allocated parking space directly outside, providing secure parking and extra storage.
There are a few practical points to note. The plot is modest in size and the garden is small, so buyers seeking extensive outdoor space should consider this. The garage sits beneath a neighbouring coach-house and is on a separate 999-year lease (commenced January 2015) — a legal detail buyers should review.
Positioned in comfortable suburbia with very low local crime, fast broadband and strong mobile signal, the home sits close to highly rated primary and secondary schools, making it well suited to growing families. Overall, it’s a well-presented, sensible family home offering space, storage and convenient parking on the edge of town.
4 bedroom town house for sale in Southfield Drive, Yeovil, BA21 — £450,000 • 4 bed • 3 bath • 1523 ft²
3 bedroom terraced house for sale in Tristram Close, Yeovil, Somerset, BA21 — £220,000 • 3 bed • 2 bath • 766 ft²
4 bedroom house for sale in Merevale Way, Yeovil, BA21 — £325,000 • 4 bed • 2 bath • 960 ft²
4 bedroom detached house for sale in Coppice Close, Yeovil, BA20 — £440,000 • 4 bed • 2 bath • 1040 ft²
4 bedroom terraced house for sale in Parish Mews, Yeovil, Somerset, BA21 — £290,000 • 4 bed • 2 bath • 506 ft²
2 bedroom semi-detached house for sale in Monks Dale, Yeovil, BA21 — £200,000 • 2 bed • 1 bath • 682 ft²






















































































