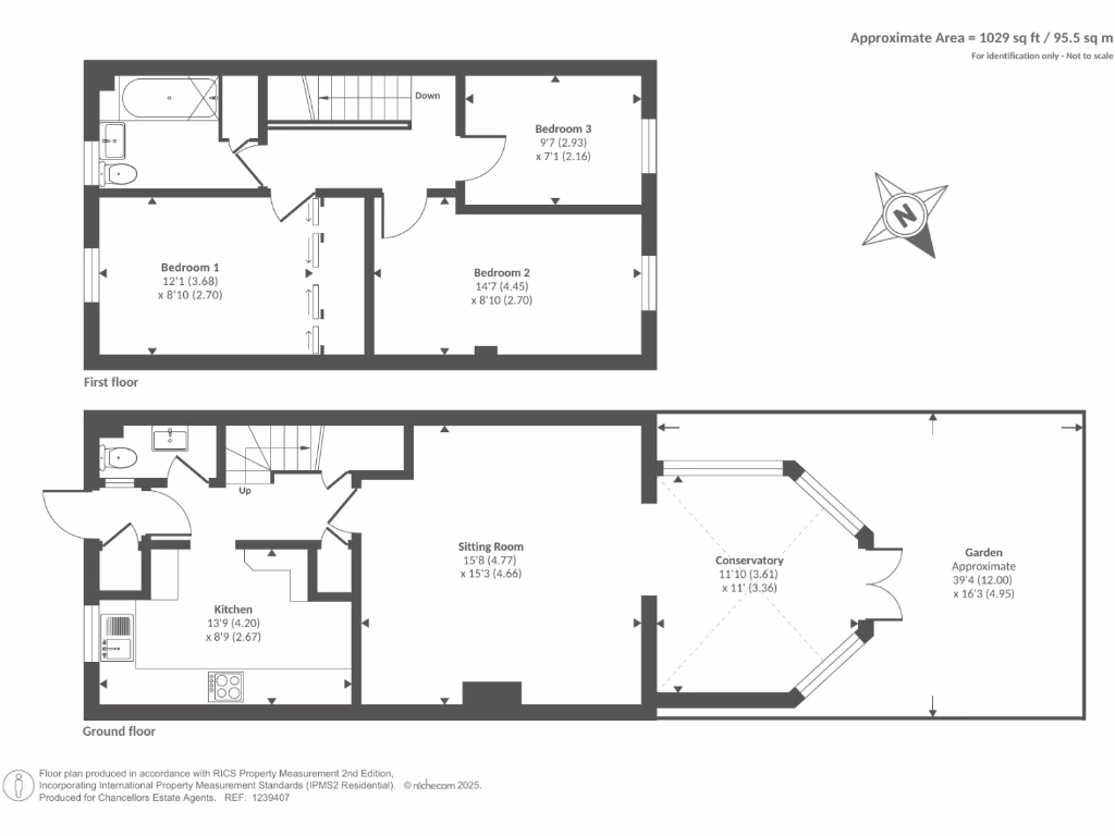
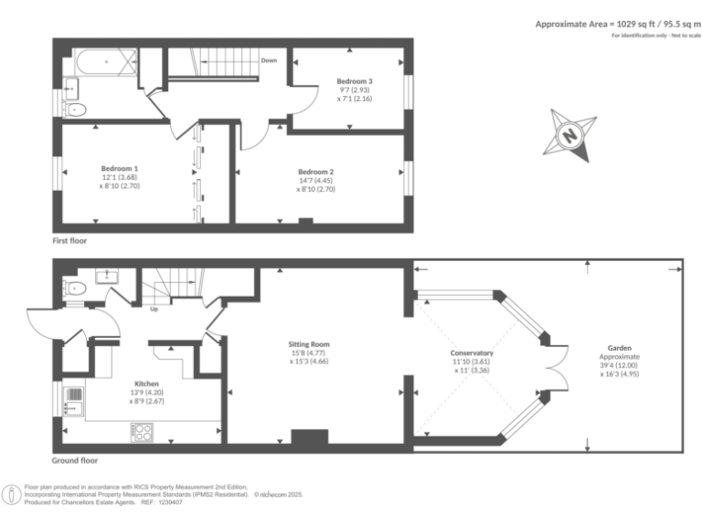
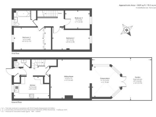
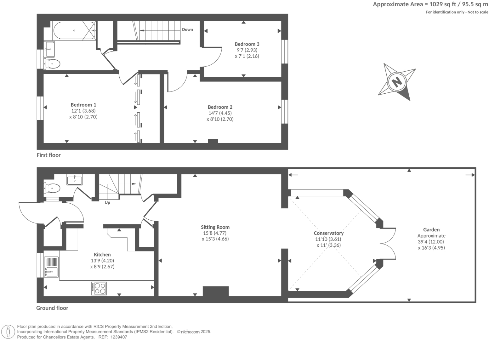
Practical three-bedroom terrace with driveway, conservatory and easy access to top local schools..
- Three bedrooms, sitting/dining room and conservatory
- Off-street driveway parking and low-maintenance rear garden
- Single family bathroom plus ground-floor WC
- Built 1976–1982; standard ceiling heights
- Double glazing installed before 2002 (older units)
- Partial cavity wall insulation assumed, may need upgrading
- Small plot limits extension or large garden options
- Freehold; no flood risk, council tax affordable
This three-bedroom terraced home in Aylesbury offers practical family living on a compact plot. The layout includes a sitting/dining room, conservatory, ground-floor WC and a family bathroom upstairs, with off-street driveway parking and a low-maintenance rear garden. The property is freehold and sits in a settled residential area with good transport links and local amenities.
The house was built in the late 1970s–early 1980s and benefits from mains gas central heating and double glazing fitted before 2002. Nearby schooling ranges from good-rated primary schools to two outstanding grammar schools, making the location well suited to families prioritising education. Broadband speeds are fast and mobile signal is excellent.
Buyers should note the plot is small and the property is average in overall size, which suits practical family use but limits extensive garden or extension possibilities. Wall insulation is partial (assumed) and glazing is older — there may be opportunities to improve energy performance. There is a single family bathroom plus a ground-floor WC, which works for many households but could feel tight at peak times.
Priced for the local market, this terrace will suit first-time buyers or families seeking a functional, low-maintenance home near good schools and local services, with scope for modest improvement to boost comfort and efficiency.
3 bedroom terraced house for sale in Argyle Avenue, Aylesbury, HP19 — £290,000 • 3 bed • 1 bath • 665 ft²
3 bedroom terraced house for sale in Quarrendon Avenue, Meadowcroft, Aylesbury, HP19 — £340,000 • 3 bed • 2 bath • 980 ft²
3 bedroom house for sale in Court Close, Aylesbury, Buckinghamshire, HP21 — £307,500 • 3 bed • 1 bath • 894 ft²
3 bedroom terraced house for sale in Cherwell Road, Aylesbury, HP21 — £375,000 • 3 bed • 1 bath • 948 ft²
3 bedroom terraced house for sale in Lay Road, Quarrendon, Aylesbury, HP19 — £320,000 • 3 bed • 1 bath • 768 ft²
3 bedroom terraced house for sale in Albert Street, Aylesbury, Buckinghamshire, HP20 — £315,000 • 3 bed • 1 bath • 881 ft²






















































































