Renovated ground-floor two-bed in Shanklin with communal gardens and Lifetime Lease option.
Ground-floor Victorian conversion flat with two bedrooms and en suite
Newly renovated interior; luxury kitchen and open-plan living/dining
Long lease (~966 years) and below-average service charge (£960 pa)
Communal gardens and off-street parking for residents
Suitable as a retirement home; Homewise Lifetime Lease option for over‑60s
Heating via electric storage heaters — potentially higher running costs
Leasehold tenure — buyer must verify lease/service details and permissions
Not at flood risk; excellent mobile signal and fast broadband
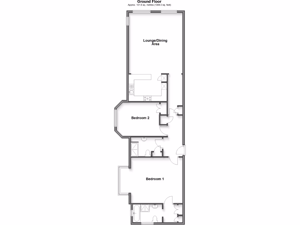
This ground-floor two-bedroom apartment sits in a handsome Victorian conversion on Victoria Avenue, just a short walk from Shanklin Old Village, shops and transport links. The interior has been newly renovated to a contemporary standard: a large open-plan living/dining room with a luxury kitchen, principal bedroom with dressing area and en suite, and a second double bedroom. Sunny aspect and double glazing give bright, low-maintenance living.
The property is offered as a leasehold retirement home and is suitable for those seeking an easier, low-upkeep lifestyle in a communal setting. Residents enjoy well-kept communal gardens and off-street parking. The building’s long lease (circa 966 years) and below-average service charge (£960) provide practical ownership advantages for a retirement purchase.
For buyers aged 60 and over there is the option to secure this apartment through the Homewise Home for Life Lifetime Lease plan. The advertised Lifetime Lease guide price is £178,500 (typical saving cited around 33% versus market value £270,000), depending on age and circumstances. Alternatively the property can be purchased at full market value by other buyers; eligibility details should be confirmed early.
Important practical points: heating is by electric storage heaters, which can increase running costs compared with gas. The property is leasehold so buyers must verify terms, service charge and any communal rules. Overall, this is a well-presented retirement flat with modern fittings and communal facilities, suited to those wanting a comfortable, low-maintenance home near Shanklin town and seafront amenities.
2 bedroom ground floor flat for sale in Queens Road, Shanklin, Isle of Wight, PO37 — £138,500 • 2 bed • 2 bath • 700 ft²
2 bedroom ground floor flat for sale in Victoria Avenue, Shanklin, Isle of Wight, PO37 — £270,000 • 2 bed • 2 bath • 762 ft²
1 bedroom ground floor flat for sale in Spring Gardens, Shanklin, Isle of Wight, PO37 — £50,000 • 1 bed • 1 bath • 366 ft²
2 bedroom retirement property for sale in Sandown Road, Shanklin, PO37 — £115,000 • 2 bed • 1 bath • 829 ft²
2 bedroom flat for sale in Victoria Avenue, Shanklin, PO37 — £167,495 • 2 bed • 1 bath • 754 ft²
2 bedroom apartment for sale in Howard Road, Shanklin, Isle of Wight, PO37 — £152,500 • 2 bed • 1 bath • 840 ft²














































