Modern five-bedroom detached home with solar panels and NHBC warranty, under 9 miles to Edinburgh.
5 generous bedrooms across 1,817 sq.ft
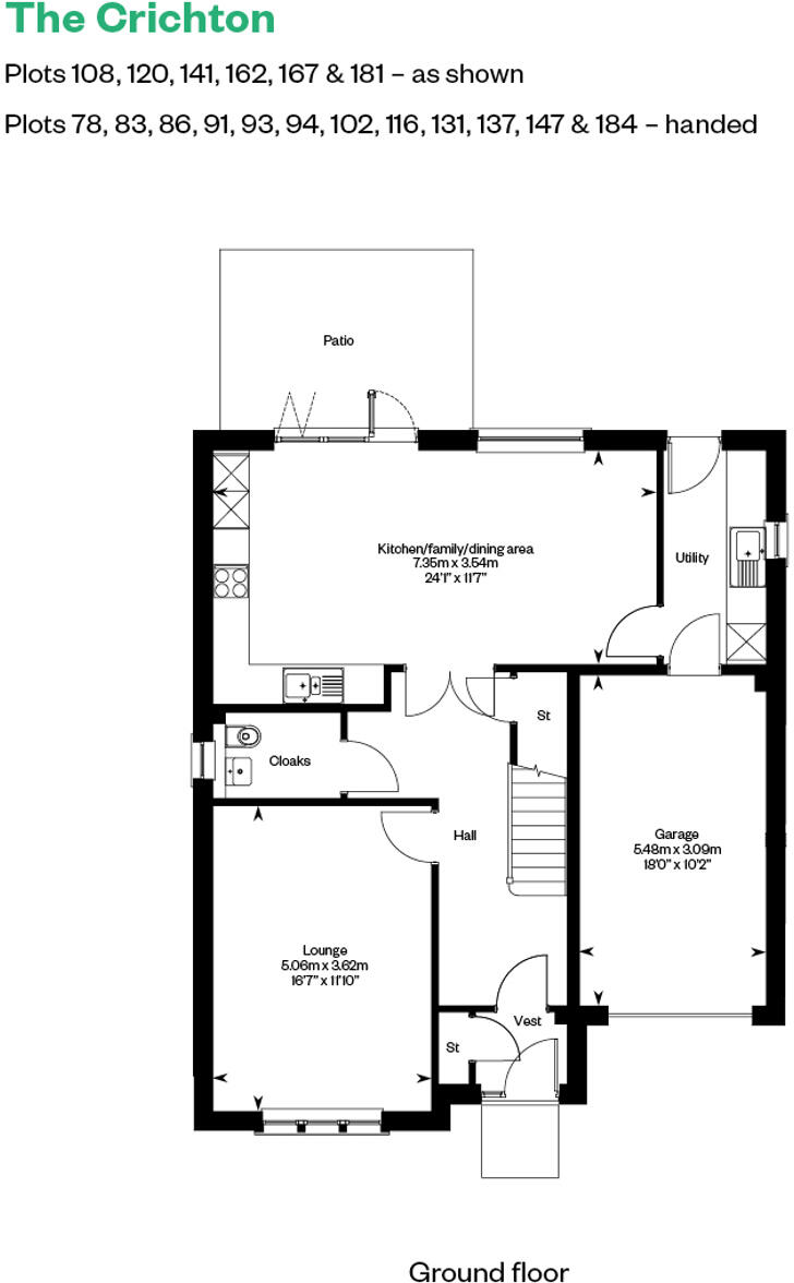
open-plan kitchen/family/dining with bi-fold doors
german studio kitchen with Siemens appliances
solar panels and EV charging provision
integral single garage, private driveway, 1.8m fence
10-year NHBC warranty plus after-sales support
Council Tax Band G — described as quite expensive
Annual management fee £179.84 plus £200 float fee, area deprivation noted
Step into a spacious, modern five-bedroom detached home at Belwood Oaks, designed for family life with room to grow. The Crichton offers 1,817 sq.ft. of living space, a large open-plan kitchen/family/dining area with bi-fold doors to the rear garden, and a separate utility and integral single garage. High-spec finishes include a German studio-designed kitchen with Siemens appliances, 1.8m fencing, solar panels and EV charging provision.
This new-build comes with practical assurances: a 10-year NHBC warranty, two-year after-sales support, and a 24-hour emergency response service. The development sits to the tree-lined north of Penicuik with plentiful walking and cycling routes, while still being under 9 miles from Edinburgh city centre and close to Straiton Retail Park and the bypass.
Buyers should note a few material points: council tax is Band G and described as quite expensive; there is an annual management/factor fee of £179.84 plus a £200 float fee; and the supplied data lists only one bathroom, which may be limiting for a five-bedroom family home. The wider area classification records higher deprivation scores — consider local services and context when viewing.
Overall, this home suits growing families who want new-build convenience, energy-efficient features and easy commuting to Edinburgh, but who are comfortable budgeting for higher council tax and ongoing management fees.
4 bedroom detached house for sale in Off Mauricewood Road, Penicuik,
EH26 0GW, EH26 — £519,995 • 4 bed • 1 bath • 1679 ft²
4 bedroom detached house for sale in Off Mauricewood Road, Penicuik,
EH26 0GW, EH26 — £459,995 • 4 bed • 1 bath • 1594 ft²
4 bedroom detached house for sale in Off Mauricewood Road, Penicuik,
EH26 0GW, EH26 — £474,995 • 4 bed • 1 bath • 1685 ft²
5 bedroom detached house for sale in Off Mauricewood Road, Penicuik,
EH26 0GW, EH26 — £579,995 • 5 bed • 1 bath • 1975 ft²
4 bedroom town house for sale in Off Mauricewood Road, Penicuik,
EH26 0GW, EH26 — £424,995 • 4 bed • 1 bath • 1720 ft²
5 bedroom detached house for sale in Off Mauricewood Road, Penicuik,
EH26 0GW, EH26 — £549,995 • 5 bed • 1 bath • 2088 ft²






































































