Peaceful character home with private east-facing outdoor space and excellent transport links.
Newly renovated with restored Victorian features
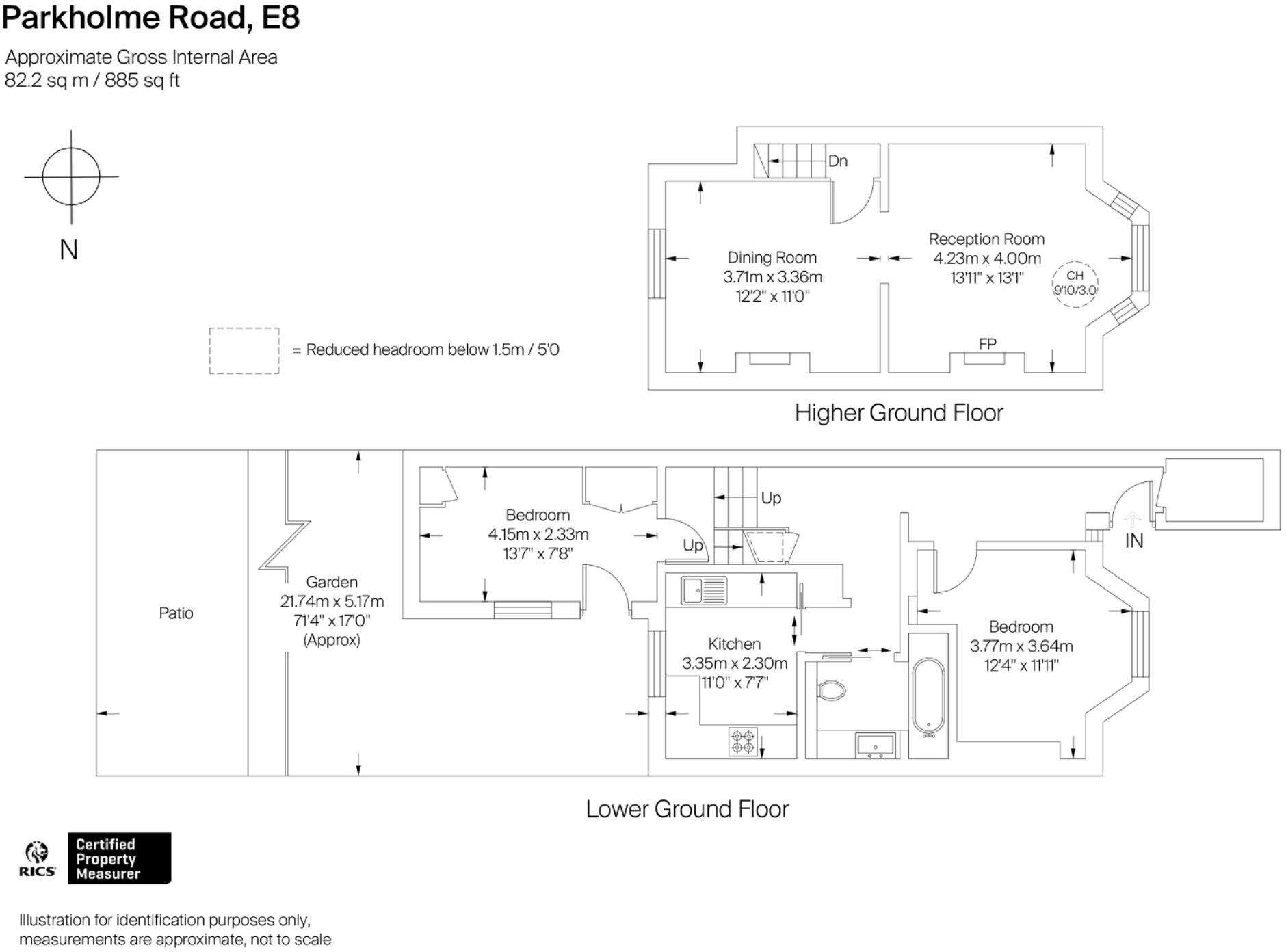
A newly renovated two-bedroom ground-floor maisonette in a handsome mid-Victorian terrace, set on a calm one-way street between London Fields and Dalston. Restored period details — high ceilings, cornicing, bay sash window and original fireplaces — combine with modern finishes such as timber worktops, clay quarry tiles and space‑saving pocket doors. The result is a warm, well-proportioned home that feels both characterful and contemporary.
The raised ground floor offers a flowing living and dining space with dual-aspect light and restored joinery; downstairs, two double bedrooms and a simple, functional kitchen look onto a private east-facing garden framed by mature planting. A large pavement vault and under-stair storage provide useful extra capacity. The property is share of freehold and sits within the Graham Road and Mapledene conservation area, so any significant external changes will require consent.
This location is unusually well connected for a peaceful Hackney street: Broadway Market, London Fields and local pubs and cafés are walkable, with Dalston and London Fields stations close by. The area is popular with creative and tech professionals, making the maisonette attractive to couples, small families and buyers seeking a character home with good transport links.
Notable cautions: the property sits in a broadly deprived local area with average crime levels; council tax is Band D. The listing notes a very small plot designation despite an east-facing garden described on the particulars, and any extension or substantial garden alterations would need conservation and planning consent. Buyers should confirm exact plot extent and communal ownership arrangements as part of legal enquiries.
2 bedroom maisonette for sale in Malvern Road, London Fields, London, E8 — £1,100,000 • 2 bed • 1 bath • 971 ft²
2 bedroom apartment for sale in Graham Road, London, E8 — £1,150,000 • 2 bed • 2 bath • 913 ft²
4 bedroom terraced house for sale in Mapledene Road, London, E8 — £2,000,000 • 4 bed • 2 bath • 1769 ft²
2 bedroom maisonette for sale in Albion Drive, London, E8 — £1,250,000 • 2 bed • 2 bath • 896 ft²
4 bedroom terraced house for sale in St. Mark's Rise, London, E8 — £1,250,000 • 4 bed • 1 bath • 1389 ft²
2 bedroom maisonette for sale in Rushmore Road, London, E5 — £950,000 • 2 bed • 1 bath • 883 ft²


















































































































