**Standout Features:**
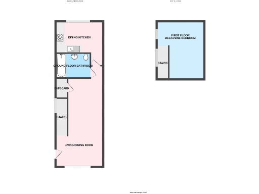
- Unique first-floor mezzanine apartment in a Grade II listed building.
- High ceilings and large arched windows infuse the space with natural light.
- Modern open-plan living/dining area and separate contemporary kitchen.
- Access to stunning communal gardens and secure resident parking.
- Located near excellent transport links to Birmingham City Centre and Wolverhampton.
- Leasehold tenure with over 130 years remaining.
- Affordable price point of £130,000, ideal for first-time buyers or those downsizing.
**Summary:**
Step into a unique living experience with this stunning mezzanine apartment set in the beautifully preserved Bilston Girl's High School, a Grade II listed building. Offering a blend of historical charm and modern convenience, the apartment features soaring high ceilings and expansive arched windows, creating a light-filled atmosphere. The open-plan design seamlessly connects the living and dining area to a contemporary kitchen, perfect for both relaxation and entertaining.
Enjoy the tranquility of the meticulously maintained communal gardens, an ideal spot to unwind after a busy day. Positioned just off Wellington Road, this property boasts excellent transport links, placing Birmingham City Centre and Wolverhampton within easy reach—perfect for commuters. While the property is in great condition, potential buyers should note the service charge of £1,262.40 per year and ground rent of £200, which is manageable given the apartment's character and location. This affordable gem presents a rare opportunity for first-time buyers or those looking to downsize in a serene yet accessible setting. Don't miss out on making this captivating home your own!
1 bedroom ground floor flat for sale in Lowbridge Walk, Bilston, WV14 — £120,000 • 1 bed • 1 bath • 375 ft²
1 bedroom apartment for sale in The Mill, Albion Street, City Centre, Wolverhampton, WV1 — £140,000 • 1 bed • 1 bath • 829 ft²
1 bedroom apartment for sale in Lowbridge Walk, Bilston, WV14 6BP, WV14 — £120,000 • 1 bed • 1 bath • 545 ft²
1 bedroom apartment for sale in Mill Croft, Bilston, WV14 — £100,000 • 1 bed • 1 bath • 410 ft²
1 bedroom apartment for sale in Albion Street, City Centre, Wolverhampton, West Midlands, WV1 — £110,000 • 1 bed • 1 bath • 582 ft²
Studio flat for sale in Crocketts Lane, Smethwick, B66 — £125,000 • 1 bed • 1 bath • 517 ft²










































































































