Modern second-floor home with EV parking and balcony near station.
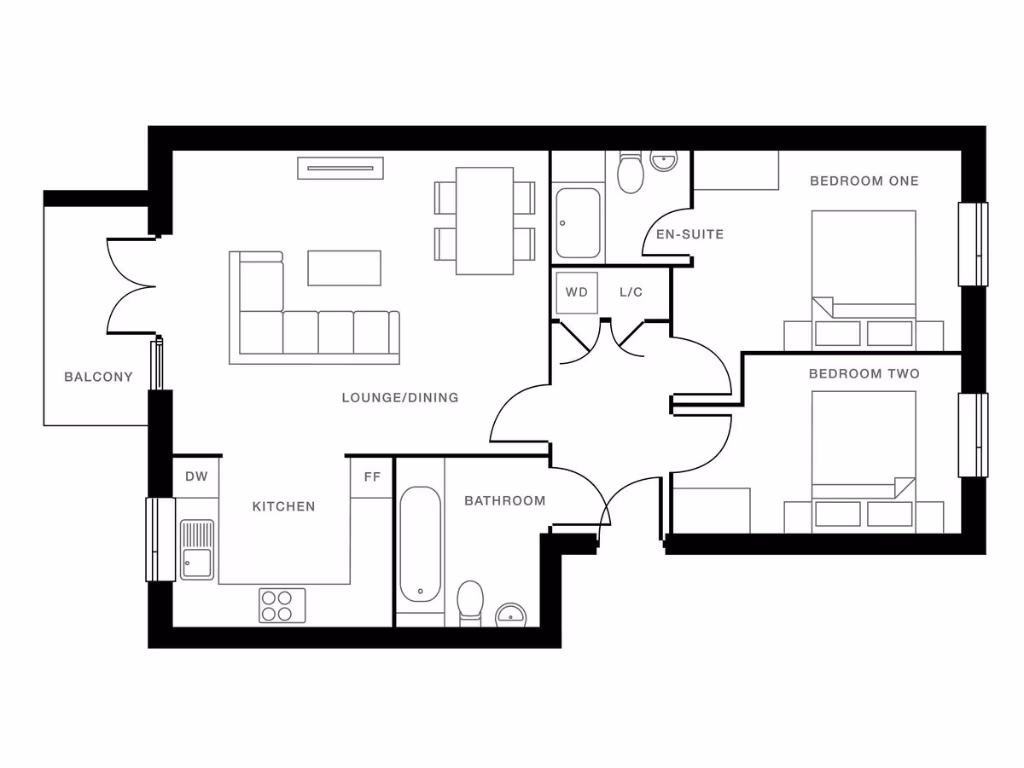
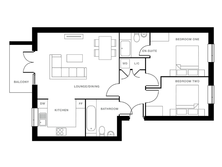
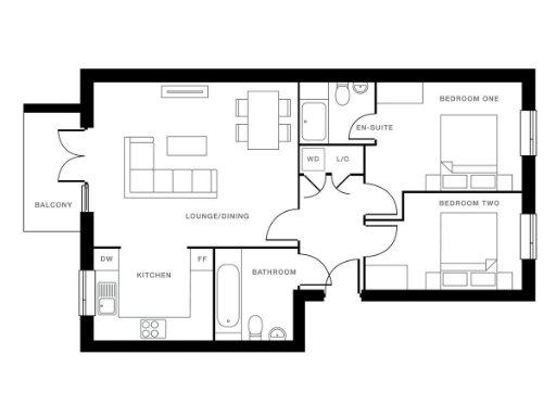
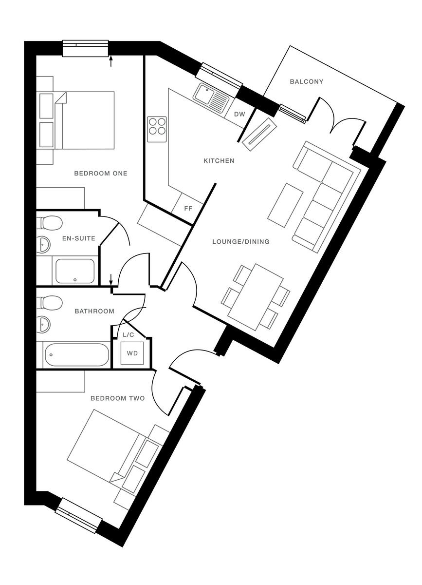
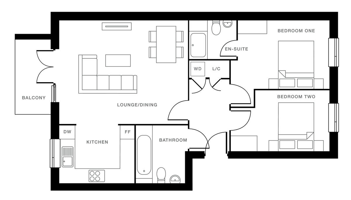
Second-floor 2-bedroom apartment, 723 sqft
A contemporary two-bedroom apartment on the second floor of The Gelso, offering 723 sqft of thoughtfully planned space and a private balcony. The home includes an en suite, integrated dishwasher, and a freestanding washer/dryer; buyers can choose kitchen tiles and flooring subject to build stage. Allocated off-street parking with EV charging and visitor spaces adds practical daily convenience.
Set in the Berryfields community, the development sits 0.7 miles from Aylesbury station and close to local shops, restaurants and 72 acres of green space — a good fit for commuters, professionals and downsizers who want easy access to both town and countryside. Local schools include several rated Good and one Outstanding grammar school nearby.
This is a leasehold, new-build property. Buyers should note broadband speeds in the area are very slow and some interior finishes may already be pre-selected depending on construction stage. The development carries a Trustpilot score of 4.4 and highlights energy-efficiency benefits that can lower running costs compared with older homes.
Overall the apartment suits someone seeking low-maintenance, modern living with practical transport links and EV-ready parking, provided you accept leasehold terms and potential limits on late-stage finish choices.
2 bedroom apartment for sale in Farmingdale Close, Aylesbury, HP18 — £265,000 • 2 bed • 2 bath • 724 ft²
2 bedroom end of terrace house for sale in Arcadia Park, Aylesbury, HP18 — £375,000 • 2 bed • 1 bath • 625 ft²
2 bedroom apartment for sale in Alma Street, Aylesbury, HP18 — £210,000 • 2 bed • 2 bath • 807 ft²
2 bedroom apartment for sale in Elton Close, Aylesbury, HP18 — £210,000 • 2 bed • 2 bath • 602 ft²
1 bedroom apartment for sale in Wyatt Way, Aylesbury, HP18 — £170,000 • 1 bed • 1 bath • 582 ft²
2 bedroom apartment for sale in Putman Street, Aylesbury, HP19 — £210,000 • 2 bed • 1 bath • 436 ft²










































