Light-filled three-bedroom house with garage, conservatory and private rear garden near schools.
Three bedrooms including master with en-suite shower room
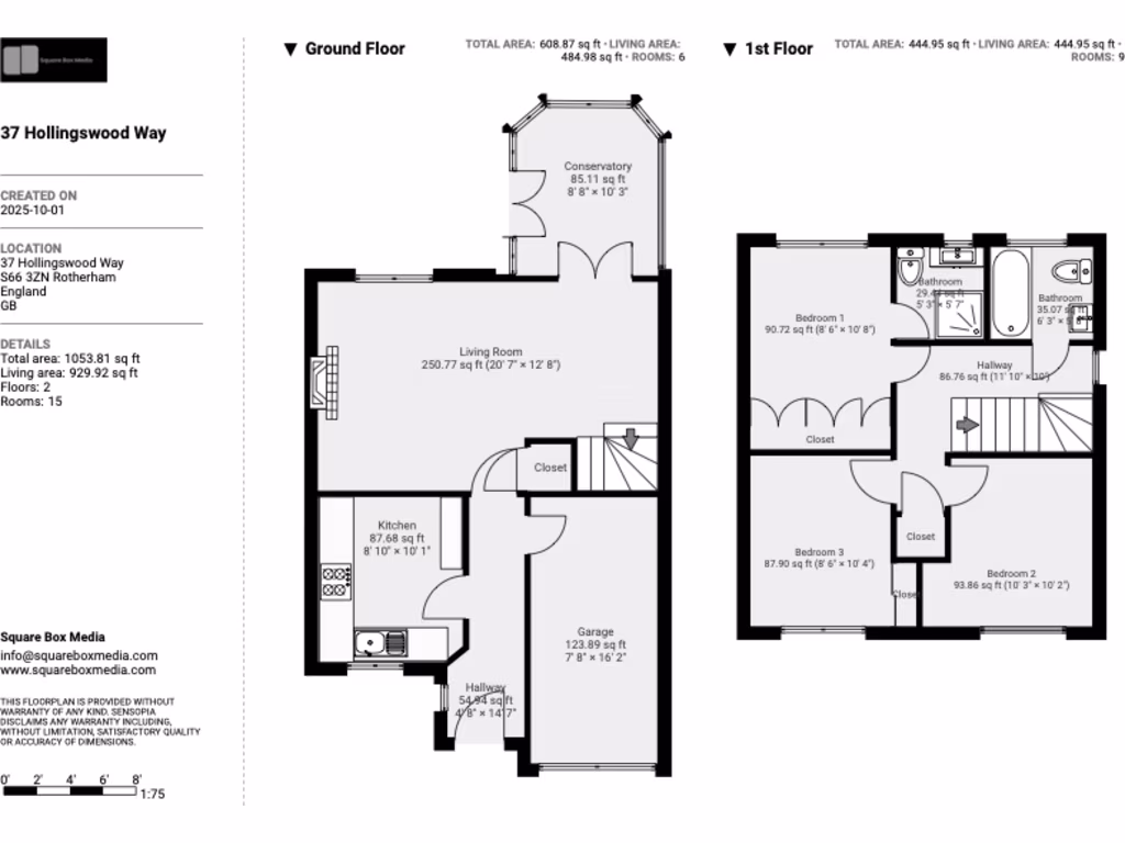
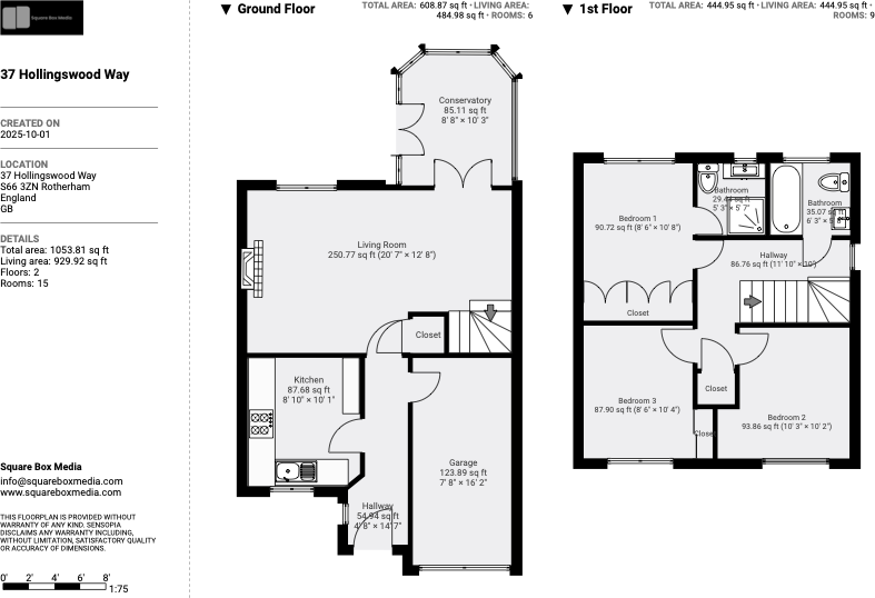
Set on the desirable Woodlaithes estate, this well-presented three-bedroom detached house offers comfortable, versatile living across two floors. The ground floor features a generous lounge/diner with a feature fireplace, a light conservatory overlooking the private rear garden, and a fitted kitchen. Upstairs are a spacious master with en-suite, a good second double, and a single bedroom suitable for a nursery or home office.
Practical benefits include an integral garage with driveway parking, double glazing, mains gas central heating and a decent plot providing scope for outdoor play or summer entertaining. The home is conveniently placed for local primary and secondary schools rated Good, nearby leisure facilities, and easy access to Rotherham, Sheffield and the M1 motorway — useful for commuters.
Honest points to note: the property has an EPC rating of D, so future buyers should expect average energy performance and potential to improve efficiency. The overall floor area is around 929 sq ft, offering comfortable but not expansive accommodation; buyers seeking very large living spaces should review the layout in person. Council tax is moderate and the area records average crime and deprivation indicators.
This house will suit growing families or those looking to upsize within a peaceful suburban community; it is presented in good order yet retains straightforward opportunities for energy upgrades or modest reconfiguration if desired.
3 bedroom detached house for sale in Bluebell Wood Lane, Woodlaithes, Rotherham, South Yorkshire, S66 — £300,000 • 3 bed • 2 bath • 1148 ft²
3 bedroom link detached house for sale in St. Johns Court, Woodlaithes, Rotherham, South Yorkshire, S66 — £295,000 • 3 bed • 1 bath • 921 ft²
5 bedroom detached house for sale in Elton Lane, Sunnyside, Rotherham, S66 — £450,000 • 5 bed • 4 bath • 2078 ft²
3 bedroom detached house for sale in Kirkstead Gardens, Sheffield, S13 9XG, S13 — £280,000 • 3 bed • 2 bath • 769 ft²
3 bedroom detached house for sale in Treeton Way, Catcliffe, Rotherham, S60 — £270,000 • 3 bed • 3 bath • 630 ft²
3 bedroom semi-detached house for sale in Cygnet Close, Brampton Bierlow, Rotherham, S63 — £280,000 • 3 bed • 2 bath • 948 ft²






































































































