E4 6XJ - 2 bedroom terraced house for sale in Mapleton Road, London,…

View on Property Piper

2 bedroom terraced house for sale in Mapleton Road, London, E4

Summary - 21, MAPLETON ROAD E4 6XJ

2 bed 1 bath Terraced

**Standout Features:**
- Two-bedroom mid-terrace home
- Modern design with bright, contemporary interiors
- Chain-free sale
- Private rear garden
- Close proximity to local amenities and transport links
- Excellent mobile signal and fast broadband speeds
- Surrounded by green spaces, including Larks Wood and Epping Forest
- Affordable council tax and strong local school options (Good Ofsted ratings)

**Concerns:**
- Average size home footprint
- Nearest schools may have varying class sizes

This charming two-bedroom mid-terrace home effortlessly combines modern living with suburban comfort. The thoughtfully designed space features a bright reception room that flows seamlessly into a dining area, with double doors leading to a private rear garden—ideal for outdoor relaxation or family gatherings. Upstairs, two cozy bedrooms provide versatility, perfect for a small family, couple, or even a home office setup, complemented by a stylish bathroom. Nestled in a tranquil neighborhood in Highams Park, this property is just a short walk from local shops, cafés, and green spaces for outdoor adventures.

With excellent transport links to central London, this home is perfect for commuters. The surrounding area boasts good schools, making it an excellent choice for young families. Don't miss out on this inviting property—chain-free and ready for you to make it your own!

Property Details

Brochure Descriptions

Image Descriptions

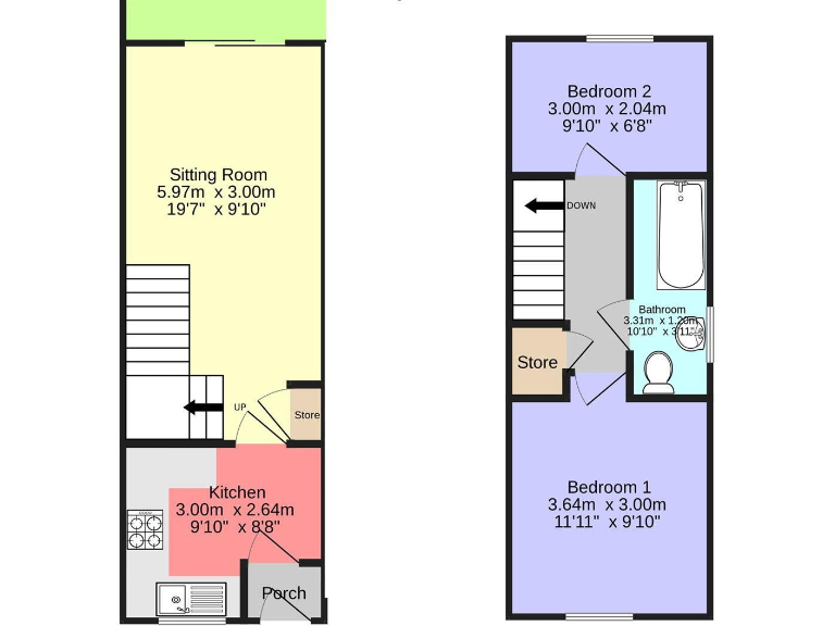
Floorplan Description

Rooms

Textual Property Features

Detected Visual Features

Nearby Schools

Nearest Bars And Restaurants

,,,,}

Nearest General Shops

,,}

Nearest Grocery shops

,,}

Nearest Supermarkets

,,}

Nearest Religious buildings

,,}

Nearest Medical buildings

,,,}

Nearest Airports

,}

Nearest Leisure Facilities

,,,,}

Nearest Tourist attractions

,,}

Nearest Train stations

,,,,}

Nearest Bus stations and stops

,,,,}

Nearest Hotels

,,}

Tags

Local Market Stats

AirBnB Data

Similar Properties

Meta

High Res Images

Compatible Images

Low res Images

Thumbnails

Raw Images

High Res Floorplan Images

Compatible Floorplan Images

Low res Floorplan Images

FloorplanImages Thumbnail

Raw Floorplan Images